Apartament cu 2 camere, situat in bloc nou, cu parcare, zona Salciei

76.999 €

Exterior Vest, Baia Mare

Nr. cam.:
2
Sup. utilă:
54 mp
Etaj:
2 / 2
An constr.:
2025 (La roșu)
  • • Locație aproximativă

Descriere apartament

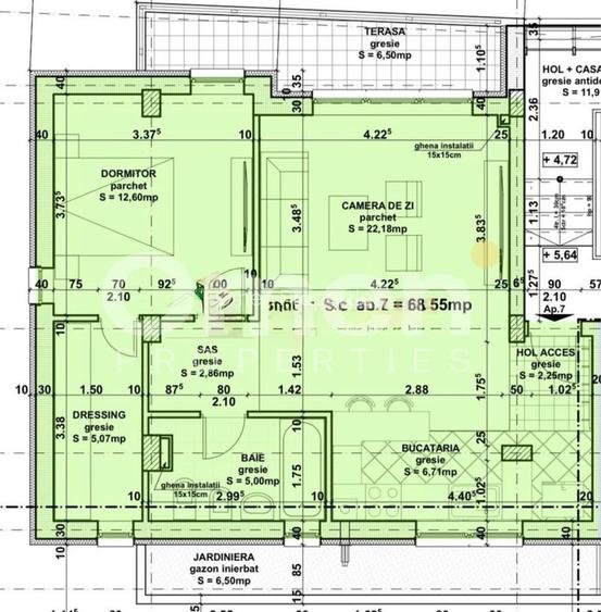
Apartament de 2 camere disponibil pentru vanzare, cu o suprafata utila de 54 mp, situat in zona Salciei. Apartamentul este situat la etajul 2/2, fiind format din living cu bucatarie, dormitor si baie, la care se adauga doua balcoane. Este orientat V. Se afla intr-o zona linistita si bine conectata la mijloacele de transport in comun. Apartamentul se va preda la stadiul de semifinisat! Este inclusa si o parcare exterioara in pretul afisat! Pentru mai multe detalii sau pentru o vizionare nu ezitati sa ne contactati!
Citește mai mult Citește mai puțin
Confort 1 Semidecomandat 2 Balcoane / Terase / Logii

Detalii apartament

ID anunț: XB1L1007F Copiat! 274975412 Copiat!
Actualizat în: 20 Aprilie 2026
Nr. bucătării: 1
Nr. băi: 1
Structură rezistență: Cărămidă
Tip imobil: Bloc de apartamente
Tip tranzacție: De vânzare prin agent
Regim înălțime: P+2E
Modalitate de plată: Cash sau Credit

Utilități

Destinație
Rezidențial
Ușă intrare
Metal
Ferestre cu geam termopan
PVC
Contorizare
Apometre Contor gaz
Utilități
Curent Apă Canalizare CATV Gaze Telefon
Internet
Cablu
Amenajare străzi
Iluminat stradal Mijloace de transport în comun Asfaltate
Comision
standard

Disponibilitate proprietate:

Imediat

Puncte de interes

Școală
school
International School of Transylvania
Școli aprox. 1546 m
university
Facultatea de Inginerie - Centrul Universitar Nord din Baia Mare
Universități aprox. 1686 m
school
Grup Scolar Gheorghe Lazar
Școli aprox. 1733 m
Recreere
supermarket
Metro Cash & Carry
Supermarket aprox. 969 m
sports-ground
Teren sportiv
Terenuri sport aprox. 1545 m
restaurant
Viva
Restaurant aprox. 1779 m
park
Parc de joaca pentru copii
Parcuri aprox. 1939 m

Istoricul prețurilor

Acces la informații premium după autentificare
Login Gratuit

Detalii despre preț și costuri

Prețul pe piață

Preț cerut: 76.999 €

Preț min. zonă
Preț max. zonă

71% dintre proprietățile similare ca zonă și nr. camere au prețul cerut mai mare. mai multe...

Bine de știut: prețul unei proprietăți este influențat și de alte caracteristici, cum ar fi: vechime, localizare, vecinătăți, suprafață, compartimentare, amenajări, dotări, etc. mai puțin...

Acces la informații premium după autentificare
Login Gratuit

Costuri cu achiziția

Fără credit
Credit ipotecar
Noua casă

i

Costuri adiționale mai puțin știute la achiziție: taxe notariale, comisioane etc.

Acces la informații premium după autentificare
Login Gratuit

Proprietăți similare

Apartament cu 2 camere semidecomandat în Exterior Vest
76.999 €
Baia Mare, Exterior Vest
2 camere
57 mp
Etaj 2 / 2
Apartament cu 2 camere semidecomandat în Exterior Vest
78.500 €
Baia Mare, Exterior Vest
2 camere
44 mp
Etaj 3
Apartament cu 2 camere decomandat în Exterior Vest
81.900 €
Baia Mare, Exterior Vest
2 camere
48 mp
Etaj 2

Detalii de contact

Omen Properties

Ovidiu Doroltan Consultant imobiliar

Omen Properties
PRO

Abonează-te la newsletter să fii primul care primește cele mai noi recomandări de proprietăți și sfaturi de la experți.

CONTACT

Creează alertă

Salvează căutarea ca să primești pe email ultimele anunțuri publicate

Apartamente cu 2 camere de vânzare în Baia Mare, Județul Maramureș