Apartament 3 camere-2 balcoane-etaj 1- Zona Calea Moldovei

107.500 €

Calea Moldovei, Bistrița

Nr. cam.:
3
Sup. utilă:
54,66 mp
Etaj:
1 / 3
An constr.:
2023 (Finalizată)
  • • Locație aproximativă

Descriere apartament

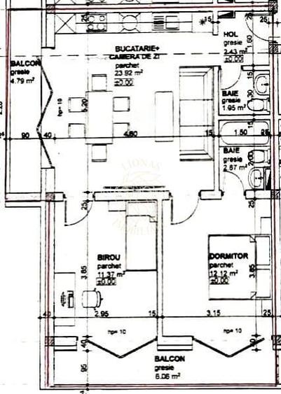
Va oferim spre vanzare un apartament finisat la cheie cu 3 camere situat in Zona Kaufland Calea Moldovei. Imobilul este de o calitate superioara, in imediata apropriere se afla MOL, Kaufland, iar la 6 minute de mers cu masina aveti centrul si zona pietonala a orasului. - suprafata construita este de 65,51 mp, dintre care 54,66 mp utili - dispune de 2 balcoane cu suprafetele de 4,79 mp si 6,06 mp - situat la etajul 1, dar este disponibil si altul la parter Compartimentare: 2 dormitoare, bucatarie open-space cu living, 2 bai, hol, 2 balcoane - centrala termica - geamuri termopan - izolatie exterioara Pretul este 107,500 € TVA inclus Pentru mai multe detalii sau pentru programarea unei vizionari, va stam cu drag la dispozitie, Sorin Cont Echipa LIONAS Imobiliare!
Citește mai mult Citește mai puțin
Confort 1 Decomandat Nemobilat 2 Balcoane / Terase / Logii

Detalii apartament

ID anunț: XEKF1001T Copiat! 275094573 Copiat!
Actualizat în: 25 Februarie 2026
Suprafață construită: 65.51 mp
Nr. bucătării: 1
Nr. băi: 2
Tip imobil: Bloc de apartamente
Regim înălțime: P+3E

Utilități

Pereți
Faianță
Podele
Gresie Parchet
Izolații termice
Exterior
Ferestre cu geam termopan
PVC
Contorizare
Apometre Contor gaz
Utilități
Curent Apă Canalizare CATV Gaze Telefon
Internet
Cablu
Amenajare străzi
Iluminat stradal Mijloace de transport în comun Asfaltate
Comision
standard

Disponibilitate proprietate:

Imediat

Puncte de interes

Mijloace transport
bus-station
Statie Bus
Stații autobuz aprox. 571 m
bus-station
Statie
Stații autobuz aprox. 862 m
bus-station
Statie Autobus
Stații autobuz aprox. 918 m
bus-station
Statie
Stații autobuz aprox. 1449 m
Școală
school
Colegiul tehnic INFOEL
Școli aprox. 763 m
school
Liceul cu Program Sportiv
Școli aprox. 800 m
school
Scoala Generala nr 4
Școli aprox. 1419 m
school
Scoala Generala Stefan Cel Mare
Școli aprox. 1504 m
Recreere
supermarket
Kaufland
Supermarket aprox. 306 m
restaurant
Romance
Restaurant aprox. 344 m
park
Fantana arteziana
Parcuri aprox. 1119 m
sports-ground
Teren sportiv
Terenuri sport aprox. 1304 m

Detalii despre preț și costuri

Prețul pe piață

Preț cerut: 107.500 €

Preț min. zonă 72.000 €
Preț max. zonă 157.000 €

96% dintre proprietățile similare ca zonă și nr. camere au prețul cerut mai mic. mai multe...

Bine de știut: prețul unei proprietăți este influențat și de alte caracteristici, cum ar fi: vechime, localizare, vecinătăți, suprafață, compartimentare, amenajări, dotări, etc. mai puțin...

Costuri cu achiziția

Fără credit
6.463 RON
Credit ipotecar
8.032 RON
Noua casă
688 RON+ taxe notariale

i

Costuri adiționale mai puțin știute la achiziție: taxe notariale, comisioane etc.

Proprietăți similare

Apartament cu 3 camere semidecomandat în Calea Moldovei
99.900 € + TVA
Bistrița, Calea Moldovei
3 camere
64,11 mp
Parter
Apartament cu 4 camere decomandat în Calea Moldovei
117.000 €
Bistrița, Calea Moldovei
4 camere
115 mp
Etaj 3
Apartament cu 3 camere semidecomandat, mobilat în Calea Moldovei
98.000 €
Bistrița, Calea Moldovei
3 camere
67 mp
Etaj 6

Detalii de contact

LIONAS HOME SRL

Cont Ioana Adelina Manager

LIONAS HOME SRL

Abonează-te la newsletter să fii primul care primește cele mai noi recomandări de proprietăți și sfaturi de la experți.

CONTACT

Creează alertă

Salvează căutarea ca să primești pe email ultimele anunțuri publicate

Apartamente noi cu 3 camere de vânzare în zona Calea Moldovei, Bistrița