Apartament 3 camere, confort 1 decomandat, zona Obor.

49.500 €

Obor, Brăila

Nr. cam.:
3
Sup. utilă:
58,5 mp
Etaj:
4 / 4
An constr.:
1980 (Finalizată)
  • • Locație aproximativă

Descriere apartament

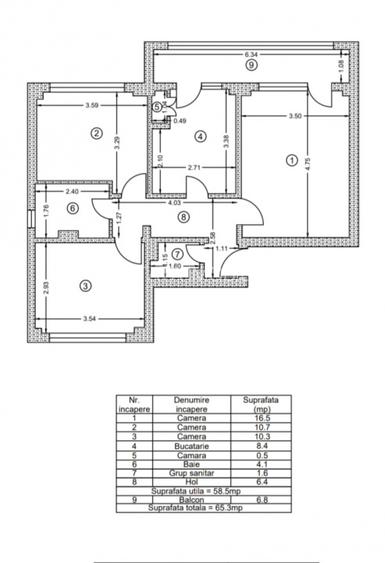
Apartament 3 camere, confort 1 decomandat, zona Obor. Dotat cu centrala termica, necesita renovare totala la interior. Etaj 4/4 fara probleme cu hidroizolatia.
Citește mai mult Citește mai puțin
Confort 1 Decomandat Acceptă animale de companie Nemobilat 1 Balcon / Terasă / Logie Calorifere Centrală proprie Necesită renovare

Detalii apartament

ID anunț: XDMF101QU Copiat! 272881120 Copiat!
Actualizat în: 04 Mai 2026
Suprafață construită: 65 mp
Nr. bucătării: 1
Nr. băi: 2
Structură rezistență: data_properties.building_structure.BCA
Tip imobil: Bloc de apartamente
Regim înălțime: P+4E

Utilități

Destinație
Rezidențial
Pereți
Vopsea lavabilă Faianță
Podele
Parchet Gresie
Ușă intrare
Metal
Uși interior
Lemn
Ferestre cu geam termopan
PVC Lemn PVC
Contorizare
Apometre Contor gaz
Alte spații utile
WC Serviciu Debara
Facilități imobil
Interfon Uscătorie
Utilități
Curent Apă Canalizare Gaze CATV Telefon
Internet
Fibră optică
Amenajare străzi
Asfaltate Betonate Iluminat stradal Mijloace de transport în comun
Comision
2%

Certificat energetic:

Clasa energetică: C

Puncte de interes

Mijloace transport
tram-station
Bariera Calarasilor
Stații tramvai aprox. 1102 m
bus-station
Gara Braila
Stații autobuz aprox. 1655 m
Școală
kindergarten
Gradinita Nr.36
Gradinițe aprox. 295 m
school
Scoala Nr. 32 Dimitrie Cantemir
Școli aprox. 330 m
kindergarten
Cresa copii
Gradinițe aprox. 337 m
university
Facultatea de Inginerie
Universități aprox. 1391 m
Recreere
park
Parc
Parcuri aprox. 122 m
supermarket
Complex Dinamo
Supermarket aprox. 217 m
bar
Black Ball
Bar aprox. 621 m
restaurant
Restaurant La Fenice
Restaurant aprox. 726 m

Detalii despre preț și costuri

Prețul pe piață

Preț cerut: 49.500 €

Preț min. zonă
Preț max. zonă

79% dintre proprietățile similare ca zonă și nr. camere au prețul cerut mai mare. mai multe...

Bine de știut: prețul unei proprietăți este influențat și de alte caracteristici, cum ar fi: vechime, localizare, vecinătăți, suprafață, compartimentare, amenajări, dotări, etc. mai puțin...

Insight premium disponibil după login

Costuri cu achiziția

Fără credit
Credit ipotecar
Noua casă

i

Costuri adiționale mai puțin știute la achiziție: taxe notariale, comisioane etc.

Insight premium disponibil după login

Proprietăți similare

Apartament cu 2 camere decomandat în Obor
47.000 €
Brăila, Obor
2 camere
50,4 mp
Etaj 4 / 4
Apartament cu 3 camere semidecomandat în Obor
49.000 €
Brăila, Obor
3 camere
74 mp
Etaj 4 / 4
Apartament cu 2 camere semidecomandat în Obor
45.000 €
Brăila, Obor
2 camere
55 mp
Etaj 4 / 4

Detalii de contact

MUSTATA IMOBILIARE

Florin Daniel Mustata

MUSTATA IMOBILIARE

Abonează-te la newsletter să fii primul care primește cele mai noi recomandări de proprietăți și sfaturi de la experți.

CONTACT

Creează alertă

Salvează căutarea ca să primești pe email ultimele anunțuri publicate

Apartamente cu 3 camere de vânzare în zona Obor, Brăila