Ap 3 cam conf 1 Viziru 1 70 mp etaj 2

69.000 €

Viziru 1, Brăila

Nr. cam.:
3
Sup. utilă:
70 mp
Etaj:
2
An constr.:
1970
  • • Locație aproximativă
  • • Vizionare prin apel video

Descriere apartament

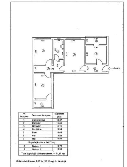
Apartament 3 camere, Viziru 1, etaj 2 *Centrala termica *Termopan exterior *Vedere ambele parti *Faianta, gresie, parchet Cristian Imobiliare - din 1993 Primii in Braila CRS7068 &03
Citește mai mult Citește mai puțin
Confort 1 Semidecomandat 1 Balcon / Terasă / Logie Centrală proprie Necesită renovare

Detalii apartament

ID anunț: XF6K100NA Copiat! 275049236 Copiat!
Actualizat în: 27 Martie 2026
Suprafață utilă totală: 70 mp
Suprafață construită: 70 mp
Nr. bucătării: 1
Nr. băi: 1
Structură rezistență: Altele
Tip imobil: Bloc de apartamente
Tip tranzacție: De vânzare prin agent
Regim înălțime: P+9E
Modalitate de plată: Cash sau Credit

Utilități

Destinație
Rezidențial
Podele
Parchet
Ușă intrare
Lemn
Uși interior
Celulare
Ferestre cu geam termopan
PVC
Contorizare
Apometre Contor gaz
Facilități imobil
Lift Interfon
Utilități
Apă Curent Gaze

Puncte de interes

Mijloace transport
tram-station
Bariera Calarasilor
Stații tramvai aprox. 1947 m
Școală
school
Gradinita Nr.1
Școli aprox. 214 m
school
Scoala Nr. 28 Vasile Alecsandri
Școli aprox. 444 m
kindergarten
Gradinita Aschiuta
Gradinițe aprox. 874 m
kindergarten
Camin copii
Gradinițe aprox. 951 m
Recreere
supermarket
Vanil Com
Supermarket aprox. 26 m
supermarket
Daniofan Impex
Supermarket aprox. 86 m
park
Parcul Milcov
Parcuri aprox. 822 m
restaurant
Zilli's Bistro
Restaurant aprox. 922 m

Detalii despre preț și costuri

Prețul pe piață

Preț cerut: 69.000 €

Preț min. zonă
Preț max. zonă

59% dintre proprietățile similare ca zonă și nr. camere au prețul cerut mai mare. mai multe...

Bine de știut: prețul unei proprietăți este influențat și de alte caracteristici, cum ar fi: vechime, localizare, vecinătăți, suprafață, compartimentare, amenajări, dotări, etc. mai puțin...

Acces la informații premium după autentificare
Login Gratuit

Costuri cu achiziția

Fără credit
Credit ipotecar
Noua casă

i

Costuri adiționale mai puțin știute la achiziție: taxe notariale, comisioane etc.

Acces la informații premium după autentificare
Login Gratuit

Proprietăți similare

Apartament cu 3 camere decomandat în Călărași
64.500 €
Brăila, Călărași
3 camere
70 mp
Etaj 7 / 8
Apartament cu 2 camere semidecomandat, mobilat în Independenței
62.500 €
Brăila, Independenței
2 camere
60 mp
Etaj 3 / 4
Apartament cu 2 camere decomandat, mobilat în Viziru 1
63.000 €
Brăila, Viziru 1
2 camere
48 mp
Etaj 3

Detalii de contact

CRISTIAN IMOBILIARE

Cristian Imobiliare Agentie Imobiliara

CRISTIAN IMOBILIARE

Abonează-te la newsletter să fii primul care primește cele mai noi recomandări de proprietăți și sfaturi de la experți.

CONTACT

Creează alertă

Salvează căutarea ca să primești pe email ultimele anunțuri publicate

Apartamente cu 3 camere de vânzare în zona Viziru 1, Brăila