Apartament 4 camere decomandat etajul 1 zona Astra

150.000 €

Astra, Brașov

Nr. cam.:
4
Sup. utilă:
77 mp
Etaj:
1 / 4
An constr.:
1980 (Finalizată)
  • • Locație aproximativă
  • • Vizionare prin apel video

Descriere apartament

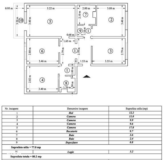
Apartament 4 camere, decomandat, etaj 1, zona Astra Apartament cu 4 camere, decomandat, situat la etajul 1 intr-un bloc izolat termic. Compartimentare: sufragerie, 3 dormitoare, bucatarie, baie cu geam, hol principal, 2 holuri secundare, balcon inchis. Luminos, cu orientare buna pe parcursul zilei. Liber la vanzare, necesita renovare Zona linistita, cu acces rapid la scoala, gradinita, Lidl, statie de autobuz, Piata Astra si centre comerciale. ID intern: RTI7687
Citește mai mult Citește mai puțin
Confort 1 Decomandat 1 Balcon / Terasă / Logie Centrală proprie

Detalii apartament

ID anunț: X9KT10G6O Copiat! 274481761 Copiat!
Actualizat în: 27 Aprilie 2026
Suprafață utilă totală: 77 mp
Suprafață construită: 87 mp
Nr. băi: 2
Structură rezistență: Altele
Tip imobil: Bloc de apartamente
Regim înălțime: P+4E

Utilități

Destinație
Rezidențial
Pereți
Faianță Vopsea lavabilă
Podele
Parchet
Ușă intrare
Metal
Uși interior
Lemn
Contorizare
Apometre Contor gaz
Utilități
Apă Curent Gaze
Amenajare străzi
Asfaltate Iluminat stradal

Puncte de interes

Mijloace transport
bus-station
Cometei
Stații autobuz aprox. 181 m
bus-station
Neptun
Stații autobuz aprox. 196 m
bus-station
Neptun
Stații autobuz aprox. 287 m
bus-station
Cometei
Stații autobuz aprox. 312 m
Școală
kindergarten
Gradinita 25 - Lumea Copiilor
Gradinițe aprox. 105 m
kindergarten
Grădinita nr. 25
Gradinițe aprox. 111 m
school
Liceul Silvic
Școli aprox. 244 m
university
Universitatea "George Baritiu"
Universități aprox. 1133 m
Recreere
park
Parc
Parcuri aprox. 66 m
supermarket
Lidl
Supermarket aprox. 71 m
restaurant
Viena
Restaurant aprox. 166 m
sports-ground
Teren fotbal
Terenuri sport aprox. 282 m

Detalii despre preț și costuri

Prețul pe piață

Preț cerut: 150.000 €

Preț min. zonă
Preț max. zonă

56% dintre proprietățile similare ca zonă și nr. camere au prețul cerut mai mare. mai multe...

Bine de știut: prețul unei proprietăți este influențat și de alte caracteristici, cum ar fi: vechime, localizare, vecinătăți, suprafață, compartimentare, amenajări, dotări, etc. mai puțin...

Insight premium disponibil după login

Costuri cu achiziția

Fără credit
Credit ipotecar
Noua casă

i

Costuri adiționale mai puțin știute la achiziție: taxe notariale, comisioane etc.

Insight premium disponibil după login

Proprietăți recomandate

Detalii de contact

Real Trade Imobiliare

RLT Real Trade Imobiliare Managing Partner

5.00(11 review-uri)

Real Trade Imobiliare

Abonează-te la newsletter să fii primul care primește cele mai noi recomandări de proprietăți și sfaturi de la experți.

CONTACT

Creează alertă

Salvează căutarea ca să primești pe email ultimele anunțuri publicate

Apartamente cu 4+ camere de vânzare în zona Astra, Brașov