4

Apartament in Vila-Spatiu Generos

198.000 €

Astra, Brașov

Nr. cam.:
4
Sup. utilă:
106 mp
Etaj:
1 / 1
An constr.:
1919 (Finalizată)
  • • Exclusivitate
  • • Locație exactă

Descriere apartament

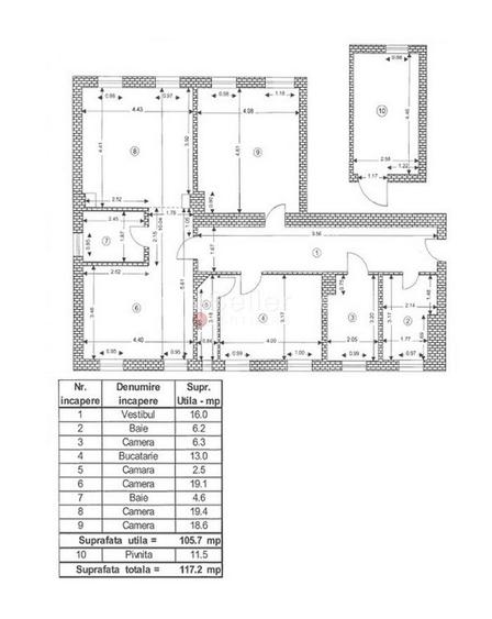
LOCALIZARE: Acest imobil este situat in imediata apropiere a Urban Plaza, Grand Fitness Astra , precum si a mai multor supermarketuri, printre care Plai Cash&Carry , Lidl. COMPARTIMENTARE: - Holul de acces, care face legatura intre toate incaperile; - Zona de zi, care detine o suprafata vitrata mare, beneficiaza de lumina naturala, atat datorita pozitionarii cat si a orientarii spre gradina imobilului; - Bucataria, inchisa, este mobilata si utilata, avand acces si la o camara; - Dormitoarele, cu suprafete generoase, deservite de o baie cu aerisire naturala si dotata cu cada. - Birou, sau camera multifunctionala, cu acces din hol; - Baia 2, cu acces din hol, aceasta fiind dotata cu cada; DOTARI: - centrala termica; - tamplarie PVC, cu geam termopan; - usa metalica; - curte comuna, cu spatii verzi generoase, fiecare locatar avand amenajat un spatiu propriu. Imobilul este situat intr-o zona mixta de blocuri si case accesul auto, pana in zona de centru a orasului facandu-se in cca. 10 minute. ATRACTII ZONA: Magazine, restaurante, parcuri, scoli, spitale. ACCESIBILITATE: Transport public in apropiere. Informatiile prezentate reflecta situatia reala a proprietatii, fara a constitui o oferta contractuala. Aceste date au fost obtinute verbal, de la titularul de drept al imobilului. Structura acestei prezentari nu poate fi reprodusa, fara acordul scris al The Seller and Partners.
Citește mai mult Citește mai puțin
Confort 1 Decomandat Parțial mobilat Curte Curte comună Calorifere Centrală proprie 1 Parcare

Detalii apartament

ID anunț: X3I020028 Copiat! 274912374 Copiat!
Actualizat în: 26 Martie 2026
Suprafață construită: 117 mp
Nr. bucătării: 1
Nr. băi: 2
Structură rezistență: Cărămidă
Tip imobil: Casă/Vilă
Tip tranzacție: De vânzare prin agent
Regim înălțime: S+P+1E
Modalitate de plată: Cash sau Credit

Utilități

Pereți
Vopsea lavabilă
Podele
Parchet
Ușă intrare
Metal
Izolații termice
Interior
Ferestre cu geam termopan
PVC
Contorizare
Apometre Contor gaz
Electrocasnice
Frigider Hotă Mașină de spălat TV
Facilități imobil
Acoperiș
Utilități
Curent Apă Canalizare CATV Gaze Telefon
Internet
Cablu
Amenajare străzi
Iluminat stradal Mijloace de transport în comun Asfaltate
Comision
standard

Disponibilitate proprietate:

Imediat

Puncte de interes

Mijloace transport
bus-station
Statia "Poaianelor", linia 33,5barat,7
Stații autobuz aprox. 312 m
bus-station
Poienelor
Stații autobuz aprox. 312 m
bus-station
Statia "metrom", linia 33,5barat,7
Stații autobuz aprox. 355 m
bus-station
Statia "Roman SA", linia 5,5barat,7,17barat,33
Stații autobuz aprox. 583 m
Școală
kindergarten
Gradinita cu program saptamanal nr. 18 (fosta nr. 58)
Gradinițe aprox. 438 m
school
Grup Scolar Industrial Astra
Școli aprox. 589 m
kindergarten
Gradinita Boboceii
Gradinițe aprox. 674 m
university
Universitatea "George Baritiu"
Universități aprox. 1533 m
Recreere
sports-ground
Teren Metrom
Terenuri sport aprox. 217 m
restaurant
Cantina "Roman" (en)
Restaurant aprox. 227 m
supermarket
Rapid Barbu Lautaru
Supermarket aprox. 465 m
park
Parc
Parcuri aprox. 588 m

Detalii despre preț și costuri

Prețul pe piață

Preț cerut: 198.000 €

Preț min. zonă
Preț max. zonă

64% dintre proprietățile similare ca zonă și nr. camere au prețul cerut mai mare. mai multe...

Bine de știut: prețul unei proprietăți este influențat și de alte caracteristici, cum ar fi: vechime, localizare, vecinătăți, suprafață, compartimentare, amenajări, dotări, etc. mai puțin...

Acces la informații premium după autentificare
Login Gratuit

Costuri cu achiziția

Fără credit
Credit ipotecar
Noua casă

i

Costuri adiționale mai puțin știute la achiziție: taxe notariale, comisioane etc.

Acces la informații premium după autentificare
Login Gratuit

Proprietăți similare

Apartament cu 2 camere decomandat în Astra
192.390 €
Brașov, Astra
2 camere
57 mp
Etaj 4 / 10
Apartament cu 2 camere decomandat în Astra
205.000 €
Brașov, Astra
2 camere
61 mp
Etaj 8
Apartament cu 3 camere semidecomandat, mobilat în Astra
200.000 €
Brașov, Astra
3 camere
83 mp
Etaj 1 / 4

Detalii de contact

The Seller & Partners

Ciprian Coman Senior Advisor

The Seller & Partners
PRO

Abonează-te la newsletter să fii primul care primește cele mai noi recomandări de proprietăți și sfaturi de la experți.

CONTACT

Creează alertă

Salvează căutarea ca să primești pe email ultimele anunțuri publicate

Apartamente cu 4+ camere de vânzare în zona Astra, Brașov