Vanzare apartament 2 camere modern Avantgarden incalzire in pardoseala

151.000 €

Avantgarden, Brașov

Nr. cam.:
2
Sup. utilă:
52 mp
Etaj:
6 / 9
An constr.:
2026
  • • Comision 0%
  • • Locație exactă

Descriere apartament

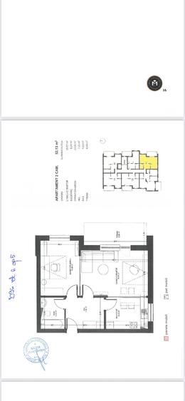
Persoana fizica ofer spre vanzare un apartament situat în Brașov – cartier Avantgarden Faza 5, într-un imobil nou, finalizat în 2026 . Apartamentul are o suprafață utilă de 52 mp, la care se adaugă un balcon generos de 9 mp, ideal pentru relaxare, precum și o boxă de depozitare de 4,4 mp si beneficiaza de incalzirea in pardoseala , 2 pereti mobili . Locuința este situată la etajul 6 , are orientare sud - estica , insorit aproape pe tot parcursul zilei si cu o vedere superba catre Tampa , nu exista posibilitatea aparitiei altor cladiri care sa impiedice acest lucru . Zona de zi, care are o suprafata generoasa, detine suprafata vitrata mare, dispunand de acces la terasa.Bucataria, de tip open space sau inchisa, aceasta dispunand de perete mobil. Dormitorul, la fel ca si bucataria, dispune de perete mobil.Baia este prevazuta cu dus , iar holul este foarte spatios .
Citește mai mult Citește mai puțin
Confort lux Decomandat Nemobilat 1 Balcon / Terasă / Logie Centrală imobil 1 Parcare / Garaj / Parcare subterană Renovat

Detalii apartament

ID anunț: XV1000DHG Copiat! 275332998 Copiat!
Actualizat în: 31 Martie 2026
Tip imobil: Bloc de apartamente
Tip tranzacție: De vânzare de către proprietar
Regim înălțime: P+9E
Lift: Da
Modalitate de plată: Cash sau Credit

Utilități

Utilități
Canalizare Gaze
Sistem încălzire
Centrală imobil pe Gaz cu Încălzire prin pardoseală
Servicii imobil
Administrare
Comision
0%

Puncte de interes

Mijloace transport
bus-station
Facultativa
Stații autobuz aprox. 152 m
bus-station
Molnar Janos
Stații autobuz aprox. 168 m
bus-station
Statia "Molnar Janos", linia 28
Stații autobuz aprox. 174 m
train-station
Gara Bartolomeu
Stații tren aprox. 738 m
Școală
kindergarten
Gradinita privata Happy Kids
Gradinițe aprox. 683 m
kindergarten
Gradinita cu program normal nr. 5 (fosta nr. 20)
Gradinițe aprox. 775 m
school
Grupul Scolar Auto
Școli aprox. 1198 m
school
Școala Generală nr. 14
Școli aprox. 1267 m
Recreere
supermarket
Rapid Gospodarilor
Supermarket aprox. 321 m
restaurant
Pizza Saltinbocca
Restaurant aprox. 795 m
park
Fosta cariera de piatra Bartolomeu
Parcuri aprox. 886 m
sports-ground
Teren Sport
Terenuri sport aprox. 1689 m

Detalii despre preț și costuri

Prețul pe piață

Preț cerut: 151.000 €

Preț min. zonă
Preț max. zonă

91% dintre proprietățile similare ca zonă și nr. camere au prețul cerut mai mic. mai multe...

Bine de știut: prețul unei proprietăți este influențat și de alte caracteristici, cum ar fi: vechime, localizare, vecinătăți, suprafață, compartimentare, amenajări, dotări, etc. mai puțin...

Acces la informații premium după autentificare
Login Gratuit

Costuri cu achiziția

Fără credit
Credit ipotecar
Noua casă

i

Costuri adiționale mai puțin știute la achiziție: taxe notariale, comisioane etc.

Acces la informații premium după autentificare
Login Gratuit

Proprietăți similare

Apartament cu 2 camere decomandat, mobilat în Avantgarden
152.500 €
Brașov, Avantgarden
2 camere
55 mp
Parter / 6
Apartament cu 3 camere decomandat în Avantgarden
139.999 €
Brașov, Avantgarden
3 camere
68 mp
Etaj 2
Apartament cu 2 camere decomandat, mobilat în Avantgarden
159.000 €
Brașov, Avantgarden
2 camere
52 mp
Etaj 2

Detalii de contact

STATE ALEXANDRU

STATE ALEXANDRU

Proprietar

Abonează-te la newsletter să fii primul care primește cele mai noi recomandări de proprietăți și sfaturi de la experți.

CONTACT

Creează alertă

Salvează căutarea ca să primești pe email ultimele anunțuri publicate

Apartamente noi cu 2 camere de vânzare în zona Avantgarden, Brașov