Apartament decomandat cu 3 camere, 66 mp., Calea București

152.000 €

Calea București, Brașov

Nr. cam.:
3
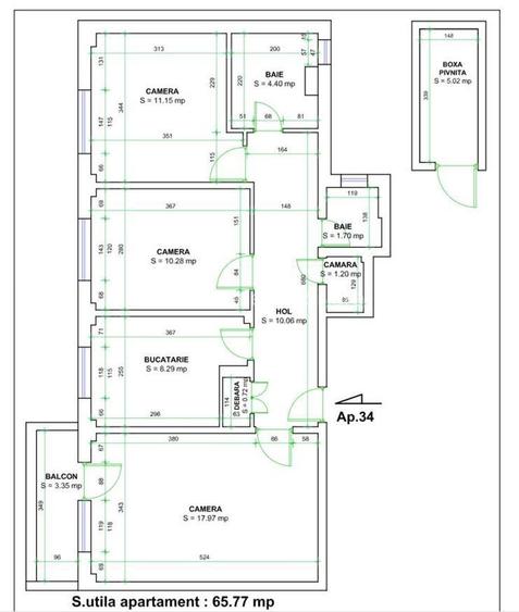
Sup. utilă:
66 mp
Etaj:
8 / 8
An constr.:
1987 (Finalizată)
  • • Locație aproximativă

Descriere apartament

Vă propunem spre achiziție un apartament luminos și complet renovat, cu 3 camere decomandate, 2 bai si un balcon deschis - 3.35 mp Apartamentul este poziționat într-o zonă bine dezvoltată, având în imediata apropiere școli, grădiniță, stație de autobuz, spații comerciale și zone verzi. Imobilul dispune de o scară renovată și un lift nou, asigurând confort, acces facil și un plus de siguranță pentru viitorii proprietari.
Citește mai mult Citește mai puțin
Decomandat

Detalii apartament

ID anunț: X0G3100JL Copiat! 275456271 Copiat!
Actualizat în: 21 Aprilie 2026
Structură rezistență: Beton
Tip imobil: Bloc de apartamente
Regim înălțime: P+8E

Utilități

Utilități
Curent Apă Canalizare CATV Gaze Telefon
Internet
Cablu
Amenajare străzi
Iluminat stradal Mijloace de transport în comun Asfaltate
Comision
standard

Disponibilitate proprietate:

Imediat

Puncte de interes

Mijloace transport
bus-station
Statia "Dacia", linia 32,37,40,51
Stații autobuz aprox. 243 m
bus-station
Dacia
Stații autobuz aprox. 263 m
train-station
Gara Brasov Călători CFR
Stații tren aprox. 557 m
train-station
Statia CFR Brasov
Stații tren aprox. 583 m
Școală
school
Liceul Dr. Ioan Mesota
Școli aprox. 313 m
school
Colegiul National "Dr Ioan Mesota"
Școli aprox. 315 m
kindergarten
Gradinita nr. 14A
Gradinițe aprox. 318 m
university
Universitatea Europeana Dragan
Universități aprox. 763 m
Recreere
park
Parc
Parcuri aprox. 177 m
supermarket
Carrefour
Supermarket aprox. 207 m
sports-ground
Teren sportiv
Terenuri sport aprox. 301 m
mall
Magazinul Star
Mall aprox. 1758 m

Detalii despre preț și costuri

Prețul pe piață

Preț cerut: 152.000 €

Preț min. zonă
Preț max. zonă

79% dintre proprietățile similare ca zonă și nr. camere au prețul cerut mai mic. mai multe...

Bine de știut: prețul unei proprietăți este influențat și de alte caracteristici, cum ar fi: vechime, localizare, vecinătăți, suprafață, compartimentare, amenajări, dotări, etc. mai puțin...

Insight premium disponibil după login

Costuri cu achiziția

Fără credit
Credit ipotecar
Noua casă

i

Costuri adiționale mai puțin știute la achiziție: taxe notariale, comisioane etc.

Insight premium disponibil după login

Proprietăți similare

Apartament cu 3 camere decomandat în Calea București
145.000 €
Brașov, Calea București
3 camere
70 mp
Etaj 6
Apartament cu 2 camere semidecomandat în Calea București
165.506 € + TVA
Brașov, Calea București
2 camere
67,73 mp
Etaj 2
Apartament cu 2 camere semidecomandat în Calea București
147.000 €
Brașov, Calea București
2 camere
53,8 mp
Etaj 5

Detalii de contact

Euro Dome Imobiliare

Loredana Ciurea Realtor

Euro Dome Imobiliare
PRO

Abonează-te la newsletter să fii primul care primește cele mai noi recomandări de proprietăți și sfaturi de la experți.

CONTACT

Creează alertă

Salvează căutarea ca să primești pe email ultimele anunțuri publicate

Apartamente cu 3 camere de vânzare în zona Calea București, Brașov