20

Amplasament Central Suprafata Generoasa

290.000 €

Central, Brașov

Nr. cam.:
4
Sup. utilă:
90 mp
Etaj:
1 / 1
An constr.:
1960 (Finalizată)
  • • Locație aproximativă

Descriere apartament

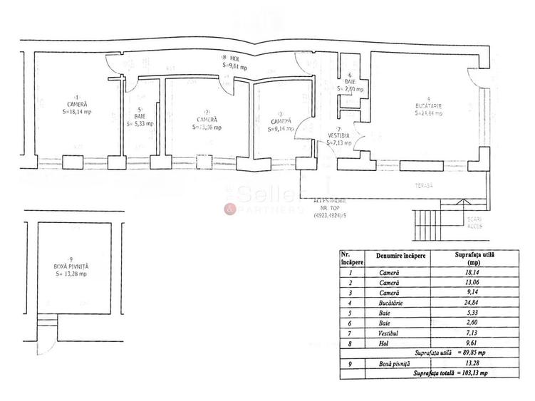
LOCALIZARE: Acest imobil este situat in centrul Brasovului, in imediata apropiere a strazii Apollonia Hirscher. COMPARTIMENTARE: - Zona de zi, care are o suprafata generoasa, detine suprafata vitrata mare, cu deschidere la terasa; - Bucataria, de tip open space, fiind mobilata si dotata, cu deschidere spre zona de zi, care beneficiaza de acces la terasa; - Grup sanitar, dotat cu cabina de dus; - Dormitorul matrimonial, cu o suprafata generoasa si suprafata vitrata mare; - Dormitorul 2, cu suprafata generoasa, fiind mobilat; - Camera multifunctionala, potrivita atat ca dormitor, cat si ca birou; - Baia, cu suprafata generoasa, dotata cu cabina de dus si cu aerisire naturala. DOTARI: - centrala termica; - tamplarie PVC, cu geam termopan; - usa lemn stratificat; - usi interioare din lemn stratificat; - parchet lemn masiv; - incalzire clasica cu radiatoare. Tranzactionarea proprietatii se va face fara mobilierul aferent prezentei ofertari, cu exceptia bucatariei care ramane. IMPREJURIMI: Imobilul este situat intr-o zona de vile, accesul auto, pana in zona de centru a orasului, facandu-se in cca. 5 minute. ATRACTII ZONA: Obiective turistice, magazine, restaurante, parcuri, scoli, spitale. ACCESIBILITATE: Transport public in apropiere | la aproximativ 100m. FORMA ACHIZITIONARE: Se accepta plata prin accesare credit. NOTA: Informatiile prezentate reflecta situatia reala a proprietatii, fara a constitui o oferta contractuala. Aceste date au fost obtinute verbal, de la titularul de drept al imobilului. Structura acestei prezentari nu poate fi reprodusa, fara acordul scris al The Seller and Partners.
Citește mai mult Citește mai puțin
Confort 1 Decomandat Mobilat Curte Curte comună Calorifere Centrală proprie

Detalii apartament

ID anunț: X3I02000P Copiat! 273009391 Copiat!
Actualizat în: 13 Mai 2026
Suprafață construită: 109 mp
Nr. bucătării: 1
Nr. băi: 2
Structură rezistență: Cărămidă
Tip imobil: Casă/Vilă
Tip tranzacție: De vânzare prin agent
Regim înălțime: P+1E
Nr. terase: 2
Modalitate de plată: Cash sau Credit

Utilități

Destinație
Rezidențial
Pereți
Vopsea lavabilă
Podele
Parchet
Ușă intrare
Lemn
Uși interior
Lemn
Izolații termice
Exterior
Ferestre cu geam termopan
PVC
Contorizare
Apometre Contor căldură Contor gaz
Bucătărie
Mobilată
Electrocasnice
Frigider Hotă
Alte spații utile
Terasă
Facilități imobil
Interfon
Utilități
Curent Apă Canalizare CATV Gaze Telefon
Internet
Cablu
Amenajare străzi
Iluminat stradal Mijloace de transport în comun Asfaltate
Comision
standard

Disponibilitate proprietate:

Imediat

Puncte de interes

Mijloace transport
bus-station
Statia "Toamnei", linia 3,5barat,30,7,17,5,35,10,22,34
Stații autobuz aprox. 55 m
bus-station
Toamnei
Stații autobuz aprox. 62 m
train-station
Gara Brasov Călători CFR
Stații tren aprox. 963 m
train-station
Statia CFR Brasov
Stații tren aprox. 998 m
Școală
kindergarten
Gradinita 15
Gradinițe aprox. 120 m
school
Scoala Jules Verne
Școli aprox. 380 m
kindergarten
Gradinita cu program normal nr. 18 (fosta nr. 23)
Gradinițe aprox. 386 m
university
Universitatea Europeana Dragan
Universități aprox. 862 m
Recreere
supermarket
Rapid Toamnei
Supermarket aprox. 119 m
park
Parc
Parcuri aprox. 133 m
sports-ground
Loc de Joaca
Terenuri sport aprox. 687 m
mall
Magazinul Star
Mall aprox. 1775 m

Detalii despre preț și costuri

Prețul pe piață

Preț cerut: 290.000 €

Preț min. zonă
Preț max. zonă

100% dintre proprietățile similare ca zonă și nr. camere au prețul cerut mai mic. mai multe...

Bine de știut: prețul unei proprietăți este influențat și de alte caracteristici, cum ar fi: vechime, localizare, vecinătăți, suprafață, compartimentare, amenajări, dotări, etc. mai puțin...

Acces la informații premium după autentificare
Login Gratuit

Costuri cu achiziția

Fără credit
Credit ipotecar
Noua casă

i

Costuri adiționale mai puțin știute la achiziție: taxe notariale, comisioane etc.

Acces la informații premium după autentificare
Login Gratuit

Proprietăți similare

Apartament cu 3 camere decomandat în Central
274.549 €
Brașov, Central
3 camere
90 mp
Etaj 2
Apartament cu 5 camere semidecomandat în Central
290.000 €
Brașov, Central
5 camere
136 mp
Etaj 3 / 3
Apartament cu 4 camere decomandat în Central
280.000 €
Brașov, Central
4 camere
132 mp
Etaj 2 / 2

Detalii de contact

Abonează-te la newsletter să fii primul care primește cele mai noi recomandări de proprietăți și sfaturi de la experți.

CONTACT

Creează alertă

Salvează căutarea ca să primești pe email ultimele anunțuri publicate

Apartamente cu 4+ camere de vânzare în zona Central, Brașov