7

Apartament deosebit cu 3 camere str. Castelului

240.000 €

Centrul Istoric, Brașov

Nr. cam.:
3
Sup. utilă:
73,2 mp
Etaj:
1 / 1
An constr.:
1900 (Finalizată)
  • • Locație exactă
  • • Vizionare prin apel video

Descriere apartament

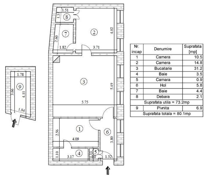
Va propunem spre vanzare acest apartament deosebit cu trei camere situat pe strada Castelului, in imediata apropiere a Piatei Sfatului si a tuturor atractiilor turistice si culturale pe care orasul Brasov le ofera. Apartamentul se afla la etajul 1 al unei cladiri bine ingrijite in exterior, dispune de o suprafata utila de 73,2 mp si este impartit dupa cum urmeaza: un hol generos si luminos, debara, un dormitor intim cu baie proprie ce beneficiaza de incalzire in pardoseala si dus walk-in, un living amplu, open-space cu bucataria si al doilea dormitor, spatios, cu baie proprie si incalzire in pardoseala, dressing. Mai mult, in proprietate exista si un beci in suprafata de 6,9 mp, cat si o cota parte din gradina, aproape de Zidul Cetatii, care ofera liniste si o priveliste deosebita asupra Centrului Istoric. Datorita structurii si pozitionarii sale, proprietatea se poate compartimenta in doua garsoniere, fiecare cu intrare separata si baie proprie. Achizitionat ca si caminul proprietarilor, acest apartament a fost renovat de acestia, constructori de meserie, de la caramida si nefacand rabat de calitate in ceea ce priveste materialele alese, cu o deosebita implicare, pentru a isi satisface propriile nevoi de confort. Proprietarii sai il ingrijesc in continuare cu tot interesul, pentru a isi pastra un camin primitor si intim, fiind folosit astfel doar in scop personal. Momentan, exista incalzire in pardoseala doar in bai, dar intregul apartament este pregatit in acest scop, in cazul in care viitorul sau proprietar va dori o modernizare. Va invitam la o vizionare pentru a putea detalia toate imbunatatirile care au fost efectuate in aceasta proprietate si care nu sunt neaparat vizibile, dar care asigura o buna functionare si pe termen indelungat a unei locuinte. ***Pretul afisat include si mobilierul de bucatarie si electrocasnicele.*** Consideram aceasta proprietate potrivita pentru acele persoane care doresc sa locuiasca in Centrul Istoric al orasului Brasov, aproape de toate obiectivele turistice si culturale pe care acest oras le ofera. De asemenea, este ideal ca si apartament de vacanta, dar este pretabil si ca investitie, pentru inchiriere ulterioara sau introducerea in circuitul turistic. Zona este renumita pentru frumusetea ei, farmecul cladirilor vechi, proximitatea fata de padure si masivul Tampa, strazile pietonale, unele inguste si intime, restaurante, baruri si cafenele pentru toate gusturile. Clasa energetica B Se accepta si credit ipotecar. Apartamentul a fost dobandit prin programul Prima Casa, existand deja un acord de instrainare. Comision 2% pentru cumparator. Pentru detalii suplimentare sau vizionari, va rugam nu ezitati sa ne contactati la numarul de telefon sau prin e-mail, la adresa .
Citește mai mult Citește mai puțin
Semidecomandat Nemobilat Centrală proprie

Detalii apartament

ID anunț: XC4S101E8 Copiat! 275309386 Copiat!
Actualizat în: 07 Mai 2026
Suprafață utilă totală: 73.2 mp
Suprafață construită: 80.1 mp
Nr. bucătării: 1
Nr. băi: 1
Structură rezistență: Altele
Tip imobil: Casă/Vilă
Tip tranzacție: De vânzare prin agent
Regim înălțime: P+1E
Modalitate de plată: Cash sau Credit

Utilități

Destinație
Rezidențial
Pereți
Vopsea lavabilă
Podele
Parchet
Uși interior
Lemn
Bucătărie
Utilată Mobilată
Electrocasnice
Aragaz Frigider
Amenajare străzi
Asfaltate
Comision
2%

Vecinătăți:

Scoala/gradinita, Centru universitar, Restaurant/pub, Mall, Parc, Ultracentral, Hotel, Piata, Intersectie circulata, Trafic Pietonal, Fastfood, Supermarket, Banca, Zona comerciala, Autobuz

Puncte de interes

Mijloace transport
bus-station
Statia N.Balcescu , linia 50, 50barat, 51,52
Stații autobuz aprox. 259 m
bus-station
Nicolae Balcescu
Stații autobuz aprox. 259 m
bus-station
Biserica Neagra
Stații autobuz aprox. 398 m
bus-station
Statia "Biserica Neagra", linia 50,50barat,51,52
Stații autobuz aprox. 411 m
Școală
school
liceul teoretic Johannes Honterus
Școli aprox. 206 m
kindergarten
Gradinita cu program normal nr. 1A (fosta nr.21)
Gradinițe aprox. 216 m
school
Liceul Teoretic J. Honterus
Școli aprox. 238 m
university
Facultatea de Silvicultură. Corp "S"
Universități aprox. 374 m
Recreere
sports-ground
Teren Tenis/Volei
Terenuri sport aprox. 123 m
park
Loc de joaca pentru copii
Parcuri aprox. 257 m
supermarket
Supermarket Dodo
Supermarket aprox. 338 m
mall
Magazinul Star
Mall aprox. 703 m

Detalii despre preț și costuri

Prețul pe piață

Preț cerut: 240.000 €

Preț min. zonă
Preț max. zonă

94% dintre proprietățile similare ca zonă și nr. camere au prețul cerut mai mic. mai multe...

Bine de știut: prețul unei proprietăți este influențat și de alte caracteristici, cum ar fi: vechime, localizare, vecinătăți, suprafață, compartimentare, amenajări, dotări, etc. mai puțin...

Acces la informații premium după autentificare
Login Gratuit

Costuri cu achiziția

Fără credit
Credit ipotecar
Noua casă

i

Costuri adiționale mai puțin știute la achiziție: taxe notariale, comisioane etc.

Acces la informații premium după autentificare
Login Gratuit

Proprietăți similare

Apartament cu 4 camere nedecomandat, mobilat în Centrul Istoric
228.700 €
Brașov, Centrul Istoric
4 camere
109 mp
667,8 mp teren
Apartament cu 3 camere circular în Centrul Istoric
220.000 €
Brașov, Centrul Istoric
3 camere
80 mp
Etaj 1
Apartament cu 2 camere semidecomandat, mobilat în Centrul Istoric
250.000 €
Brașov, Centrul Istoric
2 camere
100 mp
Parter / 1

Detalii de contact

White Mountain Property

Anne Liese Natu Senior Property Consultant Brasov

White Mountain Property
PRO

Abonează-te la newsletter să fii primul care primește cele mai noi recomandări de proprietăți și sfaturi de la experți.

CONTACT

Creează alertă

Salvează căutarea ca să primești pe email ultimele anunțuri publicate

Apartamente cu 3 camere de vânzare în zona Centrul Istoric, Brașov