7

Apartament 2 camere, zona excelenta - B-dul Garii

89.900 €

Gării, Brașov

Nr. cam.:
2
Sup. utilă:
48 mp
Etaj:
Parter / 4
An constr.:
1967 (Finalizată)
  • • Exclusivitate
  • • Locație exactă
  • • Vizionare prin apel video

Descriere apartament

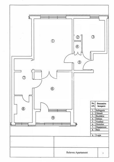
EXCLUSIVITATE! Apartament 2 camere- Zonă excelentă - B-dul Gării Vă propun spre vânzare un apartament cu 2 camere, situat în zona Gării, una dintre cele mai accesibile zone din oraș. Locuința are o suprafață utilă de 48 mp, la care se adaugă o logie de 3 mp, fiind compartimentată eficient și oferind un potențial excelent de amenajare după propriul gust. Localizare premium: la doar 2 minute de Piața Dacia, la 4 minute de Gara Brașov, acces rapid către mijloace de transport, magazine, bănci, restaurante și alte puncte de interes. Apartamentul nu dispune de îmbunătățiri, ceea ce reprezintă un avantaj pentru viitorul proprietar care își dorește să îl renoveze și să îl amenajeze conform propriilor preferințe sau standardelor actuale de închiriere. Datorită poziționării excelente, proprietatea se pretează foarte bine atât pentru locuit, cât și pentru investiție, fiind ideală pentru închiriere pe termen lung sau în regim hotelier, zona Gării fiind una dintre cele mai căutate pentru acest tip de activitate. O oportunitate foarte bună pentru cei care caută o investiție sigură, într-o zonă cu cerere constantă și acces facil către toate punctele importante ale orașului. Pentru detalii suplimentare sau programarea unei vizionări, vă stau la dispoziție.
Citește mai mult Citește mai puțin
Confort 1 Circular 1 Balcon / Terasă / Logie

Detalii apartament

ID anunț: X0K4100L4 Copiat! 275031495 Copiat!
Actualizat în: 14 Mai 2026
Suprafață utilă totală: 48 mp
Suprafață construită: 58 mp
Nr. băi: 1
Structură rezistență: Altele
Tip imobil: Bloc de apartamente
Tip tranzacție: De vânzare prin agent
Regim înălțime: P+4E
Modalitate de plată: Cash sau Credit

Utilități

Destinație
Rezidențial
Izolații termice
Exterior
Ferestre cu geam termopan
Lemn
Comision
2%

Vecinătăți:

Supermarket, Banca, Zona comerciala, Autobuz

Puncte de interes

Mijloace transport
bus-station
Mircea cel Batran
Stații autobuz aprox. 86 m
bus-station
Faget
Stații autobuz aprox. 111 m
train-station
Gara Brasov Călători CFR
Stații tren aprox. 517 m
train-station
Statia CFR Brasov
Stații tren aprox. 529 m
Școală
kindergarten
Gradinita cu program prelungit nr. 10 (fosta nr. 49)
Gradinițe aprox. 255 m
school
Armoniei , 8 - 10
Școli aprox. 404 m
kindergarten
Gradinita cu program prelungit nr. 11A (fosta nr. 65)
Gradinițe aprox. 475 m
university
Corpul V
Universități aprox. 729 m
Recreere
sports-ground
Teren sportiv
Terenuri sport aprox. 32 m
park
Loc de joaca pentru copii
Parcuri aprox. 72 m
supermarket
Unirea Shopping Center
Supermarket aprox. 331 m
mall
Magazinul Star
Mall aprox. 1867 m

Istoricul prețurilor

Acces la informații premium după autentificare
Login Gratuit

Detalii despre preț și costuri

Prețul pe piață

Preț cerut: 89.900 €

Preț min. zonă
Preț max. zonă

73% dintre proprietățile similare ca zonă și nr. camere au prețul cerut mai mare. mai multe...

Bine de știut: prețul unei proprietăți este influențat și de alte caracteristici, cum ar fi: vechime, localizare, vecinătăți, suprafață, compartimentare, amenajări, dotări, etc. mai puțin...

Acces la informații premium după autentificare
Login Gratuit

Costuri cu achiziția

Fără credit
Credit ipotecar
Noua casă

i

Costuri adiționale mai puțin știute la achiziție: taxe notariale, comisioane etc.

Acces la informații premium după autentificare
Login Gratuit

Proprietăți similare

Apartament cu 2 camere semidecomandat în Gării
93.000 €
Brașov, Gării
2 camere
50 mp
Etaj 3
Apartament cu 2 camere semidecomandat în Gării
97.000 €
Brașov, Gării
2 camere
48 mp
Etaj 7
Apartament cu 2 camere semidecomandat în Gării
81.600 €
Brașov, Gării
2 camere
48 mp
Parter

Detalii de contact

NOVA IMOBILIARE

Ioana Comanoiu Broker Imobiliar

NOVA IMOBILIARE
PRO

Abonează-te la newsletter să fii primul care primește cele mai noi recomandări de proprietăți și sfaturi de la experți.

CONTACT

Creează alertă

Salvează căutarea ca să primești pe email ultimele anunțuri publicate

Apartamente cu 2 camere de vânzare în zona Gării, Brașov