10

Zona Garii Apartament 3 camere, etaj 3/4, insorit, liber, 119900 euro

119.900 €

Gării, Brașov

Nr. cam.:
3
Sup. utilă:
63 mp
Etaj:
3 / 4
An constr.:
1968
  • • Locație aproximativă

Descriere apartament

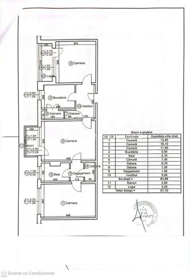
Agentia Imobiliara Euro Dome propune spre vanzare in exclusivitate, un apartament cu 3 camere cu structura semidecomandata, cu suprafata utila de 63mp+ doua balcoane. Este situat intre B-dul Garii si str. Harmanului, o zona retrasa, foarte linistita si cu acces facil spre Centrul Civic, Gara, Piata Dacia, scoli, gradinite, mijloace de transport in comun. De asemenea este o zona cu mult spatiu verde si putin trafic, facand-o ideala pentru o familie cu copii. Apartamentul are ca si imbunatatiri notabile: centrala proprie, geamuri cu tamplarie termopan, parchet masiv. In rest este curat, bine ingrijit dar necesita o renovare la actualele standarde. Apartamentul este liber la vanzare, dispunem de chei pentru a facilita vizionarile iar pretul este 119900 euro. Se accepta plata cu credit ipotecar, actele fiind in regula. Comisionul perceput de agentia imobiliara din partea cumparatorului este de 2% din pretul de vanzare.
Citește mai mult Citește mai puțin
Confort 1 Semidecomandat 2 Balcoane / Terase / Logii Centrală proprie

Detalii apartament

ID anunț: X0G3100HI Copiat! 269112867 Copiat!
Actualizat în: 26 Februarie 2026
Suprafață construită: 80 mp
Nr. bucătării: 1
Nr. băi: 1
Tip imobil: Bloc de apartamente
Regim înălțime: P+4E

Utilități

Destinație
Rezidențial
Ferestre cu geam termopan
Aluminiu
Utilități
Curent Apă Canalizare CATV Gaze Telefon
Internet
Cablu
Amenajare străzi
Iluminat stradal Mijloace de transport în comun Asfaltate
Comision
2%

Disponibilitate proprietate:

Imediat

Puncte de interes

Mijloace transport
bus-station
Sala Sporturilor
Stații autobuz aprox. 226 m
bus-station
Statia "Caprioara", linia 8,45,42,37,23,23barat si (40)
Stații autobuz aprox. 236 m
train-station
Gara Brasov Călători CFR
Stații tren aprox. 370 m
train-station
Statia CFR Brasov
Stații tren aprox. 392 m
Școală
school
Sala Sport Scoala Generala Nr. 19
Școli aprox. 323 m
university
Facultatea de Constructii - Universitatea Transilvania - Corpul J
Universități aprox. 345 m
kindergarten
Gradinita 28
Gradinițe aprox. 578 m
school
Gradinita 28
Școli aprox. 578 m
Recreere
sports-ground
Teren sportiv
Terenuri sport aprox. 65 m
supermarket
Rapid Garii
Supermarket aprox. 215 m
public-square
Square & Monument (en)
Piețe publice aprox. 356 m
park
Parc
Parcuri aprox. 491 m

Detalii despre preț și costuri

Prețul pe piață

Preț cerut: 119.900 €

Preț min. zonă 88.500 €
Preț max. zonă 200.000 €

61% dintre proprietățile similare ca zonă și nr. camere au prețul cerut mai mare. mai multe...

Bine de știut: prețul unei proprietăți este influențat și de alte caracteristici, cum ar fi: vechime, localizare, vecinătăți, suprafață, compartimentare, amenajări, dotări, etc. mai puțin...

Costuri cu achiziția

Fără credit
19.234 RON
Credit ipotecar
20.855 RON
Noua casă
751 RON+ taxe notariale

i

Costuri adiționale mai puțin știute la achiziție: taxe notariale, comisioane etc.

Proprietăți recomandate

Detalii de contact

Euro Dome Imobiliare

Ovidiu Harsan Agent

Euro Dome Imobiliare
PRO

Abonează-te la newsletter să fii primul care primește cele mai noi recomandări de proprietăți și sfaturi de la experți.

CONTACT

Creează alertă

Salvează căutarea ca să primești pe email ultimele anunțuri publicate

Apartamente cu 3 camere de vânzare în zona Gării, Brașov