7

Apartament 2 camere, zona Garii

126.000 €

Gării, Brașov

Nr. cam.:
2
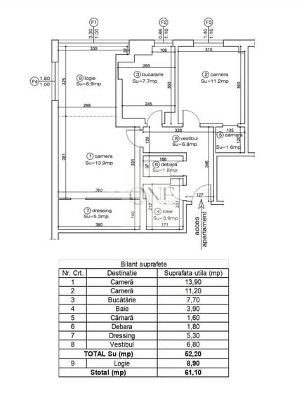
Sup. utilă:
61,1 mp
Etaj:
3 / 10
An constr.:
1981 (Finalizată)
  • • Locație aproximativă

Descriere apartament

ONE ESTATE INVEST, vă propune spre vânzare un apartament situat în zona Garii. Apartamentul este dispus pe 2 camere, după cum urmează: - Holul de acces; - Bucătărie inchisa, complet mobilata si utilata; - Living-ul, care are o suprafata generoasa si beneficiaza de multa lumina naturala, detine dressing; - Dormitorul, detine dressing; - Baie; Beneficii: - acces facil; - poate fi folosit imediat; - centrală termică; - finisaje calitative; - pozitionare sudica; - etaj intermediar mic; Observatii: Se acceptă credit bancar. Comision intermediere 2% + TVA.
Citește mai mult Citește mai puțin
Confort 1 Decomandat Mobilat Calorifere Centrală proprie Renovat

Detalii apartament

ID anunț: XEQ90004B Copiat! 275282414 Copiat!
Actualizat în: 29 Aprilie 2026
Suprafață construită: 70 mp
Nr. bucătării: 1
Nr. băi: 1
Structură rezistență: Cărămidă
Tip imobil: Bloc de apartamente
Regim înălțime: P+10E

Utilități

Destinație
Rezidențial
Pereți
Faianță Vopsea lavabilă
Podele
Gresie Parchet
Ușă intrare
Metal
Uși interior
Celulare
Izolații termice
Interior
Ferestre cu geam termopan
PVC
Contorizare
Apometre Contor gaz
Electrocasnice
Aragaz Frigider Hotă Mașină de spălat Mașină spălat vase
Alte spații utile
Debara
Facilități imobil
Interfon Lift
Utilități
Curent Apă Canalizare CATV Gaze Telefon
Internet
Cablu Wireless
Amenajare străzi
Iluminat stradal Mijloace de transport în comun Asfaltate
Comision
standard

Disponibilitate proprietate:

Imediat

Puncte de interes

Mijloace transport
bus-station
Sala Sporturilor
Stații autobuz aprox. 329 m
bus-station
Statia "Sala Sporturilor", linia 37,45,23,(40),8,23barat,42
Stații autobuz aprox. 357 m
train-station
Gara Brasov Călători CFR
Stații tren aprox. 463 m
train-station
Statia CFR Brasov
Stații tren aprox. 467 m
Școală
university
Facultatea de Constructii - Universitatea Transilvania - Corpul J
Universități aprox. 94 m
university
Facultatea de Constructii
Universități aprox. 105 m
school
Sala Sport Scoala Generala Nr. 19
Școli aprox. 579 m
kindergarten
Gradinita 28
Gradinițe aprox. 590 m
Recreere
sports-ground
Teren sportiv
Terenuri sport aprox. 277 m
supermarket
Rapid Garii
Supermarket aprox. 355 m
public-square
Square & Monument (en)
Piețe publice aprox. 504 m
park
Zonă verde
Parcuri aprox. 506 m

Detalii despre preț și costuri

Prețul pe piață

Preț cerut: 126.000 €

Preț min. zonă
Preț max. zonă

54% dintre proprietățile similare ca zonă și nr. camere au prețul cerut mai mare. mai multe...

Bine de știut: prețul unei proprietăți este influențat și de alte caracteristici, cum ar fi: vechime, localizare, vecinătăți, suprafață, compartimentare, amenajări, dotări, etc. mai puțin...

Insight premium disponibil după login

Costuri cu achiziția

Fără credit
Credit ipotecar
Noua casă

i

Costuri adiționale mai puțin știute la achiziție: taxe notariale, comisioane etc.

Insight premium disponibil după login

Proprietăți similare

Apartament cu 2 camere semidecomandat, mobilat în Gării
119.000 €
Brașov, Gării
2 camere
50 mp
Parter / 10
Apartament cu 2 camere decomandat, mobilat în Gării
120.500 €
Brașov, Gării
2 camere
50 mp
Etaj 8 / 9
Apartament cu 2 camere decomandat, mobilat în Gării
119.000 €
Brașov, Gării
2 camere
50 mp
Etaj 1

Detalii de contact

ONE ESTATE INVEST

Adrian Neculai Senior Broker

ONE ESTATE INVEST
PRO

Abonează-te la newsletter să fii primul care primește cele mai noi recomandări de proprietăți și sfaturi de la experți.

CONTACT

Creează alertă

Salvează căutarea ca să primești pe email ultimele anunțuri publicate

Apartamente cu 2 camere de vânzare în zona Gării, Brașov