Confort Urban Aproape de Natura

131.393 € + TVA

Noua, Brașov

Nr. cam.:
2
Sup. utilă:
67,55 mp
Etaj:
3 / 3
An constr.:
2025 (În construcție)
  • • Comision 0%
  • • Exclusivitate
  • • Locație exactă

Descriere apartament

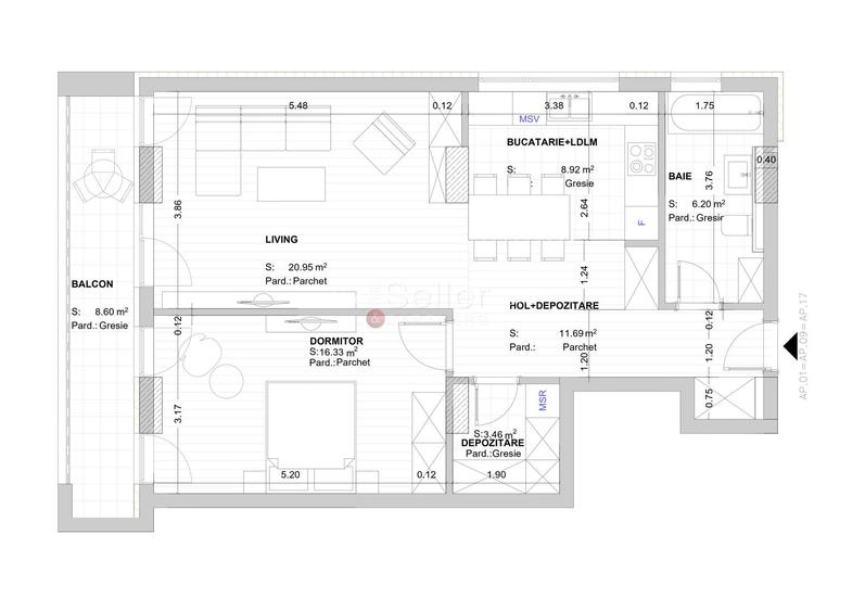
Acest imobil face parte din dezvoltarea imobiliara HOMECLASS Residence, situat in zona Noua, Brasov. Un proiect rezidential nou, gandit pentru cei care isi doresc un stil de viata echilibrat, intr-un cadru natural, dar cu acces facil catre oras. Ansamblul este dezvoltat pe regim de inaltime P+3E+Etaj Retras, cu un total de 28 de apartamente cu 1, 2 si 3 camere, fiecare proiectat cu atentie la detalii, confort si functionalitate. COMPARTIMENTARE: - Zona de zi, care are o suprafata generoasa, cu deschidere la terasa; - Bucataria, de tip open space; - Dormitorul, dispune de acces la terasa comuna cu zona de living; - Baia, aceasta dispune de aerisire naturala. DOTARI: - centrala pe bloc; - tamplarie PVC, cu geam termopan; - usa metalica; - izolatie cu vata bazaltica de 10 cm; - incalzire in pardoseala. FACILITATI DE PARCARE: - 32 de locuri de parcare acoperite, care pot fi achizitionate individual la pretul de 11.000 euro + T.V.A.; - 6 locuri de parcare supraterane, fiecare la pretul de 8.000 euro + T.V.A.; - 6 statii de incarcare auto. INTEGRARE MEDIU SI PIESAGISTICA: HomeClass Residence este conceput pentru a se integra armonios în peisajul zonei Noua, una dintre cele mai verzi și liniștite zone ale Brasovului. Spatiile verzi din jurul imobilului si locul de joaca pentru copii, vor fi amenajate cu grija, fiind ideale pentru momentele de destindere. ACCES PROPRIETATE CU BARIERA: Sistemul ofera securitate sporita, reducerea traficului neautorizat si controlul eficient al accesului pentru rezidenți si vizitatori, contribuind la cresterea sigurantei si confortului. CALITATE SI SUSTENABILITATE: Proiectul respecta cele mai inalte standarde de constructie și eficienta energetica, fiind pregatit pentru dotari moderne precum incalzire in pardoseala si infrastructura pentru sistemul de aer conditionat. Fiecare apartament este livrat la stadiul de finisat, cu posibilitatea de a-l personaliza în functie de preferintele cumparatorului. LOCATIE STRATEGICA: Proiectul rezidential ofera acces rapid catre centrul orasului, dar si catre zonele de agrement din imprejurimi, cum ar fi Lacul Noua, Gradina Zoologica sau traseele montane din jurul Brasovului. Este o alegere ideala pentru familii, tineri profesionisti sau investitori care cauta un echilibru intre natura si dinamica urbana. TERMEN FINALIZARE: Octombrie 2026 PARTENER EXCLUSIV: Complexul HomeClass Residence este promovat in regim exclusiv – The Seller and Partners, pentru a va asigura o experienta imobiliara unica, in procesul de tranzactionare. Beneficiati de comision 0%.
Citește mai mult Citește mai puțin
Confort lux Decomandat Nemobilat Curte comună Centrală imobil

Detalii apartament

ID anunț: X3I01003J Copiat! 270152410 Copiat!
Actualizat în: 28 Ianuarie 2026
Nr. bucătării: 1
Nr. băi: 1
Structură rezistență: Beton
Tip imobil: Bloc de apartamente
Regim înălțime: P+3E
Nr. terase: 1

Utilități

Pereți
Faianță Vopsea lavabilă
Podele
Gresie Parchet
Ușă intrare
Metal
Izolații termice
Exterior
Utilități
Curent Apă Canalizare CATV Gaze
Internet
Cablu
Diverse
Telecomandă poartă acces auto
Alte spații utile
Terasă
Facilități imobil
Interfon Lift
Amenajare străzi
Iluminat stradal Mijloace de transport în comun Asfaltate

Disponibilitate proprietate:

Martie 2026

Puncte de interes

Mijloace transport
bus-station
Statia Rozmarinului, linia 17,21,35
Stații autobuz aprox. 202 m
bus-station
Rozmarinului
Stații autobuz aprox. 203 m
bus-station
Statia Strand Noua, linia 17,21,35
Stații autobuz aprox. 373 m
train-station
Brasov Darste
Stații tren aprox. 1066 m
Școală
kindergarten
Gradinita Cetatea Prichindeilor
Gradinițe aprox. 196 m
school
Scoala generala Nr 29
Școli aprox. 344 m
kindergarten
Gradinita cu program normal nr. 20 (fosta nr. 12)
Gradinițe aprox. 447 m
school
Scoala generala nr 9
Școli aprox. 806 m
Recreere
bar
la piru
Bar aprox. 306 m
park
loc de joaca
Parcuri aprox. 373 m
sports-ground
Teren sportiv
Terenuri sport aprox. 540 m
supermarket
Metro
Supermarket aprox. 856 m

Detalii despre preț și costuri

Prețul pe piață

Preț cerut: 131.393 €

Preț min. zonă
Preț max. zonă

59% dintre proprietățile similare ca zonă și nr. camere au prețul cerut mai mare. mai multe...

Bine de știut: prețul unei proprietăți este influențat și de alte caracteristici, cum ar fi: vechime, localizare, vecinătăți, suprafață, compartimentare, amenajări, dotări, etc. mai puțin...

Insight premium disponibil după login

Costuri cu achiziția

Fără credit
Credit ipotecar
Noua casă

i

Costuri adiționale mai puțin știute la achiziție: taxe notariale, comisioane etc.

Insight premium disponibil după login

Homeclass Residence

Homeclass Residence

Dezvoltarea imobiliară HOMECLASS Residence, situată în zona Noua, Brașov, este un proiect rezidențial nou, gândit pentru cei care își doresc un stil de viață echilibrat, într-un cadru natural, dar cu acces facil către oraș. Ansamblul este dezvoltat pe regim de înălțime P+3E+Etaj Retras, cu un total de 28 de apartamente cu 1, 2 și 3 camere, fiecare...

Vezi detalii ansamblu

Proprietăți recomandate

Detalii de contact

The Seller & Partners

Marina Farkas Senior Advisor

4.88(3 review-uri)

The Seller & Partners
PRO

Abonează-te la newsletter să fii primul care primește cele mai noi recomandări de proprietăți și sfaturi de la experți.

CONTACT

Creează alertă

Salvează căutarea ca să primești pe email ultimele anunțuri publicate

Apartamente cu 2 camere de vânzare în zona Noua, Brașov