Apartament 3 camere I COMISION 0% I Predare 2026

162.878 € + TVA

Noua, Brașov

Nr. cam.:
3
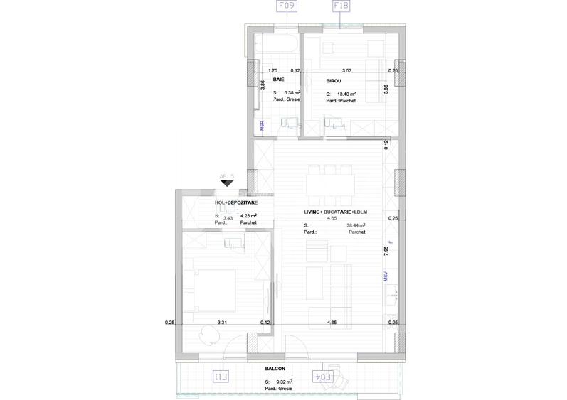
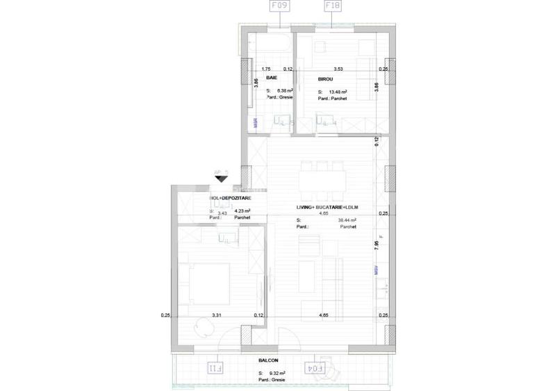
Sup. utilă:
77,1 mp
Etaj:
3 / 4
An constr.:
2025 (În construcție)
  • • Comision 0%
  • • Exclusivitate
  • • Locație exactă

Descriere apartament

Descoperiti o oportunitate rara de a deveni proprietarul unui apartament modern si elegant, situat in inima zonei Noua din Brasov! Acest apartament cu 3 camere, cu o suprafata utila de 77 mp si o zona totala de 92 mp, ofera un cadru ideal pentru o viata confortabila si plina de stil. Construit in 2025, acest imobil cu structura din beton promite nu doar durabilitate, ci si un design contemporan, perfect integrat in peisajul urban al Brasovului. La etajul 3 al unui bloc cu 4 etaje, apartamentul dispune de doua dormitoare luminoase si primitoare, o baie moderna si o bucatarie functionala, care se deschide catre un balcon generos de 8 mp, ideal pentru momente de relaxare sau socializare. Compartimentarea decomandata asigura intimitate si un flux natural al luminii, iar fiecare detaliu a fost gandit pentru a satisface nevoile unei familii moderne sau ale tinerilor profesionisti. Zona Noua ofera acces rapid la facilitati esentiale, inclusiv scoli, magazine si parcuri, facand din aceasta proprietate o alegere excelenta pentru oricine cauta confort si comoditate. Nu ratati ocazia de a transforma acest apartament intr-un camin cald si primitor! Cu un pret atractiv de 162.878€ + TVA, va invitam sa programati o vizionare si sa experimentati personal farmecul acestui spatiu. Aceasta proprietate se va vinde rapid, asa ca nu ezitati – viitorul dumneavoastra va asteapta!
Citește mai mult Citește mai puțin
Decomandat Nemobilat 1 Balcon / Terasă / Logie Centrală imobil

Detalii apartament

ID anunț: X4PE101HN Copiat! 275162406 Copiat!
Actualizat în: 02 Martie 2026
Suprafață construită: 92.6 mp
Nr. bucătării: 1
Nr. băi: 1
Structură rezistență: Beton
Tip imobil: Bloc de apartamente
Regim înălțime: P+4E

Utilități

Destinație
Rezidențial
Pereți
Vopsea lavabilă Var Faianță
Podele
Parchet Gresie
Ușă intrare
Metal
Uși interior
Celulare Panel
Izolații termice
Exterior
Contorizare
Apometre Contor căldură Contor gaz
Facilități imobil
Videointerfon Spații agrement
Utilități
Curent Apă Canalizare Gaze CATV Telefon
Amenajare străzi
Asfaltate

Disponibilitate proprietate:

imediat

Puncte de interes

Mijloace transport
bus-station
Statia Poiana Darste, linia 17,21,35
Stații autobuz aprox. 191 m
bus-station
Statia Strand Noua, linia 17,21,35
Stații autobuz aprox. 337 m
bus-station
Strand Noua
Stații autobuz aprox. 353 m
train-station
Brasov Darste
Stații tren aprox. 775 m
Școală
kindergarten
Gradinita cu program normal nr. 21 SG (fosta nr. 68)
Gradinițe aprox. 270 m
kindergarten
Gradinita Cetatea Prichindeilor
Gradinițe aprox. 337 m
school
Scoala generala Nr 29
Școli aprox. 418 m
school
Scoala generala nr 21
Școli aprox. 765 m
Recreere
bar
la piru
Bar aprox. 270 m
park
loc de joaca
Parcuri aprox. 310 m
sports-ground
Teren sportiv
Terenuri sport aprox. 342 m
supermarket
Metro
Supermarket aprox. 815 m

Detalii despre preț și costuri

Prețul pe piață

Preț cerut: 162.878 €

Preț min. zonă 87.000 €
Preț max. zonă 227.000 €

55% dintre proprietățile similare ca zonă și nr. camere au prețul cerut mai mic. mai multe...

Bine de știut: prețul unei proprietăți este influențat și de alte caracteristici, cum ar fi: vechime, localizare, vecinătăți, suprafață, compartimentare, amenajări, dotări, etc. mai puțin...

Costuri cu achiziția

Fără credit
9.668 RON
Credit ipotecar
11.617 RON
Noua casă
1.144 RON+ taxe notariale

i

Costuri adiționale mai puțin știute la achiziție: taxe notariale, comisioane etc.

Proprietăți similare

Apartament cu 3 camere decomandat în Noua
175.000 €
Brașov, Noua
3 camere
80 mp
Etaj 2 / 8
Apartament cu 3 camere decomandat în Noua
149.838 € + TVA
Brașov, Noua
3 camere
76,84 mp
Etaj 1 / 3
Apartament cu 3 camere decomandat în Noua
154.064 € + TVA
Brașov, Noua
3 camere
77,08 mp
Etaj 2 / 3

Detalii de contact

Abonează-te la newsletter să fii primul care primește cele mai noi recomandări de proprietăți și sfaturi de la experți.

CONTACT

Creează alertă

Salvează căutarea ca să primești pe email ultimele anunțuri publicate

Apartamente cu 3 camere de vânzare în zona Noua, Brașov