13

Apartament 4 camere, str. Lacurilor in Noua, decomandat, etaj 2/4, balcon, liber

125.000 €

Noua, Brașov

Nr. cam.:
4
Sup. utilă:
77 mp
Etaj:
2 / 4
An constr.:
1978 (Finalizată)
  • • Locație exactă

Descriere apartament

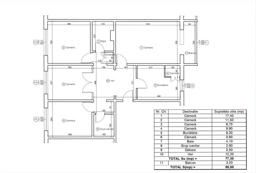
Agentia Imobiliara COV-ALIN, propune la vanzare un apartament cu 4 camere situat in strada Lacurilor, confort 1 decomandat, etaj 2/4, constructie bloc 1978, suprafata utila 77,30 mp si balcon 3,20 mp, 2 bai, centrala termica, geamuri termopan, izolat exterior, balcon inchis in termopan, clasa energetica B. Sunt 4 camere de 17,40 mp, 11,50 mp, 9, 70 mp, 9,90 mp, bucatarie 8,30 mp, baie 4,10 mp, grup sanitar 2,90 mp, camara 0,80 mp, hol 12,20 mp, debara 0,50 mp, suprafata totala 80,50 mp. Liber la vanzare! Agentia percepe comision 2%+TVA de la cumparator. COD anunt 1452.
Citește mai mult Citește mai puțin
Confort 1 Decomandat Nemobilat 1 Balcon / Terasă / Logie Calorifere Centrală proprie Bine întreținut (Bună)

Detalii apartament

ID anunț: X09I000VB Copiat! 275341308 Copiat!
Actualizat în: 14 Mai 2026
Nr. bucătării: 1
Nr. băi: 2
Structură rezistență: Beton
Tip imobil: Bloc de apartamente
Tip tranzacție: De vânzare prin agent
Regim înălțime: P+4E
Modalitate de plată: Cash sau Credit

Utilități

Destinație
Rezidențial
Ușă intrare
Metal
Izolații termice
Exterior
Ferestre cu geam termopan
PVC
Contorizare
Contor gaz
Alte spații utile
Debara WC Serviciu
Facilități imobil
Interfon
Utilități
Gaze CATV Curent Canalizare Apă
Amenajare străzi
Asfaltate Iluminat stradal Mijloace de transport în comun
Comision
2%+TVA

Certificat energetic:

Clasa energetică: B

Puncte de interes

Mijloace transport
bus-station
Statia Poiana Darste, linia 17,21,35
Stații autobuz aprox. 145 m
bus-station
Aurora
Stații autobuz aprox. 151 m
bus-station
Aurora
Stații autobuz aprox. 236 m
train-station
Brasov Darste
Stații tren aprox. 546 m
Școală
kindergarten
Gradinita cu program normal nr. 21 SG (fosta nr. 68)
Gradinițe aprox. 18 m
school
Scoala generala nr 21
Școli aprox. 495 m
kindergarten
Gradinita Cetatea Prichindeilor
Gradinițe aprox. 592 m
school
Scoala generala Nr 29
Școli aprox. 635 m
Recreere
sports-ground
Teren sportiv
Terenuri sport aprox. 307 m
bar
la piru
Bar aprox. 482 m
park
loc de joaca
Parcuri aprox. 490 m
supermarket
Metro
Supermarket aprox. 852 m

Istoricul prețurilor

Acces la informații premium după autentificare
Login Gratuit

Detalii despre preț și costuri

Prețul pe piață

Preț cerut: 125.000 €

Preț min. zonă
Preț max. zonă

82% dintre proprietățile similare ca zonă și nr. camere au prețul cerut mai mare. mai multe...

Bine de știut: prețul unei proprietăți este influențat și de alte caracteristici, cum ar fi: vechime, localizare, vecinătăți, suprafață, compartimentare, amenajări, dotări, etc. mai puțin...

Acces la informații premium după autentificare
Login Gratuit

Costuri cu achiziția

Fără credit
Credit ipotecar
Noua casă

i

Costuri adiționale mai puțin știute la achiziție: taxe notariale, comisioane etc.

Acces la informații premium după autentificare
Login Gratuit

Proprietăți similare

Apartament cu 2 camere circular, mobilat în Noua
117.000 €
Brașov, Noua
2 camere
52 mp
Etaj 2
Apartament cu 2 camere semidecomandat în Noua
114.950 €
Brașov, Noua
2 camere
56 mp
Etaj 3
Apartament cu 2 camere decomandat în Noua
136.772 €
Brașov, Noua
2 camere
61,1 mp
Etaj 2 / 8

Detalii de contact

COV ALIN

Covaliu Alin Administrator

5.00(3 review-uri)

COV ALIN
PRO

Abonează-te la newsletter să fii primul care primește cele mai noi recomandări de proprietăți și sfaturi de la experți.

CONTACT

Creează alertă

Salvează căutarea ca să primești pe email ultimele anunțuri publicate

Apartamente cu 4+ camere de vânzare în zona Noua, Brașov