3

Apartament 3 Camere Intabulat Comision 0%

136.800 €

Tractorul, Brașov

Nr. cam.:
3
Sup. utilă:
66 mp
Etaj:
2 / 6
An constr.:
2026 (În construcție)
  • • Locație aproximativă

Descriere apartament

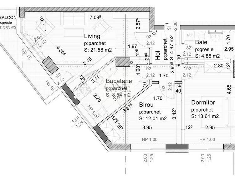
ONE ESTATE INVEST, vă propune spre vânzare un apartament situat în zona Tractorul, pe str. Orizontului. Apartamentul este dispus pe 3 camere, după cum urmează: - Holul de acces; - Bucătărie; - Living-ul cu balcon (8 mp); - Dormitorul 1; - - Dormitorul 2; - Baie; Beneficii: - Prețul include TVA; - bloc nou; - acces facil; - parcare supraterană individuală; - centrală termică; - finisaje calitative (CONREP); Observatii: Se acceptă credit bancar. Fotografiile sunt cu titlu de prezentare. Loc de parcare contracost.
Citește mai mult Citește mai puțin
Confort 1 Decomandat 1 Balcon / Terasă / Logie Calorifere Centrală proprie

Detalii apartament

ID anunț: XEQ90003F Copiat! 272280297 Copiat!
Actualizat în: 02 Februarie 2026
Suprafață construită: 71 mp
Nr. bucătării: 1
Nr. băi: 1
Structură rezistență: Beton
Tip imobil: Bloc de apartamente
Regim înălțime: S+P+6E

Utilități

Destinație
Rezidențial
Pereți
Faianță Vopsea lavabilă
Uși interior
Celulare
Izolații termice
Exterior
Utilități
Curent Apă Canalizare Gaze
Amenajare străzi
Asfaltate

Disponibilitate proprietate:

Imediat

Puncte de interes

Mijloace transport
bus-station
Rulmentul
Stații autobuz aprox. 875 m
bus-station
Statia "Cap linie Rulmentul", linia 2,7,8,9,30
Stații autobuz aprox. 888 m
bus-station
Statia "Rulmentul", linia 2,7,8,9,30
Stații autobuz aprox. 1196 m
bus-station
Stupini
Stații autobuz aprox. 1623 m
Școală
school
Colegiul Tehnic "Sfintii Voievozi Romani"
Școli aprox. 829 m
Recreere
restaurant
Hotel restaurant STOP
Restaurant aprox. 726 m
park
Parc
Parcuri aprox. 1784 m
cafe
Starbucks
Cafenea aprox. 1898 m
supermarket
Coresi Shopping Resort
Supermarket aprox. 1917 m

Detalii despre preț și costuri

Prețul pe piață

Preț cerut: 136.800 €

Preț min. zonă 112.200 €
Preț max. zonă 298.000 €

72% dintre proprietățile similare ca zonă și nr. camere au prețul cerut mai mare. mai multe...

Bine de știut: prețul unei proprietăți este influențat și de alte caracteristici, cum ar fi: vechime, localizare, vecinătăți, suprafață, compartimentare, amenajări, dotări, etc. mai puțin...

Costuri cu achiziția

Fără credit
7.600 RON
Credit ipotecar
9.293 RON
Noua casă
837 RON+ taxe notariale

i

Costuri adiționale mai puțin știute la achiziție: taxe notariale, comisioane etc.

Proprietăți recomandate

Detalii de contact

ONE ESTATE INVEST

Golovco Petru Manager

ONE ESTATE INVEST
PRO

Abonează-te la newsletter să fii primul care primește cele mai noi recomandări de proprietăți și sfaturi de la experți.

CONTACT

Creează alertă

Salvează căutarea ca să primești pe email ultimele anunțuri publicate

Apartamente cu 3 camere de vânzare în zona Tractorul, Brașov