1

Apartament Spațios Bloc Nou Comision 0%

133.200 €

Tractorul, Brașov

Nr. cam.:
3
Sup. utilă:
66,5 mp
Etaj:
5 / 6
An constr.:
2026 (În construcție)
  • • Locație aproximativă

Descriere apartament

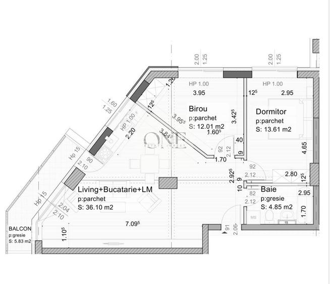
ONE ESTATE INVEST, vă propune spre vânzare un apartament situat în zona Tractorul, pe str. Orizontului. Apartamentul este dispus pe 3 camere, după cum urmează: - Holul de acces; - Bucătărie open space; - Living-ul cu balcon (8 mp); - 2 dormitoare; - Baie; Beneficii: - bloc nou; - acces facil; - parcare supraterană individuală; - centrală termică; - finisaje calitative (CONREP); Observatii: Apartamentul se predă în mai 2026. Se acceptă credit bancar. Fotografiile sunt cu titlu de prezentare. Loc de parcare contracost.
Citește mai mult Citește mai puțin
Confort 1 Decomandat Nemobilat 1 Balcon / Terasă / Logie Calorifere Centrală proprie

Detalii apartament

ID anunț: XEQ90003G Copiat! 272280348 Copiat!
Actualizat în: 07 Aprilie 2026
Suprafață construită: 72.5 mp
Nr. bucătării: 1
Nr. băi: 1
Structură rezistență: Beton
Tip imobil: Bloc de apartamente
Tip tranzacție: De vânzare prin agent
Regim înălțime: P+6E
Modalitate de plată: Cash sau Credit

Utilități

Destinație
Rezidențial
Pereți
Faianță Vopsea lavabilă
Podele
Gresie Parchet
Izolații termice
Exterior
Contorizare
Contor gaz
Facilități imobil
Lift
Utilități
Curent Apă Canalizare Gaze
Amenajare străzi
Asfaltate
Comision
standard

Disponibilitate proprietate:

Imediat

Puncte de interes

Mijloace transport
bus-station
Rulmentul
Stații autobuz aprox. 362 m
bus-station
Statia "Cap linie Rulmentul", linia 2,7,8,9,30
Stații autobuz aprox. 375 m
bus-station
Statia "Rulmentul", linia 2,7,8,9,30
Stații autobuz aprox. 631 m
bus-station
Tractor Proiect
Stații autobuz aprox. 1158 m
Școală
school
Colegiul Tehnic "Sfintii Voievozi Romani"
Școli aprox. 305 m
school
Liceul Teoretic "Nicolae Titulescu"
Școli aprox. 1675 m
school
Colegiul Tehnic "Mircea Cristea"
Școli aprox. 1990 m
Recreere
restaurant
Hotel restaurant STOP
Restaurant aprox. 825 m
park
Parc
Parcuri aprox. 1224 m
cafe
Starbucks
Cafenea aprox. 1318 m
supermarket
Coresi Shopping Resort
Supermarket aprox. 1345 m

Istoricul prețurilor

Acces la informații premium după autentificare
Login Gratuit

Detalii despre preț și costuri

Prețul pe piață

Preț cerut: 133.200 €

Preț min. zonă
Preț max. zonă

75% dintre proprietățile similare ca zonă și nr. camere au prețul cerut mai mare. mai multe...

Bine de știut: prețul unei proprietăți este influențat și de alte caracteristici, cum ar fi: vechime, localizare, vecinătăți, suprafață, compartimentare, amenajări, dotări, etc. mai puțin...

Acces la informații premium după autentificare
Login Gratuit

Costuri cu achiziția

Fără credit
Credit ipotecar
Noua casă

i

Costuri adiționale mai puțin știute la achiziție: taxe notariale, comisioane etc.

Acces la informații premium după autentificare
Login Gratuit

Proprietăți similare

Apartament cu 2 camere semidecomandat, mobilat în Tractorul
135.000 €
Brașov, Tractorul
2 camere
50 mp
Etaj 4 / 8
Apartament cu 2 camere semidecomandat în Tractorul
135.360 €
Brașov, Tractorul
2 camere
56,4 mp
Etaj 2 / 10
Apartament cu 2 camere decomandat, mobilat în Tractorul
139.000 €
Brașov, Tractorul
2 camere
54 mp
Etaj 3 / 3

Detalii de contact

ONE ESTATE INVEST

Golovco Petru Manager

ONE ESTATE INVEST
PRO

Abonează-te la newsletter să fii primul care primește cele mai noi recomandări de proprietăți și sfaturi de la experți.

CONTACT

Creează alertă

Salvează căutarea ca să primești pe email ultimele anunțuri publicate

Apartamente cu 3 camere de vânzare în zona Tractorul, Brașov