1

Apartament Însorit, constructie finalizata

159.000 €

Tractorul, Brașov

Nr. cam.:
3
Sup. utilă:
77 mp
Etaj:
6 / 6
An constr.:
2025 (În construcție)
  • • Locație aproximativă

Descriere apartament

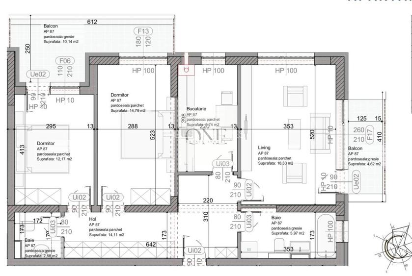
ONE ESTATE INVEST, vă propune spre vânzare un apartament situat în zona Tractorul, pe str. Orizontului. Apartamentul este dispus pe 3 camere, după cum urmează: - Holul de acces; - Bucătărie open space; - Living-ul cu balcon (8 mp); - Dormitorul 1; - Dormitorul 2; - Baie; Beneficii: - bloc nou; - posibilitatea personalizarii finisajelor interioare; - acces facil; - parcare supraterană; - centrală termică; - finisaje calitative; Observatii: Se acceptă credit bancar. Fotografiile sunt cu titlu de prezentare. Locul de parcare contracost.
Citește mai mult Citește mai puțin
Confort 1 Decomandat 1 Balcon / Terasă / Logie Calorifere Centrală proprie

Detalii apartament

ID anunț: XEQ90003M Copiat! 272283760 Copiat!
Actualizat în: 02 Februarie 2026
Suprafață construită: 72 mp
Nr. bucătării: 1
Nr. băi: 1
Structură rezistență: Cărămidă
Tip imobil: Bloc de apartamente
Regim înălțime: P+6E

Utilități

Destinație
Rezidențial
Pereți
Faianță Vopsea lavabilă
Podele
Gresie
Izolații termice
Exterior
Facilități imobil
Interfon Lift
Utilități
Curent Apă Canalizare CATV Gaze Telefon
Amenajare străzi
Iluminat stradal Mijloace de transport în comun Asfaltate

Disponibilitate proprietate:

Imediat

Puncte de interes

Mijloace transport
bus-station
Rulmentul
Stații autobuz aprox. 482 m
bus-station
Statia "Cap linie Rulmentul", linia 2,7,8,9,30
Stații autobuz aprox. 484 m
bus-station
Statia "Rulmentul", linia 2,7,8,9,30
Stații autobuz aprox. 772 m
bus-station
Tractor Proiect
Stații autobuz aprox. 1350 m
Școală
school
Colegiul Tehnic "Sfintii Voievozi Romani"
Școli aprox. 499 m
school
Liceul Teoretic "Nicolae Titulescu"
Școli aprox. 1909 m
Recreere
restaurant
Hotel restaurant STOP
Restaurant aprox. 392 m
supermarket
Coresi Shopping Resort
Supermarket aprox. 1399 m
cafe
Starbucks
Cafenea aprox. 1470 m
park
Parc
Parcuri aprox. 1577 m

Detalii despre preț și costuri

Prețul pe piață

Preț cerut: 159.000 €

Preț min. zonă 112.200 €
Preț max. zonă 298.000 €

72% dintre proprietățile similare ca zonă și nr. camere au prețul cerut mai mare. mai multe...

Bine de știut: prețul unei proprietăți este influențat și de alte caracteristici, cum ar fi: vechime, localizare, vecinătăți, suprafață, compartimentare, amenajări, dotări, etc. mai puțin...

Costuri cu achiziția

Fără credit
8.361 RON
Credit ipotecar
10.149 RON
Noua casă
950 RON+ taxe notariale

i

Costuri adiționale mai puțin știute la achiziție: taxe notariale, comisioane etc.

Proprietăți similare

Apartament cu 3 camere semidecomandat în Tractorul
159.700 €
Brașov, Tractorul
3 camere
67,7 mp
Parter / 3
Apartament cu 3 camere decomandat, mobilat în Tractorul
164.500 €
Brașov, Tractorul
3 camere
72 mp
Parter
Apartament cu 2 camere decomandat, mobilat în Tractorul
153.000 € + TVA
Brașov, Tractorul
2 camere
55,7 mp
Etaj 4

Detalii de contact

ONE ESTATE INVEST

Adrian Neculai Senior Broker

ONE ESTATE INVEST
PRO

Abonează-te la newsletter să fii primul care primește cele mai noi recomandări de proprietăți și sfaturi de la experți.

CONTACT

Creează alertă

Salvează căutarea ca să primești pe email ultimele anunțuri publicate

Apartamente cu 3 camere de vânzare în zona Tractorul, Brașov