Descoperă un apartament modern, complet pregătit pentru mutare, situat la etajul 1 într-un imobil solid, ideal atât pentru locuire confortabilă, cât și pentru investiție sigură.
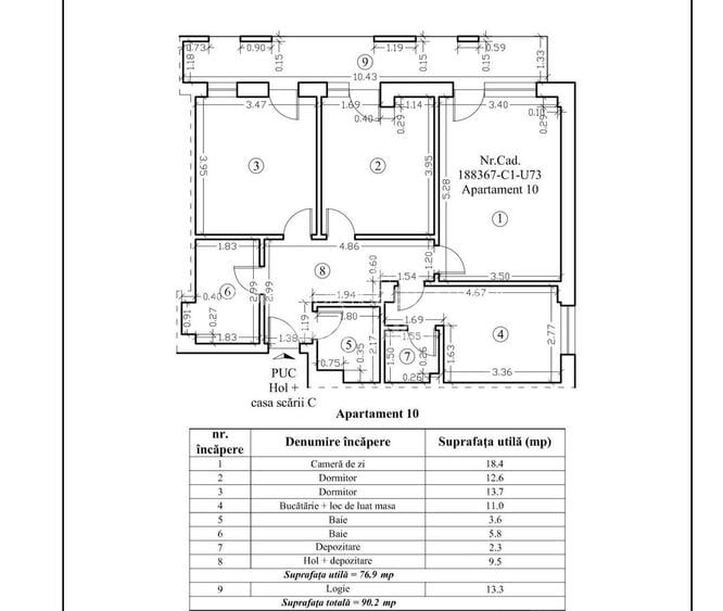
Cu o suprafață totală generoasă de 90,2 mp, această proprietate îți oferă echilibrul perfect între spațiu, funcționalitate și intimitate.
Compartimentare inteligentă (decomandat):
• Living luminos, ideal pentru relaxare și socializare
• 2 dormitoare generoase
• Bucătărie practică cu depozitare
• 2 Băi moderne si spațiose
• Balcon mare de 13,2 mp – perfect pentru momentele de relaxare.
Puncte forte:
Încălzire în pardoseală cu reglaj individual în fiecare cameră
Construcție solidă din beton și cărămidă
zolație eficientă cu vată bazaltică
Loc de parcare inclus în preț
Posibilitate achiziție al doilea loc de parcare
Parc privat în complex (~700 mp) – ideal pentru familii
Apartament finalizat și intabulat – mutare imediată.
Prețul apartamentului este de 192.500 EUR plus TVA, Negociabil!
Programează o vizionare și descoperă personal confortul acestui apartament.
Oportunitățile bune nu rămân mult timp în piață.
Citește mai mult
Citește mai puțin
Confort lux
Decomandat
Centrală imobil
Încălzire prin pardoseală
1 Parcare
56%dintre proprietățile similare ca zonă și nr. camere au prețul cerutmai mic.
mai multe...
Bine de știut: prețul unei proprietăți este influențat și de alte caracteristici, cum ar fi: vechime, localizare, vecinătăți, suprafață, compartimentare, amenajări, dotări, etc.
mai puțin...
Insight premium disponibil după login
Costuri cu achiziția
Fără credit
€
Credit ipotecar
€
Noua casă
€
i
Costuri adiționale mai puțin știute la achiziție: taxe notariale, comisioane etc.
Sediul central - Timișoara
Bulevardul Victor Babeș nr. 2, 300230, Timișoara, România
Tel: +40.374.40.44.98 / Fax: +40.256.401.179
Email: suport@imobiliare.ro
Luni - Vineri 08:00 - 20:00
Punct de lucru - București: Iride Business Park, Bld. Dimitrie
Pompeiu 9-9A, Clădirea B2B,
020335, Sector 2, București, România
CONTACT
Sediul central - Timișoara
Bulevardul Victor Babeș nr. 2, 300230, Timișoara, România
Tel: +40.374.40.44.98 / Fax: +40.256.401.179
Email: suport@imobiliare.ro
Luni - Vineri 08:00 - 20:00
Punct de lucru - București: Iride Business Park, Bld. Dimitrie
Pompeiu 9-9A, Clădirea B2B,
020335, Sector 2, București, România
Sună acum și cere detalii sau programează o vizionare.
Cere detalii prin email
*
*
*
*
Stații autobuz
Școli
Gradinițe
Supermarket
Parcări
Parcuri
Terenuri sport
Spital
Cafenea
Restaurant
Pub
Bancă
Statia "Rulmentul", linia 2,7,8,9,30
aprox.
747 m
Rulmentul
aprox.
797 m
Statia "Cap linie Rulmentul", linia 2,7,8,9,30
aprox.
802 m
Statia "Tractor Proiect", linia 2,7,8,9,30
aprox.
911 m
Tractor Proiect
aprox.
911 m
Coresi
aprox.
1042 m
Cineplex Coresi
aprox.
1228 m
Liceul Tractorul
aprox.
1268 m
13 Decembrie
aprox.
1317 m
Metrabas
aprox.
1361 m
Statia Metabras, linia 40
aprox.
1369 m
Statia "Liceul tractorul", linia 2,7,8,9,30
aprox.
1386 m
Leroy Merlin
aprox.
1412 m
Statia Baumax, linia 40
aprox.
1418 m
Liceul Tractorul
aprox.
1418 m
Colegiul Tehnic "Sfintii Voievozi Romani"
aprox.
762 m
Liceul Teoretic "Nicolae Titulescu"
aprox.
1270 m
Colegiul Tehnic "Mircea Cristea"
aprox.
1644 m
Scoala generala nr.13
aprox.
1645 m
Colegiul Tehnic Mircea Cristea
aprox.
1722 m
Scoala Generala nr 30
aprox.
1802 m
Gradinita cu program normal nr. 35 (fosta nr. 69)
aprox.
1486 m
Gradinita cu program prelungit nr. 33 (fosta nr. 45)
aprox.
1659 m
Gradinita cu program normal nr. 32 (fosta nr. 19)
aprox.
1745 m
Gradinita cu program normal Nr.32
aprox.
1745 m
Gradinita
aprox.
1865 m
Gradinita 34
aprox.
1888 m
Coresi Shopping Resort
aprox.
1206 m
Auchan
aprox.
1319 m
Penny Market
aprox.
1423 m
Lidl
aprox.
1652 m
Profi
aprox.
1735 m
Parcare
aprox.
770 m
Parcare
aprox.
1236 m
Parcare
aprox.
1262 m
Parcare
aprox.
1399 m
Parcare
aprox.
1524 m
Parcare
aprox.
1529 m
Parcare
aprox.
1671 m
Parcare
aprox.
1700 m
Parcare
aprox.
1705 m
Parcare
aprox.
1718 m
Parcare pentru clienti
aprox.
1720 m
Parcare
aprox.
1732 m
Parcare
aprox.
1755 m
Parcare
aprox.
1807 m
Parcare
aprox.
1809 m
Parc
aprox.
754 m
basketball park
aprox.
1515 m
Parc
aprox.
1635 m
Zona verde
aprox.
1712 m
Parc
aprox.
1786 m
Parc
aprox.
1814 m
Park around the bridge (en)
aprox.
1892 m
Parcul Tractorul
aprox.
1935 m
Parcul Tractorul
aprox.
1973 m
Loc de Joaca
aprox.
1752 m
Loc de Joaca
aprox.
1861 m
Teren sportiv
aprox.
1893 m
Loc de Joaca
aprox.
1919 m
Teren minifotbal
aprox.
1924 m
Loc de Joaca
aprox.
1948 m
Spitalul Tractorul
aprox.
1685 m
Clinica Medlife
aprox.
1742 m
Clinica MedLife Turnului
aprox.
1814 m
Spitalul Medlife Brasov
aprox.
1838 m
Starbucks
aprox.
1073 m
Hotel restaurant STOP
aprox.
1494 m
Garden Club
aprox.
1512 m
Crai Nou
aprox.
1559 m
Restaurant Fox
aprox.
1695 m
Melody
aprox.
1701 m
Banca ING
aprox.
1702 m
Cartierul Tractorul este bine deservit la capitolul transport public, fiind străbătut de mai multe linii de autobuz cu care locuitorii pot ajunge foarte ușor în alte zone ale orașului. Concret, este vorba de autobuzul 2, care circulă pe ruta Livada Poștei - Rulmentul, autobuzul 9, care leagă Rulmentul de Stadionul Municipal, autobuzul 7, care pleacă tot din Rulmentul și are capăt de linie la Roman, autobuzul 8, care circulă în direcția Rulmentul - Saturn, autobuzul 410, care leagă Subcetate de Rulmentul, autobuzul 411, care circulă pe ruta Rulmentul - Sânpetru Residence, autobuzul 412, care pornește din Rulmentul și are capăt de linie la Morii Sânpetru, autobuzul 36, care leagă Livada Poștei de Independenței, autobuzul 15, circulă pe ruta Avantgarden - Triaj, autobuzul 29, care pleacă din Bartolomeu Nord și are capăt de linie la Gara Brașov, și autobuzul 53, care circulă în direcția Panselelor - Facultatea de Construcții. De menționat la acest capitol ar mai fi faptul că în cartierul Tractorul se află și Gara Brașov, iar în apropiere este amplasată și autogara.
Cartierul Tractorul stă bine și din punct de vedere educațional. Astfel, dacă iei decizia de a te muta în această zonă, poți să-ți înscrii copilul la Școala Gimnazială Nr. 30, situată pe str. 1 Decembrie 1918, sau la Școala Gimnazială Nr. 13, aflată pe str. Olteț. Tot pe aceeași stradă se află și Grădinița Nr. 33, la care poți apela dacă ai copii de vârstă mică. De asemenea, găsești în această zonă și două colegii. Este vorba de Colegiul "Nicolae Titulescu", aflat pe str. 13 Decembrie, și de Colegiul Tehnic "Mircea Cristea", situat pe str. Turnului. Tot între granițele acestui cartier își desfășoară activitatea și o școală internațională privată, pe str. 13 Decembrie, precum și Universitatea "Spiru Haret", care este tot una particulară, aflată pe str. Turnului.
Ai o mulțime de alternative pentru a face cumpărături în cartierul Tractorul. Între granițele acestei zone se află Coresi Shopping Resort, cel mai mare mall din Transilvania, în care găsești o varietate de magazine, localuri și un restaurant. În cadrul acestui centru comercial funcționează și un supermarket Auchan. Dacă vrei să cumperi direct de la producători locali, în cartier funcționează și Piața Tractorul, pe str. Olteț. Totodată, mai găsești un supermarket Penny, pe str. Aluminiului, două magazine MegaImage, pe str. Olteț și pe str. 13 Decembrie, precum și un supermarket Lidl, pe str. Turnului. De asemenea, foarte aproape de Tractorul, în cartierul vecin Centrul Nou, se află un alt centru comercial important, Unirea Shopping Center Brașov, cu magazine fashion, restaurante, supermarket și sală de fitness.
Având în vedere că Tractorul este unul dintre cele mai populate cartiere din orașul Brașov, găsirea unui loc de parcare de către șoferi nu se poate realiza cu ușurință. Zona este în plină dezvoltare, așa că Primăria Brașov a început să amenajeze noi locuri de parcare.
Cartierul Tractorul nu duce lipsă nici de modalități de recreere. De menționat la acest capitol ar fi faptul că aici găsești un parc sportiv, fostul parc Tractorul, care se întinde pe o suprafață de peste 40 de hectare. Este ideal pentru persoanele care doresc să se plimbe sau să citească în mijlocul naturii. În interiorul acestui parc se află și Patinoarul Brașov, sunt amenajate piste pentru role, terenuri de fotbal și baschet și este montată aparatură pentru fitness. De asemenea, în acest parc poate fi admirată o frumoasă fântână arteziană. Totodată, în acest cartier găsești și câteva locuri de joacă pentru copii, iar pentru plimbări relaxante ai și alternativa malului râului Timișul Sec. În Tractorul sunt deschise și șase biserici.
Cartierul Tractorul este bine deservit și din punct de vedere medical. Aici funcționează un pavilion al Spitalului Clinic Județean de Urgență Brașov, pe str. Olteț. Totodată, în zonă își desfășoară activitatea mai multe cabinete și clinici medicale private. De menționat ar fi un centru de radioterapie și o clinică medicală, ambele pe str. Turnului. De asemenea, mai găsești două cabinete oftalmologice pe str. 13 Decembrie, un laborator medical pe str. Olteț și un medic de familie pe str. General Mociulschi. Mai mult, o clinică de ortopedie se află pe str. 1 Decembrie 1918 și un alt medic de familie găsești pe str. Bronzului.
Având în vedere că în cartierul Tractorul este deschis cel mai mare mall din Transilvania, aici găsești o mulțime de alternative în cazul în care dorești să iei masa în oraș. Mai precis, în cadrul Coresi Shopping Resort este amenajată o zonă de food court, cu numeroase restaurante, pizzerii și fast food-uri. Totodată, între granițele acestui cartier se află mai multe restaurante, printre care și unul cu specific italian, pe str. Ioan Popasu, precum și un fast food McDonalds, pe str. Turnului. Dacă ți-e poftă de un preparat dulce, pe str. Alexandru Ciurcu găsești și o cofetărie.
Datorită prezenței centrului comercial Coresi Shopping Resort în cartierul Tractorul, locuitorii beneficiază de mai multe oferte din punct de vedere bancar. Mai precis, în acest mall se află surcursale ale băncilor ING, Banca Transilvania și BCR, precum și un bancomat Garanti Bank. De asemenea, mai găsești în zona Tractorul un bancomat al Băncii Transilvania, pe str. Turnului și altul Raiffeisen Bank, pe str. 13 Decembrie, precum și patru sucursale bancare: una CEC Bank, pe str. Panait Cerna, ING, UniCredit Bank și BRD, pe str. Olteț, precum și Raiffeisen Bank și Banca Transilvania, pe str. 1 Decembrie 1918.
Înainte să pleci...
Ești sigur că ai văzut și aceste proprietăți?
205.000 €
Brașov, Tractorul
2 camere
83,01 mp
Etaj 1 / 10
199.800 €
Brașov, Tractorul
2 camere
53 mp
Etaj 6 / 6
185.000 €
Brașov, Tractorul
3 camere
75 mp
Etaj 11
Creează alertă
Salvează căutarea ca să primești pe email ultimele anunțuri publicate
Apartamente noi cu 3 camere de vânzare în zona Tractorul, Brașov
Cere detalii prin email
*
*
*
*
Detaliile tale de contact vor fi partajate cu Mountimob Top Estate Srl