Studio premium cu vedere deschisă către Aleea Pietonală| Kasper Coresi | Quiboo Estate
Quiboo Estate vă prezintă spre vânzare un studio modern, cu o compartimentare eficientă și finisaje de calitate, situat la etajul 2 din 8 al unui imobil construit în anul 2019, dotat cu lift panoramic.
Proprietatea beneficiază de o orientare sud-vestică, oferind lumină naturală abundentă și o vedere deschisă către pietonala Kasper Coresi, poziționare ce asigură atât intimitate, cât și acces rapid către zona comercială și de promenadă.
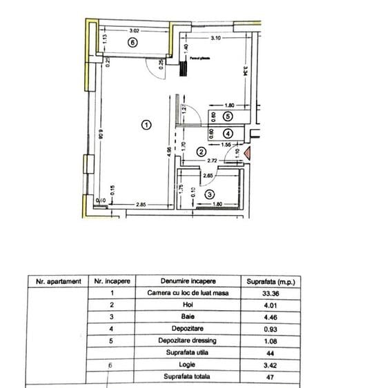
Compartimentare și suprafețe:
• Cameră spațioasă cu zonă de dining: 33.36 mp
• Hol acces: 4.01 mp
• Baie: 4.46 mp
• Spațiu depozitare: 0.93 mp
• Dressing: 1.08 mp
• Suprafață utilă: 44 mp
• Logie: 3.42 mp
• Suprafață totală: 47 mp
Locuința este echipată cu centrală termică proprie Viessmann și calorifere, oferind control individual al confortului termic. Baia este dotată cu cadă și beneficiază de ventilație mecanică, asigurând un climat optim.
Spațiul interior este pus în valoare de suprafețele vitrate generoase, care amplifică luminozitatea și creează o atmosferă plăcută și aerisită.
Proprietatea dispune de logie, ideală pentru relaxare, precum și de aer condiționat, pentru un confort sporit în sezonul cald.
Un avantaj important îl reprezintă locul de parcare și boxa la demisol, incluse, cu vizibilitate directă asupra locului de parcare din apartament.
Imobilul face parte dintr-un ansamblu rezidențial modern, apreciat pentru calitatea construcției și facilitățile oferite, fiind o alegere excelentă atât pentru rezidență personală, cât și ca investiție.
93%dintre proprietățile similare ca zonă și nr. camere au prețul cerutmai mic.
mai multe...
Bine de știut: prețul unei proprietăți este influențat și de alte caracteristici, cum ar fi: vechime, localizare, vecinătăți, suprafață, compartimentare, amenajări, dotări, etc.
mai puțin...
Insight premium disponibil după login
Costuri cu achiziția
Fără credit
€
Credit ipotecar
€
Noua casă
€
i
Costuri adiționale mai puțin știute la achiziție: taxe notariale, comisioane etc.
Sediul central - Timișoara
Bulevardul Victor Babeș nr. 2, 300230, Timișoara, România
Tel: +40.374.40.44.98 / Fax: +40.256.401.179
Email: suport@imobiliare.ro
Luni - Vineri 08:00 - 20:00
Punct de lucru - București: Iride Business Park, Bld. Dimitrie
Pompeiu 9-9A, Clădirea B2B,
020335, Sector 2, București, România
CONTACT
Sediul central - Timișoara
Bulevardul Victor Babeș nr. 2, 300230, Timișoara, România
Tel: +40.374.40.44.98 / Fax: +40.256.401.179
Email: suport@imobiliare.ro
Luni - Vineri 08:00 - 20:00
Punct de lucru - București: Iride Business Park, Bld. Dimitrie
Pompeiu 9-9A, Clădirea B2B,
020335, Sector 2, București, România
Sună acum și cere detalii sau programează o vizionare.
Nu rata ocazia să afli mai multe!
Sună acum și cere detalii sau programează o vizionare.
Cere detalii prin email
*
*
*
*
Stații autobuz
Stații tren
Școli
Gradinițe
Universități
Supermarket
Parcări
Terenuri sport
Parcuri
Piețe publice
Spital
Farmacie
Cafenea
Restaurant
Bar
Pub
Bancă
13 Decembrie
aprox.
353 m
Cineplex Coresi
aprox.
419 m
Liceul Tractorul
aprox.
456 m
Liceul Tractorul
aprox.
457 m
Statia "Liceul tractorul", linia 2,7,8,9,30
aprox.
460 m
Tractorul
aprox.
528 m
Statia "Tractorul", linia 7,8,30,2,9
aprox.
535 m
Statia "Spital Tractorul", linia 29,9,36
aprox.
602 m
Coresi
aprox.
605 m
Spital Tractorul
aprox.
610 m
Statia "Biserica Tractorul", linia 2,36,30,8 si 29
aprox.
612 m
Biserica Tractorul
aprox.
647 m
Gara Brasov
aprox.
680 m
Statia "Tractor Proiect", linia 2,7,8,9,30
aprox.
750 m
Tractor Proiect
aprox.
750 m
Statia CFR Brasov
aprox.
740 m
Gara Brasov Călători CFR
aprox.
770 m
Colegiul Tehnic "Mircea Cristea"
aprox.
339 m
Colegiul Tehnic Mircea Cristea
aprox.
436 m
Liceul Teoretic "Nicolae Titulescu"
aprox.
553 m
Scoala generala nr.13
aprox.
877 m
Sala Sport Scoala Generala Nr. 19
aprox.
1148 m
Gradinita 28
aprox.
1285 m
Scoala Generala nr 30
aprox.
1319 m
Scoala numarul 17
aprox.
1374 m
Armoniei , 8 - 10
aprox.
1434 m
Școala Generală nr. 27
aprox.
1549 m
Scoala Generala Nr. 27
aprox.
1552 m
Liceul Dr. Ioan Mesota
aprox.
1625 m
Colegiul National "Dr Ioan Mesota"
aprox.
1628 m
Colegiul Tehnic "Sfintii Voievozi Romani"
aprox.
1640 m
Scoala generala nr 24
aprox.
1667 m
Gradinita
aprox.
521 m
Gradinita 34
aprox.
533 m
Gradinita cu program normal nr. 32 (fosta nr. 19)
aprox.
676 m
Gradinita cu program normal Nr.32
aprox.
676 m
Gradinita cu program prelungit nr. 33 (fosta nr. 45)
aprox.
814 m
Gradinita cu program prelungit nr. 11A (fosta nr. 65)
aprox.
1080 m
Gradinita cu program normal nr. 17 SG (fosta nr. 14)
aprox.
1276 m
Gradinita 28
aprox.
1285 m
Gradinita cu program normal nr. 35 (fosta nr. 69)
aprox.
1394 m
Gradinita cu program prelungit nr. 10 (fosta nr. 49)
aprox.
1427 m
Gradinita cu program saptamanal nr. 9 (fosta nr. 34)
aprox.
1450 m
Gradinita 15
aprox.
1569 m
Gradinita nr. 14A
aprox.
1626 m
Gradinita cu program prelungit nr. 31 (fosta nr. 30)
aprox.
1631 m
Gradinita cu program normal nr. 14 A (fosta nr. 26)
aprox.
1633 m
Facultatea de Constructii
aprox.
629 m
Facultatea de Constructii - Universitatea Transilvania - Corpul J
aprox.
639 m
Corpul V
aprox.
1870 m
Corpul V al Universitatii Transilvania
aprox.
1905 m
Universitatea Transilvania Corp V
aprox.
1905 m
Lidl
aprox.
504 m
Auchan
aprox.
521 m
Coresi Shopping Resort
aprox.
544 m
Unirea Shopping Center
aprox.
867 m
Profi
aprox.
1007 m
Rapid Garii
aprox.
1074 m
Carrefour
aprox.
1170 m
Lidl
aprox.
1219 m
Profi
aprox.
1374 m
Penny Market
aprox.
1396 m
Carrefour Express
aprox.
1659 m
Carrefour Market
aprox.
1750 m
Rapid Toamnei
aprox.
1803 m
Sergiana
aprox.
1817 m
Profi
aprox.
1817 m
Parcare
aprox.
419 m
Parcare
aprox.
427 m
Parcare
aprox.
437 m
Parcare
aprox.
488 m
Parcare
aprox.
520 m
Parcare
aprox.
522 m
Parcare pentru clienti
aprox.
566 m
Parcare
aprox.
817 m
Parcare
aprox.
835 m
Parcare cu plata
aprox.
847 m
Parcare
aprox.
848 m
Parcare cu plata
aprox.
850 m
Parcare
aprox.
851 m
Parcare cu plata
aprox.
852 m
Parcare cu plata
aprox.
870 m
Teren sportiv
aprox.
470 m
Loc de Joaca
aprox.
475 m
Teren sportiv
aprox.
590 m
Loc de Joaca
aprox.
608 m
Teren minifotbal
aprox.
620 m
Teren sportiv
aprox.
857 m
Teren sportiv
aprox.
869 m
Teren sportiv
aprox.
870 m
Teren sportiv
aprox.
871 m
Teren sportiv
aprox.
880 m
Teren sportiv
aprox.
880 m
Teren sportiv
aprox.
883 m
Teren sportiv
aprox.
892 m
Teren sportiv
aprox.
893 m
Teren sportiv
aprox.
894 m
Parc
aprox.
477 m
Parcul Tractorul
aprox.
502 m
Parcul Tractorul
aprox.
549 m
Parcul CFR
aprox.
800 m
Parc
aprox.
837 m
Parc
aprox.
959 m
Parc
aprox.
962 m
Parc
aprox.
1030 m
Zonă verde
aprox.
1030 m
Parc
aprox.
1039 m
Loc de joaca pentru copii
aprox.
1122 m
Loc de Joaca
aprox.
1206 m
Parc
aprox.
1279 m
Parc
aprox.
1328 m
Green area (en)
aprox.
1379 m
Square & Monument (en)
aprox.
871 m
Clinica MedLife Turnului
aprox.
411 m
Spitalul Medlife Brasov
aprox.
424 m
Clinica Medlife
aprox.
532 m
Spitalul Tractorul
aprox.
680 m
Spitalul de boli infectioase
aprox.
1905 m
Clinica Eva
aprox.
1970 m
Musetel
aprox.
1092 m
Malva
aprox.
1717 m
Sensiblu
aprox.
1793 m
Farmacie
aprox.
1802 m
HelpNet
aprox.
1808 m
Farmacom
aprox.
1813 m
Farmacie
aprox.
1893 m
Starbucks
aprox.
583 m
Danik Kaffee
aprox.
819 m
La Placinte
aprox.
828 m
Kronwell
aprox.
856 m
Unirea
aprox.
860 m
Restaurant Fox
aprox.
1039 m
Pizza Iolo
aprox.
1213 m
Pizza Hot
aprox.
1282 m
Restaurant Rotmans
aprox.
1311 m
Restaurant ''Casa Oatului''
aprox.
1479 m
Romantic
aprox.
1482 m
Hotel Oasis
aprox.
1537 m
SaladBox
aprox.
1585 m
Hotel Brasov
aprox.
1608 m
Papaia
aprox.
1630 m
Pizza Nela Bruni
aprox.
1660 m
Casa Bucur
aprox.
1668 m
Karma Lounge
aprox.
890 m
Pub Vlahuta
aprox.
1781 m
Melody
aprox.
909 m
Temple Pub & Grill
aprox.
1738 m
Social Pub
aprox.
1798 m
CEC Bank
aprox.
938 m
ING Office Brasov Victoriei
aprox.
1102 m
Bancpost
aprox.
1112 m
BCR
aprox.
1133 m
Banca BCR
aprox.
1133 m
Volksbank
aprox.
1258 m
BCR
aprox.
1280 m
Banca ING
aprox.
1288 m
Exim
aprox.
1314 m
BRD
aprox.
1368 m
CEC Bank
aprox.
1494 m
CEC Bank building (en)
aprox.
1505 m
BRD Sucursala Brasov
aprox.
1601 m
BRD
aprox.
1604 m
Raiffeisen Bank
aprox.
1606 m
Cartierul Tractorul este bine deservit la capitolul transport public, fiind străbătut de mai multe linii de autobuz cu care locuitorii pot ajunge foarte ușor în alte zone ale orașului. Concret, este vorba de autobuzul 2, care circulă pe ruta Livada Poștei - Rulmentul, autobuzul 9, care leagă Rulmentul de Stadionul Municipal, autobuzul 7, care pleacă tot din Rulmentul și are capăt de linie la Roman, autobuzul 8, care circulă în direcția Rulmentul - Saturn, autobuzul 410, care leagă Subcetate de Rulmentul, autobuzul 411, care circulă pe ruta Rulmentul - Sânpetru Residence, autobuzul 412, care pornește din Rulmentul și are capăt de linie la Morii Sânpetru, autobuzul 36, care leagă Livada Poștei de Independenței, autobuzul 15, circulă pe ruta Avantgarden - Triaj, autobuzul 29, care pleacă din Bartolomeu Nord și are capăt de linie la Gara Brașov, și autobuzul 53, care circulă în direcția Panselelor - Facultatea de Construcții. De menționat la acest capitol ar mai fi faptul că în cartierul Tractorul se află și Gara Brașov, iar în apropiere este amplasată și autogara.
Cartierul Tractorul stă bine și din punct de vedere educațional. Astfel, dacă iei decizia de a te muta în această zonă, poți să-ți înscrii copilul la Școala Gimnazială Nr. 30, situată pe str. 1 Decembrie 1918, sau la Școala Gimnazială Nr. 13, aflată pe str. Olteț. Tot pe aceeași stradă se află și Grădinița Nr. 33, la care poți apela dacă ai copii de vârstă mică. De asemenea, găsești în această zonă și două colegii. Este vorba de Colegiul "Nicolae Titulescu", aflat pe str. 13 Decembrie, și de Colegiul Tehnic "Mircea Cristea", situat pe str. Turnului. Tot între granițele acestui cartier își desfășoară activitatea și o școală internațională privată, pe str. 13 Decembrie, precum și Universitatea "Spiru Haret", care este tot una particulară, aflată pe str. Turnului.
Ai o mulțime de alternative pentru a face cumpărături în cartierul Tractorul. Între granițele acestei zone se află Coresi Shopping Resort, cel mai mare mall din Transilvania, în care găsești o varietate de magazine, localuri și un restaurant. În cadrul acestui centru comercial funcționează și un supermarket Auchan. Dacă vrei să cumperi direct de la producători locali, în cartier funcționează și Piața Tractorul, pe str. Olteț. Totodată, mai găsești un supermarket Penny, pe str. Aluminiului, două magazine MegaImage, pe str. Olteț și pe str. 13 Decembrie, precum și un supermarket Lidl, pe str. Turnului. De asemenea, foarte aproape de Tractorul, în cartierul vecin Centrul Nou, se află un alt centru comercial important, Unirea Shopping Center Brașov, cu magazine fashion, restaurante, supermarket și sală de fitness.
Având în vedere că Tractorul este unul dintre cele mai populate cartiere din orașul Brașov, găsirea unui loc de parcare de către șoferi nu se poate realiza cu ușurință. Zona este în plină dezvoltare, așa că Primăria Brașov a început să amenajeze noi locuri de parcare.
Cartierul Tractorul nu duce lipsă nici de modalități de recreere. De menționat la acest capitol ar fi faptul că aici găsești un parc sportiv, fostul parc Tractorul, care se întinde pe o suprafață de peste 40 de hectare. Este ideal pentru persoanele care doresc să se plimbe sau să citească în mijlocul naturii. În interiorul acestui parc se află și Patinoarul Brașov, sunt amenajate piste pentru role, terenuri de fotbal și baschet și este montată aparatură pentru fitness. De asemenea, în acest parc poate fi admirată o frumoasă fântână arteziană. Totodată, în acest cartier găsești și câteva locuri de joacă pentru copii, iar pentru plimbări relaxante ai și alternativa malului râului Timișul Sec. În Tractorul sunt deschise și șase biserici.
Cartierul Tractorul este bine deservit și din punct de vedere medical. Aici funcționează un pavilion al Spitalului Clinic Județean de Urgență Brașov, pe str. Olteț. Totodată, în zonă își desfășoară activitatea mai multe cabinete și clinici medicale private. De menționat ar fi un centru de radioterapie și o clinică medicală, ambele pe str. Turnului. De asemenea, mai găsești două cabinete oftalmologice pe str. 13 Decembrie, un laborator medical pe str. Olteț și un medic de familie pe str. General Mociulschi. Mai mult, o clinică de ortopedie se află pe str. 1 Decembrie 1918 și un alt medic de familie găsești pe str. Bronzului.
Având în vedere că în cartierul Tractorul este deschis cel mai mare mall din Transilvania, aici găsești o mulțime de alternative în cazul în care dorești să iei masa în oraș. Mai precis, în cadrul Coresi Shopping Resort este amenajată o zonă de food court, cu numeroase restaurante, pizzerii și fast food-uri. Totodată, între granițele acestui cartier se află mai multe restaurante, printre care și unul cu specific italian, pe str. Ioan Popasu, precum și un fast food McDonalds, pe str. Turnului. Dacă ți-e poftă de un preparat dulce, pe str. Alexandru Ciurcu găsești și o cofetărie.
Datorită prezenței centrului comercial Coresi Shopping Resort în cartierul Tractorul, locuitorii beneficiază de mai multe oferte din punct de vedere bancar. Mai precis, în acest mall se află surcursale ale băncilor ING, Banca Transilvania și BCR, precum și un bancomat Garanti Bank. De asemenea, mai găsești în zona Tractorul un bancomat al Băncii Transilvania, pe str. Turnului și altul Raiffeisen Bank, pe str. 13 Decembrie, precum și patru sucursale bancare: una CEC Bank, pe str. Panait Cerna, ING, UniCredit Bank și BRD, pe str. Olteț, precum și Raiffeisen Bank și Banca Transilvania, pe str. 1 Decembrie 1918.
Înainte să pleci...
Ești sigur că ai văzut și aceste proprietăți?
129.999 €
Brașov, Tractorul
2 camere
53 mp
Etaj 7
137.990 €
Brașov, Tractorul
2 camere
48 mp
Etaj 2
145.000 € + TVA
Brașov, Tractorul
3 camere
72 mp
Etaj 1
Creează alertă
Salvează căutarea ca să primești pe email ultimele anunțuri publicate
Apartamente cu 2 camere de vânzare în zona Tractorul, Brașov
Cere detalii prin email
*
*
*
*
Detaliile tale de contact vor fi partajate cu Quiboo Real Estate