Zona Rezidentiala de Interes

192.000 €

Tractorul, Brașov

Nr. cam.:
3
Sup. utilă:
99 mp
Etaj:
3 / 10
An constr.:
2018 (Finalizată)
  • • Locație aproximativă

Descriere apartament

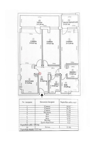
LOCALIZARE: Acest imobil este situat in Tractorul, in imediata apropiere a Coresi. COMPARTIMENTARE: - Zona de zi, care detine suprafata vitrata mare si detine acces la terasa de 12mp; - Bucataria, de tip open space, care detine deschidere la terasa, fiind mobilata si dotata, impreuna cu zona de luat masa incorporata; - Primul dormitorul, acesta dispune de acces la terasa; - Dormitorul matrimonial dispune de baie proprie cu cada, si dressing; - A doua baie, care deserveste celelalte incaperi, dispune de cabina dus. DOTARI: - centrala termica; - tamplarie PVC, cu geam termopan; - usa metalica; Locul de parcare subteran, este disponibil contracost, pret: 20.000 euro, acesta nefiind inclus in pretul de listare. Tranzactionarea proprietatii se va face cu mobilierul aferent prezentei ofertari. IMPREJURIMI: Imobilul este situat intr-o zona de blocuri, accesul auto, pana zona de centru a orasului, facandu-se in cca. 15 minute. ATRACTII ZONA: Magazine, restaurante, parcuri, școli, spitale. ACCESIBILITATE: Transport public în apropiere | la aproximativ 20 m. FORMA ACHIZITIONARE: Se accepta plata prin accesare credit. Comisin de intermediere 2%+TVA. NOTA: Informatiile prezentate reflecta situatia reala a proprietatii, fara a constitui o oferta contractuala. Aceste date au fost obtinute verbal, de la titularul de drept al imobilului. Structura acestei prezentari nu poate fi reprodusa, fara acordul scris al The Seller and Partners.
Citește mai mult Citește mai puțin
Confort lux Decomandat Mobilat Complet Calorifere Centrală proprie 1 Parcare Bine întreținut (Bună)

Detalii apartament

ID anunț: X3I02002C Copiat! 274979219 Copiat!
Actualizat în: 16 Februarie 2026
Nr. bucătării: 1
Nr. băi: 2
Tip imobil: Bloc de apartamente
Regim înălțime: P+10E
Nr. terase: 1

Utilități

Pereți
Faianță Vopsea lavabilă
Podele
Gresie Parchet
Ușă intrare
Metal
Uși interior
Celulare
Izolații termice
Exterior
Ferestre cu geam termopan
PVC
Contorizare
Apometre
Bucătărie
Mobilată Utilată
Electrocasnice
Aragaz Frigider Hotă Mașină de spălat rufe TV
Diverse
Scară interioară Senzor de fum
Alte spații utile
Debara Terasă
Dotări imobil
Interfon Lift
Utilități
Curent Apă Canalizare CATV
Acces internet
Cablu
Amenajare străzi
Iluminat stradal Mijloace de transport în comun Asfaltate

Certificat energetic:

Clasa energetică: A

Vecinătăți:

CORESI ISARAN

Disponibilitate proprietate:

Disponibil

Puncte de interes

Mijloace transport
bus-station
Statia "Tractorul", linia 7,8,30,2,9
Stații autobuz aprox. 74 m
bus-station
Tractorul
Stații autobuz aprox. 93 m
train-station
Statia CFR Brasov
Stații tren aprox. 531 m
train-station
Gara Brasov Călători CFR
Stații tren aprox. 564 m
Școală
school
Colegiul Tehnic Mircea Cristea
Școli aprox. 94 m
kindergarten
Gradinita cu program normal nr. 32 (fosta nr. 19)
Gradinițe aprox. 158 m
school
Colegiul Tehnic "Mircea Cristea"
Școli aprox. 181 m
university
Facultatea de Constructii
Universități aprox. 791 m
Recreere
supermarket
Lidl
Supermarket aprox. 48 m
park
Parc
Parcuri aprox. 114 m
sports-ground
Loc de Joaca
Terenuri sport aprox. 164 m
public-square
Square & Monument (en)
Piețe publice aprox. 647 m

Detalii despre preț și costuri

Prețul pe piață

Preț cerut: 192.000 €

Preț min. zonă 112.200 €
Preț max. zonă 298.000 €

79% dintre proprietățile similare ca zonă și nr. camere au prețul cerut mai mare. mai multe...

Bine de știut: prețul unei proprietăți este influențat și de alte caracteristici, cum ar fi: vechime, localizare, vecinătăți, suprafață, compartimentare, amenajări, dotări, etc. mai puțin...

Costuri cu achiziția

Fără credit
9.495 RON
Credit ipotecar
11.423 RON
Noua casă
1.119 RON+ taxe notariale

i

Costuri adiționale mai puțin știute la achiziție: taxe notariale, comisioane etc.

Proprietăți similare

Apartament cu 2 camere decomandat, mobilat în Tractorul
179.000 €
Brașov, Tractorul
2 camere
47 mp
Etaj 8 / 9
Apartament cu 2 camere decomandat, mobilat în Tractorul
195.000 €
Brașov, Tractorul
2 camere
56 mp
Etaj 4 / 8
Apartament cu 3 camere decomandat, mobilat în Tractorul
174.500 €
Brașov, Tractorul
3 camere
73 mp
Etaj 3

Detalii de contact

The Seller & Partners

Marina Farkas Senior Advisor

4.88(3 review-uri)

The Seller & Partners
PRO

Abonează-te la newsletter să fii primul care primește cele mai noi recomandări de proprietăți și sfaturi de la experți.

CONTACT

Creează alertă

Salvează căutarea ca să primești pe email ultimele anunțuri publicate

Apartamente cu 3 camere de vânzare în zona Tractorul, Brașov