De vanzare Ultracentral str. Muresenilor cu acces la gradina

170.000 €

Ultracentral, Brașov

Nr. cam.:
4
Sup. utilă:
105 mp
Etaj:
1 / 2
An constr.:
1920 (Finalizată)
  • • Exclusivitate
  • • Locație exactă
  • • Vizionare prin apel video

Descriere apartament

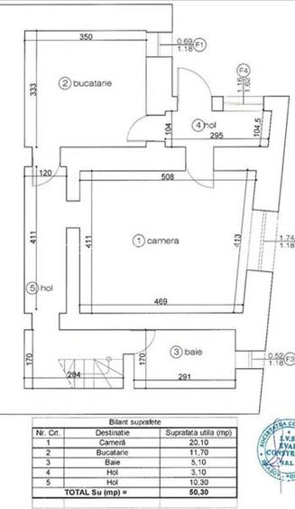
White Mountain va propune spre achizitie aceasta proprietate in zona Ultracentrala, situata pe str. Muresenilor, strada principala din zona comerciala a Brasovului, situata la capatul unei curti comune marginita de Zidul Cetatii Brasovului. Proprietatea a fost renovata complet in anul 2012, dormitoarele mobilate partial, instalatiile sanitare si electrice inlocuite, iar bucataria mobilata si utilata, geamuri termopan si velux la etaj. Are acces unic la o gradina neintabulata de 132 mp, aceasta fiind marginita de Zidurile Cetatii Brasovului. Proprietatea este impartita pe doua niveluri avand o suprafata utila de 105 mp mp si o terasa de 4.60 mp si este dispusa dupa cum urmeaza: Parter: un hol 10.30 + scara 3.10, camera living 20.10, bucatarie 11.70, baie 5.10 mp Nivel 2 : Hol + casa scarii, 3 dormitoare, baie- neintabulat Balcon de 8.30 mp Parcare in curte Proprietatea se vinde mobilata si utilata asa cum apare in prezentare. Consideram aceasta proprietate ideala pentru investitie, inchiere tip regim hotelier sau pe termen lung cat si pentru persoanele care doresc sa locuiasca in centrul istoric al orasului Brasov, intr-o casa noua si spatioasa la doar cateva minute de toate punctele de interes ale orasului. Comision la cumparare 2% Pentru detalii suplimentare sau vizionari, va rog nu ezitati sa ma contactati la numarul sau prin e-mail, la adresa . Colegii mei si cu mine va vom ajuta cu mare placere.
Citește mai mult Citește mai puțin
Decomandat Mobilat 1 Balcon / Terasă / Logie Centrală proprie 1 Parcare Bine întreținut (Bună)

Detalii apartament

ID anunț: XC4S101DR Copiat! 275264664 Copiat!
Actualizat în: 27 Aprilie 2026
Suprafață utilă totală: 105 mp
Suprafață construită: 110 mp
Nr. bucătării: 1
Nr. băi: 2
Structură rezistență: Altele
Tip imobil: Bloc de apartamente
Regim înălțime: P+2E

Utilități

Destinație
Birouri
Pereți
Faianță Vopsea lavabilă
Podele
Parchet Gresie
Ușă intrare
Lemn
Uși interior
Lemn
Izolații termice
Exterior
Ferestre cu geam termopan
PVC
Bucătărie
Utilată Mobilată
Electrocasnice
Aragaz Frigider Mașină de spălat
Diverse
Scară interioară
Alte spații utile
Terasă
Utilități
Apă Curent Gaze Canalizare Telefon
Internet
Fibră optică
Amenajare străzi
Asfaltate
Comision
2%

Vecinătăți:

Scoala/gradinita, Centru universitar, Restaurant/pub, Mall, Parc, Ultracentral, Hotel, Piata, Intersectie circulata, Trafic Pietonal, Fastfood, Cinema, Supermarket, Banca, Zona comerciala, Autobuz

Puncte de interes

Mijloace transport
bus-station
Astra
Stații autobuz aprox. 333 m
bus-station
Statia "Primarie", linia 1,4,34,37,2,31,17,36,6,52,50,50barat,16,51
Stații autobuz aprox. 358 m
bus-station
Statia N.Balcescu , linia 50, 50barat, 51,52
Stații autobuz aprox. 380 m
bus-station
Nicolae Balcescu
Stații autobuz aprox. 380 m
Școală
school
Universitatea Transilvania Rectorat
Școli aprox. 102 m
school
Liceul Aprily Lajos
Școli aprox. 107 m
university
Corpul T al Universitatii Transilvania (en)
Universități aprox. 252 m
kindergarten
Gradinita cu program normal nr. 3 (fosta nr. 1)
Gradinițe aprox. 496 m
Recreere
supermarket
Sergiana
Supermarket aprox. 66 m
public-square
Piața George Enescu
Piețe publice aprox. 138 m
park
Parcul Aro
Parcuri aprox. 184 m
mall
Magazinul Star
Mall aprox. 649 m

Detalii despre preț și costuri

Prețul pe piață

Preț cerut: 170.000 €

Preț min. zonă
Preț max. zonă

82% dintre proprietățile similare ca zonă și nr. camere au prețul cerut mai mare. mai multe...

Bine de știut: prețul unei proprietăți este influențat și de alte caracteristici, cum ar fi: vechime, localizare, vecinătăți, suprafață, compartimentare, amenajări, dotări, etc. mai puțin...

Insight premium disponibil după login

Costuri cu achiziția

Fără credit
Credit ipotecar
Noua casă

i

Costuri adiționale mai puțin știute la achiziție: taxe notariale, comisioane etc.

Insight premium disponibil după login

Proprietăți similare

Apartament cu 2 camere decomandat în Ultracentral
179.000 €
Brașov, Ultracentral
2 camere
64 mp
Parter / 2
Apartament cu 2 camere decomandat, mobilat în Răcădău
185.000 €
Brașov, Răcădău
2 camere
58 mp
Parter / 6
Apartament cu 2 camere nedecomandat, mobilat în Ultracentral
185.000 €
Brașov, Ultracentral
2 camere
95 mp
Mansardă / 1

Detalii de contact

White Mountain Property

Raluca Macarie Property Consultant Brasov

5.00(3 review-uri)

White Mountain Property
PRO

Abonează-te la newsletter să fii primul care primește cele mai noi recomandări de proprietăți și sfaturi de la experți.

CONTACT

Creează alertă

Salvează căutarea ca să primești pe email ultimele anunțuri publicate

Apartamente cu 4+ camere de vânzare în zona Ultracentral, Brașov