Sansa unica, apartament cu 3 camere si gradina intr-o vila superba din Breaza.

24.900 €

Breaza de Jos, Județul Prahova

Nr. cam.:
3
Sup. utilă:
85 mp
Etaj:
Demisol / 2
Tip prop.:
Casă/Vilă
  • • Comision 0%
  • • Locație exactă

Descriere apartament

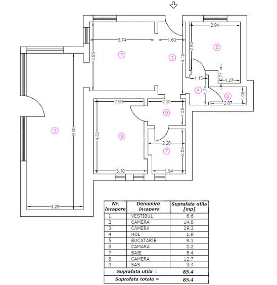
Apartament 3 camere cu vedere catre Valea Prahovei in Breaza – 85.4 mp Utili, pret imbatabil 24.900 euro. Achizitie direct de la proprietar fara comision. Adresa este Breaza de Jos, Aleeea Brazilor nr. 4 ( langa Spitalul de Boli Pulmonare din Breaza ) Descriere generala apartament • Suprafață utilă apartament: 85.4 mp situat la demisolul cladirii • Acces direct la gradina / terasa • Clădire exclusivistă cu regim de înălțime: Demisol, Parter, Etaj și Mansardă Parcare posibila in curtea imobilului Pret apartament: 24.900 euro Detalii despre apartament • Apartamentul nefinisat la interior, este la “GRI” • Compartimentare practică, am anexat RLV-ul: • Finisat la exterior • Geamurile termopan sunt montate. • In interior trebuie facuta etapa de finisaje. • Clădire exclusivistă cu doar 4 unități locative, asigurând intimitate și confort De ce să alegi această proprietate? • Sansa sa finisezi dupa gustul propriu aceasta proprietate. • Locație de vis în inima orașului Breaza, cu acces rapid la natură și facilități urbane • Spațiu generos și flexibilitate datorită apartamentului • Comunitate liniștită și primitoare Avantajele localității Breaza • Aer curat ozonificat și mediu natural deosebit, ideal pentru sănătate și relaxare • Peisaje pitorești și liniște, înconjurat de păduri și spații verzi • Infrastructură modernă și acces facil la toate facilitățile urbane Proximitate excelentă față de București, facilitând naveta sau escapade rapide
Citește mai mult Citește mai puțin
Confort 1 Nemobilat Necesită renovare Zonă de deal / munte Zonă rurală

Detalii apartament

ID anunț: XV1000E1E Copiat! 275357549 Copiat!
Actualizat în: 26 Martie 2026
Nr. băi: 1
Regim înălțime: P+2E

Utilități

Comision
0%

Puncte de interes

Recreere
park
Loc Joaca Copii
Parcuri aprox. 559 m
park
Parcul Brancoveanu
Parcuri aprox. 688 m
sports-ground
Teren handbal
Terenuri sport aprox. 833 m
sports-ground
Tenis Pensiunea Floarea
Terenuri sport aprox. 1214 m

Proprietăți similare

Apartament cu 2 camere semidecomandat, mobilat în Haltă
27.000 €
Județul Prahova, Sinaia
2 camere
35,7 mp
Etaj 3

Detalii de contact

Elvira Ciungu

Laurentiu

Abonează-te la newsletter să fii primul care primește cele mai noi recomandări de proprietăți și sfaturi de la experți.

CONTACT

Creează alertă

Salvează căutarea ca să primești pe email ultimele anunțuri publicate

Apartamente cu 3 camere de vânzare în Breaza de Jos, Județul Prahova