Proprietar, Etaj 1, Terasa 17 mp

79.900 €

Bucovăț (Remetea Mare), Județul Timiș

Nr. cam.:
2
Sup. utilă:
56 mp
Etaj:
1 / 2
An constr.:
2025 (Finalizată)
  • • Comision 0%
  • • Locație aproximativă

Descriere apartament

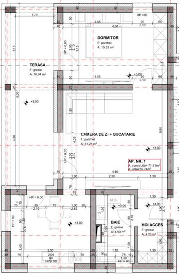
De vanzare apartament 2 camere, cu predare la cheie, situat la etaj 1, in Bucovat, aproape de Maria Parc. Suprafata utila: 55.74 mp+ 16.94 mp terasa. Compartimentare: hol de acces, living generos cu iesire pe terasa, bucatarie inchisa, dormitor cu iesire pe terasa. Dotari imobil: centrala termica Ariston, incalzire in pardoseala, tamplarie PVC tripan Salamander, loc de parcare inclus in pret. Pozele cu finisajele interioare sunt cu caracter informativ, imobilul este in curs de executie. Finisajele interioare sunt la alegerea cumparatorilor. Pret de vanzare la cheie: 79.900 EUR Comision 0%
Citește mai mult Citește mai puțin
Confort 1 Decomandat Centrală proprie Încălzire prin pardoseală 1 Parcare Bine întreținut (Bună) Zonă rurală

Detalii apartament

ID anunț: XCFF1028I Copiat! 275443439 Copiat!
Actualizat în: 16 Aprilie 2026
Suprafață construită: 73 mp
Nr. bucătării: 1
Nr. băi: 1
Structură rezistență: Cărămidă
Tip imobil: Bloc de apartamente
Regim înălțime: P+2E
Nr. terase: 1

Utilități

Pereți
Vopsea lavabilă Faianță
Podele
Parchet Gresie
Ușă intrare
PVC
Uși interior
Lemn
Izolații termice
Exterior
Ferestre cu geam termopan
PVC
Contorizare
Apometre Contor gaz
Alte spații utile
Terasă
Facilități imobil
Interfon
Utilități
Curent Apă Gaze
Amenajare străzi
Pietruite Iluminat stradal Mijloace de transport în comun
Comision
0%

Puncte de interes

Școală
school
Scoala Generala
Școli aprox. 1088 m

Detalii despre preț și costuri

Costuri cu achiziția

Fără credit
Credit ipotecar
Noua casă

i

Costuri adiționale mai puțin știute la achiziție: taxe notariale, comisioane etc.

Insight premium disponibil după login

Proprietăți similare

Apartament cu 3 camere decomandat în Bucovăț (Remetea Mare)
87.590 €
Județul Timiș, Bucovăț (Remetea Mare)
3 camere
64,92 mp
Etaj 1 / 2
Apartament cu 2 camere decomandat în Bucovăț (Remetea Mare)
75.290 €
Județul Timiș, Bucovăț (Remetea Mare)
2 camere
55,74 mp
Etaj 2 / 2
Apartament cu 3 camere decomandat în Bucovăț (Remetea Mare)
87.600 €
Județul Timiș, Bucovăț (Remetea Mare)
3 camere
65 mp
Etaj 2

Detalii de contact

Boom Estate

Flavius Ciocu Broker Imobiliar

Boom Estate
PRO

Abonează-te la newsletter să fii primul care primește cele mai noi recomandări de proprietăți și sfaturi de la experți.

Feedback apel

CONTACT

Creează alertă

Salvează căutarea ca să primești pe email ultimele anunțuri publicate

Apartamente noi cu 2 camere de vânzare în Bucovăț (Remetea Mare), Județul Timiș