12

Apartament 4 camere cu gradina The Suburb Buftea

197.054 €

Buftea, Județul Ilfov

Nr. cam.:
4
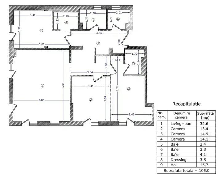
Sup. utilă:
105 mp
Etaj:
Parter / 4
An constr.:
2024 (Finalizată)
  • • Comision 0%
  • • Locație exactă

Descriere apartament

Apartamentul este compus dintr-un living spatios cu bucatarie deschisa, un dormitor matrimonial cu baie proprie, un dormitor cu dressing si un al treilea dormitor cu spatii generoase de depozitare, respectiv inca 2 bai ce deservesc livingul si dormitoarele. Toate camerele apartamentului au acces direct in gradina. 2 locuri de parcare exterioare sunt incluse in pret. Mai multe detalii gasiti pe site-ul . https:// /apartamente/apartament-4-camere-3/ The Suburb se află în orașul Buftea, o oază de liniște unde ai toate facilitățile de care ai nevoie pentru un trai confortabil. Amplasat într-o zonă înconjurată de păduri și lacuri, ansamblul rezidențial The Suburb este locul în care utilitățile orașului se îmbină cu liniștea naturii. Ansamblul The Suburb este format din 19 corpuri de clădire P+3E+4E duplex cu peste 490 de apartamente de 2,3 și 4 camere sau tip studio. Prețurile avantajoase, finisajele de calitate și eficiența energetică sunt doar câteva motive pentru care să te alături comunității The Suburb. O multitudine de beneficii te așteaptă în cea mai mare comunitate rezidențială din Buftea: Ești suficient de aproape de oraș, dar te bucuri pe deplin de liniștea suburbană. Ajungi în București în doar 15 minute folosind trenul care te duce direct în Gara de Nord. În apropierea ansamblului rezidențial ai mai multe zone de relaxare în aer liber, fiind o zonă ideală pentru tinerele familii. Palatul și capela Știrbei, turnul de apă, pădurea și lacul Buftea sunt doar câteva dintre atracțiile locale. The Suburb își propune să construiască cea mai mare comunitate rezidențială din Buftea. Uită de agitația zilnică a Bucureștiului și alătură-te unei comunități în care liniștea ta este pe primul loc. Costurile de achiziție ale apartamentelor The Suburb le fac accesibile familiilor la început de drum, persoanelor pe cont propriu și tuturor celor care își doresc un spațiul al lor, pe care să-l numească acasă. Dacă ai copii, înțelegi importanța unei grădinițe bune în apropierea casei. Micuțul tău se va dezvolta, va învăța lucruri noi și va socializa într-o grădiniță modernă și cu staff profesionist. Liniștea zonei în care vei locui este întregită de toate facilitățile de care ai nevoie pentru un trai confortabil: magazine, supermarketuri, piață, sală de fitness, creșe, grădinițe, școli, spitale, policlinici, zone de relaxare, instituții financiar bancare și mijloace de transport în comun. Toate materialele folosite atât la structura construcției, cât și la finisajele interioare și exterioare au fost alese cu grijă pentru siguranța și confortul tău. Structură de rezistența din beton armat, compartimentările cu pereții groși, izolațiile de ultimă generație și finisajele de la furnizori de top sunt doar câteva motive pentru care un apartament The Suburb este alegerea bună pe termen lung. Apartamentele sunt complet finisate, astfel că singura ta grijă rămâne alegerea mobilierului și al decorului preferat. Fiecare apartament dispune de pardoseli (parchet și gresie), tâmplărie interioară completă, izolație și toate obiectele sanitare de bază deja montate. Instalațiile termice și de ventilație asigură o temperatură optimă și o calitate superioară a aerului din încăperi, iar instalațiile electrice sunt concepute pentru 100% siguranță pentru toți membrii familiei. Alătură-te comunității The Suburb și descoperă o zonă rezidențială concepută pentru confortul și liniștea ta și a familiei tale! VAUNT ID: 41014
Citește mai mult Citește mai puțin
Confort 3 Decomandat Nemobilat 6 Balcoane / Terase / Logii Grădină Piscină Curte Curte comună Aer condiționat Centrală imobil 2 Parcări 2 Garaje Bine întreținut (Bună)

Detalii apartament

ID anunț: XAVC100E0 Copiat! 194789618 Copiat!
Actualizat în: 25 Septembrie 2025
Suprafață utilă totală: 105 mp
Suprafață construită: 137 mp
Nr. bucătării: 1
Nr. băi: 3
Structură rezistență: Beton
Tip imobil: Bloc de apartamente
Tip tranzacție: De vânzare prin agent
Regim înălțime: P+4E
Modalitate de plată: Cash sau Credit

Utilități

Destinație
Rezidențial
Pereți
Vopsea lavabilă
Podele
Gresie
Ușă intrare
Parchet Metal
Uși interior
Celulare
Izolații termice
Exterior
Ferestre cu geam termopan
PVC
Contorizare
Apometre Contor căldură Contor gaz
Diverse
Scară interioară
Alte spații utile
Terasă Debara
Facilități imobil
Spații agrement Spa Interfon Lift Piscină interioară
Utilități
Gaze CATV Telefon Telefon internațional Curent Apă Canalizare
Internet
Fibră optică Wireless
Servicii imobil
Administrare Pază Supraveghere video
Amenajare străzi
Iluminat stradal Mijloace de transport în comun Asfaltate
Comision
0%

Certificat energetic:

Clasa energetică: A
Consumul total specific de energie primară: 77 kWh
Indicele de emisii echivalent CO2: 13
Consumul total specific de energie din surse regenerabile: 7

Puncte de interes

Mijloace transport
bus-station
Gara Buftea
Stații autobuz aprox. 705 m
Școală
kindergarten
Gradinita nr. 5 Buftea
Gradinițe aprox. 773 m
school
Scoala Generala nr.1 Buftea
Școli aprox. 1001 m
school
Clubul Elevilor
Școli aprox. 1051 m
school
Scoala nr. 2
Școli aprox. 1053 m
Recreere
restaurant
La Fanica
Restaurant aprox. 763 m
supermarket
Lidl
Supermarket aprox. 873 m
park
Domeniul Stirbey
Parcuri aprox. 1010 m
supermarket
Penny Market Buftea
Supermarket aprox. 1168 m

Istoricul prețurilor

Acces la informații premium după autentificare
Login Gratuit

Detalii despre preț și costuri

Costuri cu achiziția

Fără credit
Credit ipotecar
Noua casă

i

Costuri adiționale mai puțin știute la achiziție: taxe notariale, comisioane etc.

Acces la informații premium după autentificare
Login Gratuit

Proprietăți similare

Apartament cu 3 camere decomandat în Central
169.279 €
Județul Ilfov, Popești-Leordeni
3 camere
72,78 mp
Etaj 3 / 6
Apartament cu 3 camere decomandat în Nord
153.984 €
Județul Ilfov, Buftea
3 camere
85,4 mp
Etaj 4 / 4
Apartament cu 3 camere decomandat în Nord
178.378 €
Județul Ilfov, Buftea
3 camere
88,6 mp
Etaj 4 / 4

Detalii de contact

KINGSMEN ESTATE

Cambera Bogdan Managing Partner

KINGSMEN ESTATE

Abonează-te la newsletter să fii primul care primește cele mai noi recomandări de proprietăți și sfaturi de la experți.

CONTACT

Creează alertă

Salvează căutarea ca să primești pe email ultimele anunțuri publicate

Apartamente noi cu 4+ camere de vânzare în Buftea, Județul Ilfov