Apartament 4 camere cu scara interioara si garaj zona centrala

220.000 €

Bușteni, Județul Prahova

Nr. cam.:
4
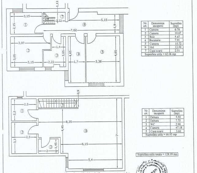
Sup. utilă:
128,99 mp
Etaj:
3 / 3
An constr.:
1987 (Finalizată)
  • • Locație exactă

Descriere apartament

De vanzare apartament spatios si bine compartimentat, situat in Busteni, in apropiere de centrul orasului, intr-un imobil solid construit in anul 1987 din beton si caramida. Apartamentul este amplasat la etajul 3 si beneficiaza de o structura pe doua niveluri, cu dispunere sud-estica, oferind lumina naturala pe tot parcursul zilei. Compartimentare: Nivel inferior: 3 camere bucatarie baie vestibul casa scarii interioare Nivel superior: spatiu hobby (ideal pentru birou sau relaxare) toaleta 2 debarale In plus, proprietatea ofera acces in pod, unde se poate amenaja un spatiu suplimentar de depozitare. Dotari si avantaje: centrala termica individuala tamplarie din termopan izolat termic la exterior constructie solida compartimentare practica pe doua niveluri Apartamentul se vinde impreuna cu un garaj construit din beton, dispus pe demisol si parter, cu posibilitate de extindere atat pe verticala, cat si pe orizontala. Ideal atat pentru locuinta permanenta, cat si pentru casa de vacanta sau investitie. Negociabil.
Citește mai mult Citește mai puțin
Confort 1 Decomandat Mobilat Centrală proprie Sobă/teracotă 1 Parcare 1 Garaj Bine întreținut (Bună) Zonă de deal / munte

Detalii apartament

ID anunț: XBJ10004V Copiat! 275305793 Copiat!
Actualizat în: 18 Martie 2026
Suprafață utilă totală: 160.45 mp
Nr. bucătării: 1
Nr. băi: 2
Structură rezistență: Beton
Tip imobil: Bloc de apartamente
Regim înălțime: P+3E+M

Utilități

Destinație
Rezidențial De vacanță
Pereți
Faianță
Ușă intrare
Metal
Uși interior
PVC
Ferestre cu geam termopan
PVC
Bucătărie
Mobilată Utilată
Amenajare străzi
Asfaltate Iluminat stradal
Comision
2%

Puncte de interes

Recreere
restaurant
Pensiune Casa Alba
Restaurant aprox. 158 m
sports-ground
Teren sportiv
Terenuri sport aprox. 243 m
sports-ground
Teren sportiv
Terenuri sport aprox. 498 m
park
Parcul Schiel
Parcuri aprox. 946 m

Detalii despre preț și costuri

Costuri cu achiziția

Fără credit
32.895 RON
Credit ipotecar
34.942 RON
Noua casă
1.262 RON+ taxe notariale

i

Costuri adiționale mai puțin știute la achiziție: taxe notariale, comisioane etc.

Proprietăți similare

Apartament cu 5 camere decomandat, mobilat în Zamora
239.200 €
Județul Prahova, Bușteni
5 camere
135 mp
Ultimele 2 etaje
Apartament cu 4 camere decomandat, mobilat în Sud
229.000 €
Ploiești, Sud
4 camere
100 mp
Etaj 2 / 3
Apartament cu 4 camere decomandat în Ultracentral
234.700 €
Ploiești, Ultracentral
4 camere
96,6 mp
Etaj 2 / 10

Detalii de contact

ARTMARQUE

Alin agent

5.00(3 review-uri)

ARTMARQUE

Abonează-te la newsletter să fii primul care primește cele mai noi recomandări de proprietăți și sfaturi de la experți.

CONTACT

Creează alertă

Salvează căutarea ca să primești pe email ultimele anunțuri publicate

Apartamente cu 4+ camere de vânzare în Bușteni, Județul Prahova