0% comision | Apartament 2 camere | Andrei Muresanu

198.490 € + TVA

Andrei Mureșanu, Cluj-Napoca

Nr. cam.:
2
Sup. utilă:
55,6 mp
Etaj:
1 / 5
An constr.:
2026 (La roșu)
  • • Comision 0%
  • • Locație aproximativă

Descriere apartament

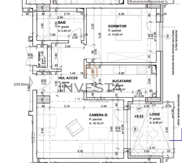
Va prezentam spre vanzare, DIRECT DE LA DEZVOLTATOR, CU 0% COMISION DE LA CUMPARATOR, un apartament nou cu 2 camere, localizat in Cluj-Napoca, cartierul Andrei Muresanu, intr-un ansamblu rezidential premium aflat in curs de constructie. Zona si imprejurimile Imobilul este amplasat intr-o zona premium, linistita si bine conectata, in apropiere de scoli, gradinite, parcuri, centre comerciale si mijloace de transport in comun. In imediata apropiere regasim: - UTCN; - Trattoria D'Autore; - Sigma Shopping Center; - statii de transport in comun. Locatia ofera acces facil catre principalele puncte de interes din oras, fiind ideala atat pentru locuit, cat si pentru investitie. Despre proiect Ansamblul rezidential este in curs de constructie si ofera apartamente spatioase, bine compartimentate, cu finisaje si dotari premium. Proiectul este estimat pentru finalizare in toamna anului 2026. Spatiile comune vor include zone verzi amenajate si loc de joaca pentru copii. Detalii tehnice si dotari proiect - caramida de 25 cm; - izolatie exterioara cu polistiren expandat de 15 cm; - inaltime interioara apartamente: 2.7 m; - incalzire in pardoseala; - centrala termica de imobil; - termostat pentru reglarea temperaturii; - tamplarie REHAU, 7 camere, 3 sticle; - usa antiefractie; - lift; - balustrade balcoane din sticla. Despre apartament Apartamentul detine o suprafata utila de 55.6 mp + logie de 8.85 mp si este situat la etajul 1 din 5. Sunt disponibile apartamente cu aceeasi compartimentare si la etajele 3 si 4. Dispune de orientare Estica, iar compartimentarea este decomandata, fiind organizat astfel: - living; - bucatarie separata; - 1 dormitore; - 1 baie; - 1 hol; - logie de 8.85 mp cu acces din living si din bucatarie. Finisaje si predare Apartamentul se preda la stadiul de semifinisat, cu: - tencuiala mecanizata; - instalatii electrice si sanitare trase la pozitie; - sistem de incalzire in pardoseala; - ferestre termoizolante; - usa metalica de acces. Parcare Sunt disponibile parcari subterane si supraterane, contracost, in functie de disponibilitate. Apartamentul se vinde de pe firma, iar pentru persoanele fizice la pretul afisat se adauga TVA. Pentru mai multe detalii si programarea unei vizionari, nu ezitati sa ne contactati!
Citește mai mult Citește mai puțin
Confort 1 Decomandat Nemobilat 1 Balcon / Terasă / Logie Centrală imobil Încălzire prin pardoseală

Detalii apartament

ID anunț: XFOB100SK Copiat! 275113427 Copiat!
Actualizat în: 27 Februarie 2026
Suprafață construită: 66.72 mp
Nr. bucătării: 1
Nr. băi: 1
Structură rezistență: Cărămidă
Tip imobil: Bloc de apartamente
Regim înălțime: P+5E

Utilități

Destinație
Rezidențial
Ușă intrare
Metal
Izolații termice
Exterior
Ferestre cu geam termopan
PVC
Contorizare
Apometre Contor căldură Contor gaz
Facilități imobil
Lift
Utilități
Curent Apă Canalizare CATV Gaze Telefon
Internet
Cablu
Amenajare străzi
Iluminat stradal Mijloace de transport în comun Asfaltate
Comision
0%

Disponibilitate proprietate:

Imediat

Puncte de interes

Mijloace transport
bus-station
Vitacom Nord
Stații autobuz aprox. 241 m
bus-station
Statia Vitacom, Linia 21
Stații autobuz aprox. 251 m
bus-station
Vitacom
Stații autobuz aprox. 275 m
bus-station
Trifoiului Nord
Stații autobuz aprox. 314 m
Școală
school
Liceul de Informatica Tiberiu Popoviciu
Școli aprox. 746 m
school
Liceul de Informatica "Tiberiu Popoviciu"
Școli aprox. 760 m
university
Facultatea Arte Plastice, Sectia Foto-Video
Universități aprox. 809 m
kindergarten
Grădinita "Poenita"
Gradinițe aprox. 1033 m
Recreere
park
Parc
Parcuri aprox. 99 m
supermarket
Lidl
Supermarket aprox. 217 m
restaurant
Grand Hotel Italia
Restaurant aprox. 232 m
sports-ground
Teren sportiv
Terenuri sport aprox. 865 m

Detalii despre preț și costuri

Prețul pe piață

Preț cerut: 198.490 €

Preț min. zonă 100.000 €
Preț max. zonă 240.000 €

62% dintre proprietățile similare ca zonă și nr. camere au prețul cerut mai mic. mai multe...

Bine de știut: prețul unei proprietăți este influențat și de alte caracteristici, cum ar fi: vechime, localizare, vecinătăți, suprafață, compartimentare, amenajări, dotări, etc. mai puțin...

Costuri cu achiziția

Fără credit
11.147 RON
Credit ipotecar
13.279 RON
Noua casă
1.364 RON+ taxe notariale

i

Costuri adiționale mai puțin știute la achiziție: taxe notariale, comisioane etc.

Proprietăți similare

Apartament cu 2 camere semidecomandat în Andrei Mureșanu
216.840 € + TVA
Cluj-Napoca, Andrei Mureșanu
2 camere
63,1 mp
Etaj 2
Apartament cu 2 camere semidecomandat în Andrei Mureșanu
187.000 €
Cluj-Napoca, Andrei Mureșanu
2 camere
60,5 mp
Parter / 4
Apartament cu 2 camere decomandat, mobilat în Andrei Mureșanu
199.000 €
Cluj-Napoca, Andrei Mureșanu
2 camere
50 mp
Etaj 2

Detalii de contact

INVESTA IMOBILIARE

Tavi Matasaru Junior Broker

INVESTA IMOBILIARE
PRO

Abonează-te la newsletter să fii primul care primește cele mai noi recomandări de proprietăți și sfaturi de la experți.

CONTACT

Creează alertă

Salvează căutarea ca să primești pe email ultimele anunțuri publicate

Apartamente cu 2 camere de vânzare în zona Andrei Mureșanu, Cluj-Napoca