Apartamente Premium de vanzare - 3 camere, Andrei Muresanu

315.460 € + TVA

Andrei Mureșanu, Cluj-Napoca

Nr. cam.:
3
Sup. utilă:
91,9 mp
Etaj:
4 / 7
An constr.:
2025 (În construcție)
  • • Comision 0%
  • • Locație aproximativă

Descriere apartament

IMOFINDER va propune spre vanzare DIRECT DEZVOLTATOR- FARA COMISION - apartamente noi spațioase și bine compartimentate cu 2 și 3 camere, situate intr-un imobil nou in curs de constructie, localizat situat într-o zonă de top a municipiului Cluj-Napoca, cartierul Andrei Muresanu. Apartamentele de 3 camere au suprafete de la 74 mp pana la 92 mp, iar preturile sunt intre 245.500 euro si 306.000 euro fara T.V.A. Înălțime interioară 2.7 m, spațioase și luminoase, apartamentele beneficiază de dotări premium, precum încălzire prin pardoseală, centrala termica - Hoval, termostat pentru reglarea temperaturii , uși antiefractie, tamplarie marca Rehau 7 camere 3 sticle, lift , balustrazi balcoane din sticlă. Zonă de top – acces facil la puncte de interes, transport public, școli, centre comerciale și spații verzi Parcare subterană și supraterană – locuri de parcare disponibile pentru confort maxim Spații verzi și loc de joacă – un mediu relaxant și prietenos. Parcare subterana 20.000 euro + tva Modalitate de plata : 40 % antecontract - 30 % - Rosu - 30 % finalizare Dacă ești în căutarea unui apartament modern, bine poziționat și cu multiple beneficii, acest ansamblu rezidențial exclusivist îți oferă apartamente spațioase, compartimentări inteligente și finisaje de calitate superioară, toate într-o zonă de top a orașului. Prețul nu include TVA
Citește mai mult Citește mai puțin
Confort lux Semidecomandat 1 Balcon / Terasă / Logie Centrală imobil Încălzire prin pardoseală 1 Garaj

Detalii apartament

ID anunț: X7KQ103MG Copiat! 259761374 Copiat!
Actualizat în: 07 Aprilie 2026
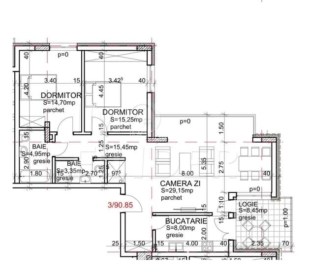
Suprafață construită: 99 mp
Nr. bucătării: 1
Nr. băi: 2
Structură rezistență: Cărămidă
Tip imobil: Bloc de apartamente
Regim înălțime: P+7E

Utilități

Ușă intrare
Metal
Izolații termice
Exterior
Contorizare
Apometre Contor gaz
Facilități imobil
Lift
Utilități
Curent Apă Canalizare CATV Gaze Telefon
Internet
Cablu
Amenajare străzi
Iluminat stradal Mijloace de transport în comun Asfaltate
Comision
0%

Puncte de interes

Mijloace transport
bus-station
Statia Observatorului III, Linia 21, 40
Stații autobuz aprox. 118 m
bus-station
Calea Turzii
Stații autobuz aprox. 133 m
bus-station
Meteor
Stații autobuz aprox. 189 m
bus-station
Observatorului Sud
Stații autobuz aprox. 317 m
Școală
university
Cladirea Observator a Universitatii Tehnice din Cluj-Napoca
Universități aprox. 188 m
university
Facultatea Arte Plastice, Sectia Foto-Video
Universități aprox. 251 m
school
Cladirea C.I.A
Școli aprox. 315 m
kindergarten
Grăd. Poenița
Gradinițe aprox. 965 m
Recreere
park
Parc
Parcuri aprox. 168 m
supermarket
Lidl
Supermarket aprox. 223 m
sports-ground
Teren sportiv
Terenuri sport aprox. 522 m
public-square
Piața "Lucian Blaga" (fosta Păcii)
Piețe publice aprox. 1561 m

Detalii despre preț și costuri

Prețul pe piață

Preț cerut: 315.460 €

Preț min. zonă
Preț max. zonă

60% dintre proprietățile similare ca zonă și nr. camere au prețul cerut mai mic. mai multe...

Bine de știut: prețul unei proprietăți este influențat și de alte caracteristici, cum ar fi: vechime, localizare, vecinătăți, suprafață, compartimentare, amenajări, dotări, etc. mai puțin...

Insight premium disponibil după login

Costuri cu achiziția

Fără credit
Credit ipotecar
Noua casă

i

Costuri adiționale mai puțin știute la achiziție: taxe notariale, comisioane etc.

Insight premium disponibil după login

Proprietăți recomandate

Detalii de contact

IMOFINDER

Darius Radu Cramba General Manager

3.92(4 review-uri)

IMOFINDER
PRO

Abonează-te la newsletter să fii primul care primește cele mai noi recomandări de proprietăți și sfaturi de la experți.

CONTACT

Creează alertă

Salvează căutarea ca să primești pe email ultimele anunțuri publicate

Apartamente cu 3 camere de vânzare în zona Andrei Mureșanu, Cluj-Napoca