2

Ap. 2 camere finisat lângă Baza Sportivă Gheorgheni, 54 mp

167.600 € + TVA

Borhanci, Cluj-Napoca

Nr. cam.:
2
Sup. utilă:
54 mp
Etaj:
4 / 7
An constr.:
2024 (Finalizată)
  • • Locație aproximativă

Descriere apartament

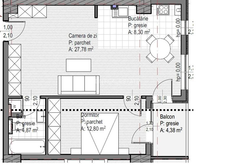
GDN Imobiliare vă propune spre vânzare un apartament cu 2 camere, situat pe str. Soporului în cartierul Gheorgheni și amplasat la etajul 4 al unui imobil construcție nouă, cu 7 niveluri dat în folosință în anul 2024. Imobilul se află în vecinătatea bazei Sportive Gheorgheni. Proprietatea are o suprafață utilă de 53.75 mp, fiind împărțită astfel: - living cu bucătărie deschisă - dormitor - baie - balcon Locuința se va preda viitorului proprietar la următorul stadiu de finisare: vopsea lavabilă albă pe pereți si tavane, șapă autonivelantă si parchet laminat de 10 mm, hidroizolație, gresie si faianța la bucătărie și in baie, obiecte sanitare (inclusiv Geberit încastrat), prize, întrerupătoare si corpuri de iluminat, centrală termică si instalație de încălzire in pardoseala, ușa intrare antiefracție si uși interioare, tâmplărie PVC Salamander triplu strat. Se poate achiziționa și loc de parcare în garajul subteran, la prețul de 15,000 EUR. Situat într-o zonă în plină dezvoltare, ansamblul din care face parte locuința oferă acces facil unor activități de recreere, servicii, magazine, restaurante. Apartamentul se vinde de catre persoana juridica, la pretul de 167,600 EUR + TVA. Achiziția imobilului se poate realiza și prin credit ipotecar. Pentru detalii suplimentare și programări la vizionări, vă stăm cu plăcere la dispoziție! GDN Imobiliare – prietenii și consultanții voștri imobiliari, de la idee până la cheie!
Citește mai mult Citește mai puțin
Confort 1 Semidecomandat Nemobilat 1 Balcon / Terasă / Logie Centrală proprie Încălzire prin pardoseală 1 Garaj Bine întreținut (Bună)

Detalii apartament

ID anunț: XC0D102OH Copiat! 270530778 Copiat!
Actualizat în: 03 Aprilie 2026
Suprafață construită: 62 mp
Nr. bucătării: 1
Nr. băi: 1
Structură rezistență: Cărămidă
Tip imobil: Bloc de apartamente
Regim înălțime: P+7E

Utilități

Destinație
Rezidențial
Pereți
Vopsea lavabilă Faianță
Podele
Parchet Gresie
Ușă intrare
Metal
Izolații termice
Exterior
Ferestre cu geam termopan
PVC
Contorizare
Apometre Contor gaz
Alte spații utile
Terasă
Facilități imobil
Interfon Lift Spații agrement
Utilități
Curent Apă Canalizare Gaze
Amenajare străzi
Asfaltate

Puncte de interes

Mijloace transport
bus-station
Capat linie, Liniile 24, 3
Stații autobuz aprox. 484 m
bus-station
Unirii
Stații autobuz aprox. 502 m
tram-station
Statia Bai Someseni, Linia 8
Stații tramvai aprox. 1893 m
tram-station
Statia Branului, Linia 8
Stații tramvai aprox. 1989 m
Școală
school
Scoala de Soferi Alfa
Școli aprox. 458 m
school
Grup Școlar Agricol Alexandru Borza
Școli aprox. 654 m
kindergarten
Grăd.Dumbrăvioara
Gradinițe aprox. 746 m
university
UBB Stiinte Economice si Gestiunea Afacerilor
Universități aprox. 1331 m
Recreere
sports-ground
Teren sportiv
Terenuri sport aprox. 98 m
park
Loc de joaca pentru copii
Parcuri aprox. 300 m
supermarket
Auchan
Supermarket aprox. 827 m
public-square
Piata Ira
Piețe publice aprox. 1735 m

Detalii despre preț și costuri

Prețul pe piață

Preț cerut: 167.600 €

Preț min. zonă 101.990 €
Preț max. zonă 199.000 €

59% dintre proprietățile similare ca zonă și nr. camere au prețul cerut mai mic. mai multe...

Bine de știut: prețul unei proprietăți este influențat și de alte caracteristici, cum ar fi: vechime, localizare, vecinătăți, suprafață, compartimentare, amenajări, dotări, etc. mai puțin...

Costuri cu achiziția

Fără credit
9.868 RON
Credit ipotecar
11.842 RON
Noua casă
1.174 RON+ taxe notariale

i

Costuri adiționale mai puțin știute la achiziție: taxe notariale, comisioane etc.

Proprietăți recomandate

Detalii de contact

GDN REAL ESTATE

Zsolt Kereszturi Consultant imobiliar

GDN REAL ESTATE

Abonează-te la newsletter să fii primul care primește cele mai noi recomandări de proprietăți și sfaturi de la experți.

CONTACT

Creează alertă

Salvează căutarea ca să primești pe email ultimele anunțuri publicate

Apartamente noi cu 2 camere de vânzare în zona Borhanci, Cluj-Napoca