Apartement 2 camere 55mp bloc NOU Marasti | Bulgaria Cluj Napoca

155.000 €

Bulgaria, Cluj-Napoca

Nr. cam.:
2
Sup. utilă:
55 mp
Etaj:
6 / 6
An constr.:
2025 (Finalizată)
  • • Exclusivitate
  • • Locație exactă

Descriere apartament

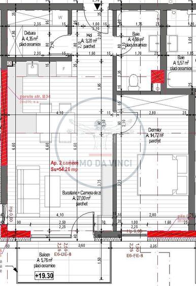
🏡 Apartament 2 camere | 54,26 mp | Bloc nou | Etaj 6 | Balcon | Priveliște superbă, cartier Marasti/Bulgaria Cluj 💰 Preț: 155.000 EUR Îți prezentăm un apartament modern cu 2 camere, situat la etajul 6 al unui imobil nou, ideal atât pentru locuit, cât și pentru investiție. 📐 Suprafață utilă: 54,26 mp 🌅 Balcon: 5,76 mp 🏢 Etaj 6 – priveliște deschisă asupra orașului 🆕 Apartament nou, la stadiu de finisat la alb (ideal pentru personalizare) Compartimentare inteligentă: ✔ Living generos + bucătărie open-space (27 mp) ✔ Dormitor spațios (14,72 mp) ✔ Baie ✔ Hol + debara ✔ Balcon cu acces din living Avantaje: ✅ Spațiu luminos, datorită suprafețelor vitrate mari ✅ Compartimentare eficientă ✅ Bloc nou, lift modern ✅ Ideal pentru amenajare după propriul gust ✅ Potrivit pentru locuință personală sau investiție (închiriere) 📍 Zonă cu acces facil către puncte de interes, magazine, transport și servicii. 💰 Preț parcare 13.500 EUR 📞 Pentru detalii și programarea unei vizionări: /
Citește mai mult Citește mai puțin
Confort 1 Semidecomandat Nemobilat 1 Balcon / Terasă / Logie Curte comună Centrală imobil Încălzire prin pardoseală 1 Parcare

Detalii apartament

ID anunț: XF4K1005S Copiat! 275195015 Copiat!
Actualizat în: 04 Martie 2026
Nr. bucătării: 1
Nr. băi: 1
Tip imobil: Bloc de apartamente
Regim înălțime: S+P+6E

Utilități

Ușă intrare
Metal
Ferestre cu geam termopan
PVC
Contorizare
Apometre Contor căldură
Diverse
Senzor de fum Telecomandă poartă acces auto Telecomandă poartă garaj
Facilități imobil
Interfon Lift Videointerfon
Utilități
Curent Apă Canalizare CATV Gaze Telefon
Internet
Cablu
Servicii imobil
Supraveghere video
Amenajare străzi
Iluminat stradal Mijloace de transport în comun Asfaltate
Comision
standard

Disponibilitate proprietate:

Imediat

Puncte de interes

Mijloace transport
bus-station
Bobalnei Vest
Stații autobuz aprox. 70 m
bus-station
Bobalnei Est
Stații autobuz aprox. 132 m
tram-station
Sinterom Nord
Stații tramvai aprox. 1128 m
tram-station
Statia TERAPIA1 TRV, Linia 100, 102, 23, 26, 48, 50
Stații tramvai aprox. 1145 m
Școală
school
Școala Ion Agârbiceanu
Școli aprox. 412 m
school
Scoala Ion Agarbiceanu
Școli aprox. 412 m
kindergarten
Grăd.Bambi str.1
Gradinițe aprox. 503 m
university
Facultatea de Sociologie si Asistenta Sociala
Universități aprox. 1356 m
Recreere
park
Parc
Parcuri aprox. 222 m
sports-ground
Teren sportiv
Terenuri sport aprox. 383 m
supermarket
Kaufland
Supermarket aprox. 532 m
public-square
Piata 1848
Piețe publice aprox. 998 m

Detalii despre preț și costuri

Prețul pe piață

Preț cerut: 155.000 €

Preț min. zonă 100.000 €
Preț max. zonă 183.000 €

53% dintre proprietățile similare ca zonă și nr. camere au prețul cerut mai mic. mai multe...

Bine de știut: prețul unei proprietăți este influențat și de alte caracteristici, cum ar fi: vechime, localizare, vecinătăți, suprafață, compartimentare, amenajări, dotări, etc. mai puțin...

Costuri cu achiziția

Fără credit
8.224 RON
Credit ipotecar
9.995 RON
Noua casă
930 RON+ taxe notariale

i

Costuri adiționale mai puțin știute la achiziție: taxe notariale, comisioane etc.

Proprietăți similare

Apartament cu 2 camere semidecomandat în Bulgaria
141.500 € + TVA
Cluj-Napoca, Bulgaria
2 camere
43 mp
Etaj 5
Apartament cu 2 camere semidecomandat în Bulgaria
156.100 € + TVA
Cluj-Napoca, Bulgaria
2 camere
62,08 mp
Etaj 4
Apartament cu 2 camere semidecomandat în Bulgaria
141.249 € + TVA
Cluj-Napoca, Bulgaria
2 camere
53 mp
Etaj 9 / 10

Detalii de contact

IMODAVINCI SRL

Dan Cotirla Consilier imobiliar

IMODAVINCI SRL
PRO

Abonează-te la newsletter să fii primul care primește cele mai noi recomandări de proprietăți și sfaturi de la experți.

CONTACT

Creează alertă

Salvează căutarea ca să primești pe email ultimele anunțuri publicate

Apartamente noi cu 2 camere de vânzare în zona Bulgaria, Cluj-Napoca