4

Apartament 3 camere, finisat modern, Buna Ziua

205.000 €

Bună Ziua, Cluj-Napoca

Nr. cam.:
3
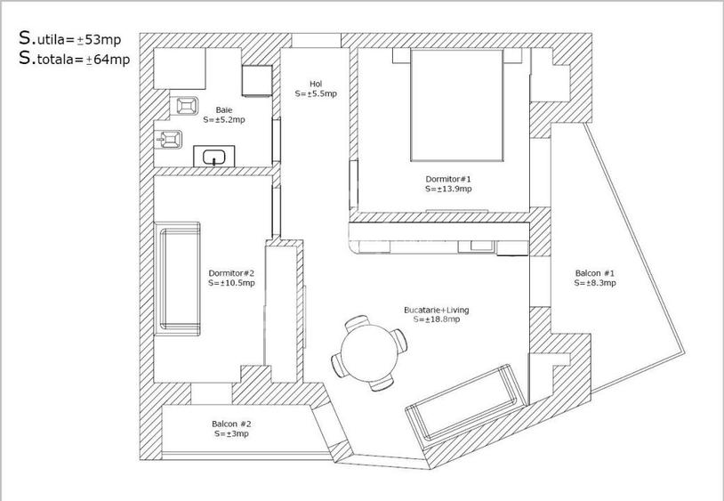
Sup. utilă:
53 mp
Etaj:
7 / 9
An constr.:
2021 (Finalizată)
  • • Locație exactă

Descriere apartament

Smart Imobiliare va ofera spre vanzare un apartament deosebit situat in bloc nou, cartierul Buna-Ziua, pe str. Mihai Romanu. Apartamentul este situat la etajul 7, are 53 mp utili si este compartimentat astfel: 2 dormitoare, living + bucatarie, hol, baie si 2 balcoane. Apartamentul este finisat, mobilat si utilat modern. Dispune de CT proprie, incalzire in pardoseala, mobilier si electrocasnice de calitate. Apartamentul are orientare S-V si este aproape de statie mijloace de transport in comun. Daca se doreste se poate achizitiona un loc de parcare in subteranul imobilului la pretul de 20.000 euro !!!
Citește mai mult Citește mai puțin
Confort 1 Semidecomandat 2 Balcoane / Terase / Logii Centrală proprie Încălzire prin pardoseală

Detalii apartament

ID anunț: X8BO102SO Copiat! 273296683 Copiat!
Actualizat în: 08 Ianuarie 2026
Suprafață construită: 69 mp
Nr. băi: 1
Structură rezistență: Cărămidă
Tip imobil: Bloc de apartamente
Tip tranzacție: De vânzare prin agent
Regim înălțime: P+9E
Modalitate de plată: Cash sau Credit

Utilități

Destinație
Rezidențial
Utilități
Curent Apă Canalizare Gaze
Comision
2%

Certificat energetic:

Clasa energetică: B

Disponibilitate proprietate:

imediat

Puncte de interes

Mijloace transport
bus-station
Hotel Stil Est
Stații autobuz aprox. 186 m
bus-station
Hotel Stil Vest
Stații autobuz aprox. 197 m
bus-station
Statia Hotel Stil, Linia 40
Stații autobuz aprox. 237 m
bus-station
M-Aroma
Stații autobuz aprox. 278 m
Școală
kindergarten
Gradinita Liceului Waldorf
Gradinițe aprox. 1839 m
school
Liceul Waldorf
Școli aprox. 1868 m
kindergarten
Helen
Gradinițe aprox. 1979 m
Recreere
sports-ground
Teren sportiv
Terenuri sport aprox. 227 m
restaurant
Silva
Restaurant aprox. 1099 m
supermarket
Baumax
Supermarket aprox. 1209 m
park
Parc
Parcuri aprox. 1630 m

Istoricul prețurilor

Acces la informații premium după autentificare
Login Gratuit

Detalii despre preț și costuri

Prețul pe piață

Preț cerut: 205.000 €

Preț min. zonă
Preț max. zonă

83% dintre proprietățile similare ca zonă și nr. camere au prețul cerut mai mic. mai multe...

Bine de știut: prețul unei proprietăți este influențat și de alte caracteristici, cum ar fi: vechime, localizare, vecinătăți, suprafață, compartimentare, amenajări, dotări, etc. mai puțin...

Acces la informații premium după autentificare
Login Gratuit

Costuri cu achiziția

Fără credit
Credit ipotecar
Noua casă

i

Costuri adiționale mai puțin știute la achiziție: taxe notariale, comisioane etc.

Acces la informații premium după autentificare
Login Gratuit

Proprietăți similare

Apartament cu 2 camere semidecomandat, mobilat în Bună Ziua
225.000 €
Cluj-Napoca, Bună Ziua
2 camere
61,5 mp
Etaj 8
Apartament cu 2 camere semidecomandat, mobilat în Bună Ziua
220.000 €
Cluj-Napoca, Bună Ziua
2 camere
51 mp
Etaj 5
Apartament cu 3 camere semidecomandat, mobilat în Bună Ziua
194.999 €
Cluj-Napoca, Bună Ziua
3 camere
79 mp
Parter / 3

Detalii de contact

SMART IMOBILIARE

Michnea Cosmin Director Vanzari

SMART IMOBILIARE

Abonează-te la newsletter să fii primul care primește cele mai noi recomandări de proprietăți și sfaturi de la experți.

CONTACT

Creează alertă

Salvează căutarea ca să primești pe email ultimele anunțuri publicate

Apartamente noi cu 3 camere de vânzare în zona Bună Ziua, Cluj-Napoca