7

0% Comision, bloc nou 2025, parcare inclusa, 3 camere, Piata Abator

260.000 € + TVA

Central, Cluj-Napoca

Nr. cam.:
3
Sup. utilă:
60 mp
Etaj:
4 / 5
An constr.:
2025 (Finalizată)
  • • Locație aproximativă

Descriere apartament

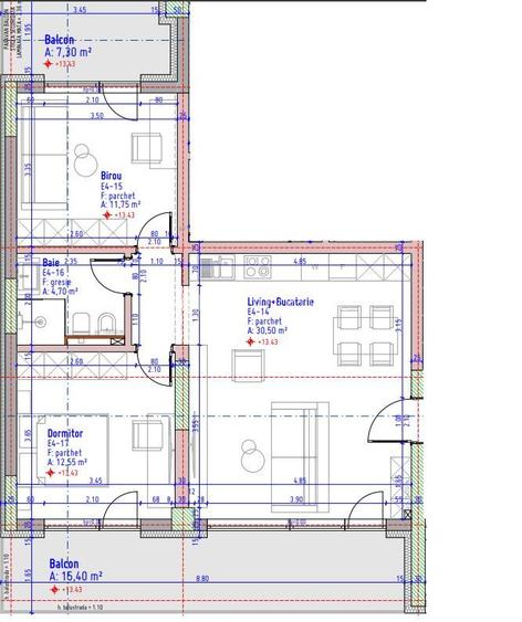
Va propunem spre vanzare un apartament de 3 camere, in zona centrala, zona Pietei Abator. Apartamentul situat la etajul 4 este compus din: Living+Bucatarie 2 Dormitoare Baie 2 terase Se vinde finisat, dar nemobiliat. Blocul este contructie din anul 2025, modern, avand toate avantajele unui bloc nou, pentru un confort si o siguranta sporita. Apartamentul detine cf si se vinde de pe societate. La pretul listat se mai adauga tva-ul de 21%. Este disponbil imediat si se poate achizitiona si cu credit. Finisajele sunt de calitate superioara, in ambianta cu aspectul cladirii. Locul de parcare este la subteran si este inclus in pretul de achizitie al apartamentului. Nu se percepe comision la achizitia acestei proprietati! 0% COMISION Pentru mai multe detalii sau o vizionare, va stam la dispozitie.
Citește mai mult Citește mai puțin
Confort 1 Semidecomandat Nemobilat 2 Balcoane / Terase / Logii 1 Parcare

Detalii apartament

ID anunț: X4I7107CB Copiat! 269438773 Copiat!
Actualizat în: 23 Decembrie 2025
Suprafață construită: 90 mp
Nr. bucătării: 1
Nr. băi: 1
Tip imobil: Bloc de apartamente
Regim înălțime: P+5E

Utilități

Pereți
Faianță
Podele
Parchet
Contorizare
Apometre
Facilități imobil
Interfon Lift
Utilități
Curent Apă Canalizare CATV Gaze Telefon
Internet
Cablu
Amenajare străzi
Iluminat stradal Mijloace de transport în comun Asfaltate
Comision
standard

Disponibilitate proprietate:

Imediat

Puncte de interes

Mijloace transport
bus-station
Libertatea Est
Stații autobuz aprox. 209 m
bus-station
Statia Libertatea, Linia 26
Stații autobuz aprox. 211 m
tram-station
Libertatea Vest
Stații tramvai aprox. 215 m
train-station
Gara Noua / "Gara de scurt parcurs"
Stații tren aprox. 491 m
Școală
kindergarten
Grăd.Căsuța poveștilor1
Gradinițe aprox. 261 m
university
Universitatea Crestina "Dimitrie Cantemir" Facultatea de Drept Cluj Napoca (en)
Universități aprox. 450 m
kindergarten
Grăd.Floare de iris str. 1 corp A+B
Gradinițe aprox. 650 m
school
Liceul Victor Babeș
Școli aprox. 691 m
Recreere
park
Parc
Parcuri aprox. 255 m
sports-ground
Teren sportiv
Terenuri sport aprox. 302 m
supermarket
Oncos
Supermarket aprox. 628 m
public-square
Piata 1848
Piețe publice aprox. 640 m

Detalii despre preț și costuri

Prețul pe piață

Preț cerut: 260.000 €

Preț min. zonă
Preț max. zonă

88% dintre proprietățile similare ca zonă și nr. camere au prețul cerut mai mic. mai multe...

Bine de știut: prețul unei proprietăți este influențat și de alte caracteristici, cum ar fi: vechime, localizare, vecinătăți, suprafață, compartimentare, amenajări, dotări, etc. mai puțin...

Insight premium disponibil după login

Costuri cu achiziția

Fără credit
Credit ipotecar
Noua casă

i

Costuri adiționale mai puțin știute la achiziție: taxe notariale, comisioane etc.

Insight premium disponibil după login

Proprietăți recomandate

Detalii de contact

Habitas Imobiliare

Vlad Dogar Consilier Imobiliar

Habitas Imobiliare
PRO

Abonează-te la newsletter să fii primul care primește cele mai noi recomandări de proprietăți și sfaturi de la experți.

CONTACT

Creează alertă

Salvează căutarea ca să primești pe email ultimele anunțuri publicate

Apartamente noi cu 3 camere de vânzare în zona Central, Cluj-Napoca