1

Apartament în imobil nou | Central | zona Bosch Engineering Center

256.025 € + TVA

Central, Cluj-Napoca

Nr. cam.:
3
Sup. utilă:
73,15 mp
Etaj:
1 / 5
An constr.:
2025 (Finalizată)
  • • Locație aproximativă

Descriere apartament

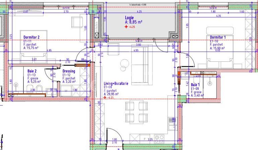
Vă propunem încântați spre vânzare un apartament într-un imobil nou și modern în centrul orașului în imediata vecinătate a Bosch Engineering Center. Apartamentul este amplasat la etajul 1 al unui imobil cu lift, nou construit dispus S+P+5E. Suprafața utilă este de 73.15 mp2 compartimentat astfel: -living cu bucătărie, 2 dormitoare, 2 bai, 1 dressing și 1 logie de 8,8 mp. Imobilului beneficiază de centrală termică pe imobil cu încălzire în pardoseală, geamuri tripan rehau, termo-izolație de vată de 15 cm exterior ușa metalică la intrare iar predarea apartamentului se face la stadiul de semi-finisat cu instalații trase pe poziții inclusiv pentru aer condiționat. Se poate achiziționa parcare subterană la la prețul de 15000Euro+TVA iar parcarea v-a avea lift auto din curtea imobilului. Proprietatea deține certificatul de performanță energetică. Acesta va fi predat cumpărătorilor la data semnării contractului de vânzare. Prețul afișat este + TVA. Predarea se face pe bază de proces verbal iar Cf-urile sunt așteptate să iasă în August-Iunie 2025. *Informațiile din anunț au fost furnizate în prealabil de către proprietar. Agenția nu își asumă responsabilitatea pentru eventualele modificări în ceea ce privește prețul sau informațiile prezentate.
Citește mai mult Citește mai puțin
Confort lux Semidecomandat Nemobilat 2 Balcoane / Terase / Logii Centrală imobil Încălzire prin pardoseală 1 Garaj

Detalii apartament

ID anunț: XBA0106RA Copiat! 275250935 Copiat!
Actualizat în: 11 Martie 2026
Suprafață construită: 96.58 mp
Nr. bucătării: 1
Nr. băi: 2
Structură rezistență: Cărămidă
Tip imobil: Bloc de apartamente
Regim înălțime: D+P+5E

Utilități

Destinație
Rezidențial
Ușă intrare
Metal
Izolații termice
Exterior
Ferestre cu geam termopan
PVC
Contorizare
Apometre Contor căldură Contor gaz
Diverse
Telecomandă poartă acces auto Telecomandă poartă garaj
Facilități imobil
Interfon Lift
Utilități
Curent Apă Canalizare CATV Gaze Telefon
Internet
Cablu
Amenajare străzi
Iluminat stradal Mijloace de transport în comun Asfaltate
Comision
standard

Disponibilitate proprietate:

Imediat

Puncte de interes

Mijloace transport
bus-station
Statia Somesul, liniile 8,24,30,47, 4,6,7,25, 46B
Stații autobuz aprox. 263 m
bus-station
Statia Somesul, Liniile: 8,24,30,46B,47, 4,6,7
Stații autobuz aprox. 285 m
tram-station
Statia G. Baritiu 1, Linia 102
Stații tramvai aprox. 1055 m
train-station
Gara Noua / "Gara de scurt parcurs"
Stații tren aprox. 1435 m
Școală
school
Liceul Teologic Unitarian Janos Zsigmond
Școli aprox. 18 m
kindergarten
Grăd.Mămăruța
Gradinițe aprox. 23 m
school
Liceul Teoretic Mihai Eminescu
Școli aprox. 144 m
university
Universitatea Spiru Haret
Universități aprox. 286 m
Recreere
sports-ground
Teren sportiv
Terenuri sport aprox. 270 m
park
Parc
Parcuri aprox. 432 m
supermarket
Carrefour Market
Supermarket aprox. 579 m
public-square
Piata Mihai Viteazul
Piețe publice aprox. 831 m

Detalii despre preț și costuri

Prețul pe piață

Preț cerut: 256.025 €

Preț min. zonă 180.000 €
Preț max. zonă 400.000 €

55% dintre proprietățile similare ca zonă și nr. camere au prețul cerut mai mare. mai multe...

Bine de știut: prețul unei proprietăți este influențat și de alte caracteristici, cum ar fi: vechime, localizare, vecinătăți, suprafață, compartimentare, amenajări, dotări, etc. mai puțin...

Costuri cu achiziția

Fără credit
13.542 RON
Credit ipotecar
15.970 RON
Noua casă
1.719 RON+ taxe notariale

i

Costuri adiționale mai puțin știute la achiziție: taxe notariale, comisioane etc.

Proprietăți similare

Apartament cu 3 camere decomandat, mobilat în Central
269.000 €
Cluj-Napoca, Central
3 camere
90 mp
Parter / 1
Apartament cu 2 camere decomandat în Central
244.900 €
Cluj-Napoca, Central
2 camere
80 mp
Etaj 1
Apartament cu 3 camere decomandat în Central
253.000 €
Cluj-Napoca, Central
3 camere
68 mp
Etaj 3 / 4

Detalii de contact

Comitat Imobiliare

Radu Sucila Manager

Comitat Imobiliare
PRO

Abonează-te la newsletter să fii primul care primește cele mai noi recomandări de proprietăți și sfaturi de la experți.

CONTACT

Creează alertă

Salvează căutarea ca să primești pe email ultimele anunțuri publicate

Apartamente noi cu 3 camere de vânzare în zona Central, Cluj-Napoca