Apartament 3 camere 73mp semifinisat Piata Abator

250.000 € + TVA

Central, Cluj-Napoca

Nr. cam.:
3
Sup. utilă:
73 mp
Etaj:
1 / 6
An constr.:
2024 (Finalizată)
  • • Locație aproximativă

Descriere apartament

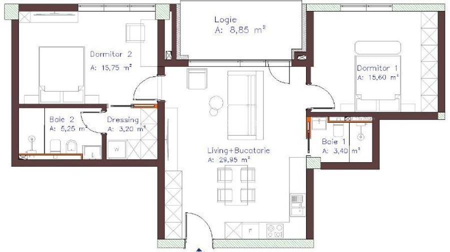
Descoperă un apartament modern, spațios și excelent compartimentat, ideal pentru o familie sau pentru cei care își doresc confort și funcționalitate într-o locuință premium. Proprietatea oferă suprafețe generoase, lumină naturală și o organizare inteligentă a spațiilor. ✨ Caracteristici principale - Living + Bucătărie open-space – 29,95 m² Un spațiu amplu și luminos, perfect pentru relaxare și socializare. - Dormitor 1 – 15,60 m² Ideal ca dormitor matrimonial. - Dormitor 2 – 15,75 m² Potrivit pentru copil, birou sau cameră de oaspeți. - Logie – 8,85 m² Spațiu exterior generos, perfect pentru relaxare. - Baie principală – 6,25 m² Spațioasă și ușor de amenajat modern. - Baie secundară – 3,40 m² Practică și utilă pentru familie sau oaspeți. - Dressing – 3,20 m² Ideal pentru depozitare eficientă. 🚗 Parcare la subsol 20.000 euro+TVA Apartamentul beneficiază de loc de parcare la subsol, un avantaj important pentru confort și siguranță, mai ales în zonele aglomerate. 🏢 Avantaje suplimentare - Compartimentare practică și echilibrată - Spații mari, ușor de mobilat - Ideal pentru familii sau investiție - Posibilitate de personalizare
Citește mai mult Citește mai puțin
1 Balcon / Terasă / Logie Încălzire prin pardoseală

Detalii apartament

ID anunț: XCEO100QD Copiat! 275306310 Copiat!
Actualizat în: 18 Martie 2026
Nr. bucătării: 1
Nr. băi: 2
Tip imobil: Bloc de apartamente
Regim înălțime: P+6E

Utilități

Ușă intrare
Metal
Izolații termice
Exterior
Utilități
Curent Apă Canalizare CATV Gaze Telefon
Internet
Cablu
Amenajare străzi
Iluminat stradal Mijloace de transport în comun Asfaltate
Comision
standard

Disponibilitate proprietate:

data_properties.property_availability.Imediat

Puncte de interes

Mijloace transport
bus-station
Statia Traian, Liniile: 9, 3, 4, 22, 26, 27
Stații autobuz aprox. 108 m
bus-station
Piata Abator
Stații autobuz aprox. 194 m
train-station
Gara Noua / "Gara de scurt parcurs"
Stații tren aprox. 511 m
tram-station
Piata Garii
Stații tramvai aprox. 515 m
Școală
kindergarten
Grăd.Bambi str.4
Gradinițe aprox. 309 m
university
Universitatea Crestina "Dimitrie Cantemir" Facultatea de Drept Cluj Napoca (en)
Universități aprox. 315 m
kindergarten
Grădinita cu parfum de tei corp A
Gradinițe aprox. 365 m
school
Grup Școlar de Protecția Mediului / Școala Horea
Școli aprox. 408 m
Recreere
park
Parcul Feroviarilor
Parcuri aprox. 281 m
sports-ground
Teren sportiv
Terenuri sport aprox. 397 m
supermarket
Oncos
Supermarket aprox. 447 m
public-square
Piata Garii-RailwayStation Square (en)
Piețe publice aprox. 574 m

Detalii despre preț și costuri

Prețul pe piață

Preț cerut: 250.000 €

Preț min. zonă 180.000 €
Preț max. zonă 400.000 €

60% dintre proprietățile similare ca zonă și nr. camere au prețul cerut mai mare. mai multe...

Bine de știut: prețul unei proprietăți este influențat și de alte caracteristici, cum ar fi: vechime, localizare, vecinătăți, suprafață, compartimentare, amenajări, dotări, etc. mai puțin...

Costuri cu achiziția

Fără credit
13.292 RON
Credit ipotecar
15.689 RON
Noua casă
1.682 RON+ taxe notariale

i

Costuri adiționale mai puțin știute la achiziție: taxe notariale, comisioane etc.

Proprietăți similare

Apartament cu 2 camere decomandat în Central
229.900 €
Cluj-Napoca, Central
2 camere
63 mp
Etaj 3 / 4
Apartament cu 3 camere semidecomandat, mobilat în Central
270.000 €
Cluj-Napoca, Central
3 camere
90 mp
Parter
Apartament cu 3 camere semidecomandat, mobilat în Central
260.000 €
Cluj-Napoca, Central
3 camere
75 mp
Etaj 1 / 4

Detalii de contact

BLU Imobiliare

Paul Soit Real Estate Advisor

BLU Imobiliare
PRO

Abonează-te la newsletter să fii primul care primește cele mai noi recomandări de proprietăți și sfaturi de la experți.

CONTACT

Creează alertă

Salvează căutarea ca să primești pe email ultimele anunțuri publicate

Apartamente noi cu 3 camere de vânzare în zona Central, Cluj-Napoca