8

Apartament de 154 mp cu tavan inalt, zona Dorobantilor-Central

400.000 €

Central, Cluj-Napoca

Nr. cam.:
4
Sup. utilă:
154 mp
Etaj:
2 / 2
An constr.:
1939 (Finalizată)
  • • Locație aproximativă

Descriere apartament

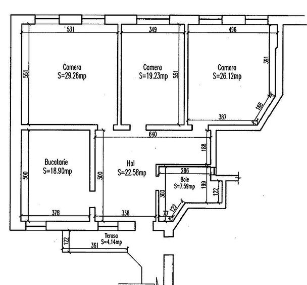
Va oferim spre vanzare un apartament deosebit in zona semientrala a orasului, pe Calea Dorobantilor, ideal pentru cabinet, activitati de birouri sau chiar locuinta. Suprafata generoasa si tavanul inalt ofera volum apartamentului si senzatia de mult mai mult spatiu. Cladirea are un aspect impunator si la parterul imobilului se gasesc magazine. Compartimentarea eficienta ofera trei camere generoase ca spatiu care pot sa fie birouri sau sali de conferinta, iar bucataria a fost transformata intr-un al patrulea birou, dar poate ramane si pe post de bucatarie. Baia apartamentului este destul de mare pentru a se organiza doua grupuri sanitare, unul pentru personal, iar celalalt pentru clienti. Deasupra apartamentului exista o mansarda iar acoperisul a fost refacut recent cu tigla ceramica. Ocupabil imediat. Pretul este negociabil.
Citește mai mult Citește mai puțin
Confort 1 Decomandat Calorifere Centrală proprie Bine întreținut (Bună)

Detalii apartament

ID anunț: X4I7106NQ Copiat! 252815388 Copiat!
Actualizat în: 20 Aprilie 2026
Suprafață construită: 180 mp
Nr. bucătării: 2
Nr. băi: 2
Structură rezistență: Cărămidă
Tip imobil: Bloc de apartamente
Tip tranzacție: De vânzare prin agent
Regim înălțime: P+2E+M
Modalitate de plată: Cash sau Credit

Utilități

Destinație
Birouri Rezidențial
Pereți
Faianță Vopsea lavabilă
Podele
Gresie Parchet
Ușă intrare
Metal
Uși interior
Lemn
Ferestre cu geam termopan
Lemn
Contorizare
Apometre Contor gaz
Utilități
Curent Apă Canalizare CATV Gaze Telefon
Internet
Cablu
Amenajare străzi
Iluminat stradal Mijloace de transport în comun Asfaltate
Comision
standard

Disponibilitate proprietate:

Imediat

Puncte de interes

Mijloace transport
bus-station
Campus Universitar Vest
Stații autobuz aprox. 263 m
bus-station
Stația Campus Universitar, Liniile 24, 34, 48, 25
Stații autobuz aprox. 268 m
bus-station
Campus Universitar Est
Stații autobuz aprox. 278 m
bus-station
Statia Teodor Mihali, Liniile 24,34,48, 25
Stații autobuz aprox. 379 m
Școală
school
Grupul Scolar de Transporturi / Colegiul Tehnic Raluca Ripan
Școli aprox. 74 m
school
Colegiul Tehnic de Transporturi Transilvania
Școli aprox. 79 m
university
Universitatea Crestina "Dimitrie Cantemir"
Universități aprox. 210 m
kindergarten
Grăd.Degețicastr.1
Gradinițe aprox. 316 m
Recreere
sports-ground
Teren sportiv
Terenuri sport aprox. 47 m
park
Parc
Parcuri aprox. 110 m
supermarket
Profi Marasti
Supermarket aprox. 396 m
public-square
Piata 1848
Piețe publice aprox. 1653 m

Istoricul prețurilor

Acces la informații premium după autentificare
Login Gratuit

Detalii despre preț și costuri

Prețul pe piață

Preț cerut: 400.000 €

Preț min. zonă
Preț max. zonă

92% dintre proprietățile similare ca zonă și nr. camere au prețul cerut mai mare. mai multe...

Bine de știut: prețul unei proprietăți este influențat și de alte caracteristici, cum ar fi: vechime, localizare, vecinătăți, suprafață, compartimentare, amenajări, dotări, etc. mai puțin...

Acces la informații premium după autentificare
Login Gratuit

Costuri cu achiziția

Fără credit
Credit ipotecar
Noua casă

i

Costuri adiționale mai puțin știute la achiziție: taxe notariale, comisioane etc.

Acces la informații premium după autentificare
Login Gratuit

Proprietăți similare

Apartament cu 4 camere semidecomandat, mobilat în Central
387.200 €
Cluj-Napoca, Central
4 camere
117 mp
Etaj 3 / 6
Apartament cu 2 camere semidecomandat, mobilat în Central
371.000 €
Cluj-Napoca, Central
2 camere
57 mp
Etaj 3
Apartament cu 3 camere decomandat, mobilat în Central
435.000 €
Cluj-Napoca, Central
3 camere
110 mp
Parter

Detalii de contact

Abonează-te la newsletter să fii primul care primește cele mai noi recomandări de proprietăți și sfaturi de la experți.

CONTACT

Creează alertă

Salvează căutarea ca să primești pe email ultimele anunțuri publicate

Apartamente cu 4+ camere de vânzare în zona Central, Cluj-Napoca