87 mp/Bloc nou/Zona Centrală

339.000 €

Central, Cluj-Napoca

Nr. cam.:
3
Sup. utilă:
86 mp
Etaj:
1 / 8
An constr.:
2016 (Finalizată)
  • • Locație aproximativă

Descriere apartament

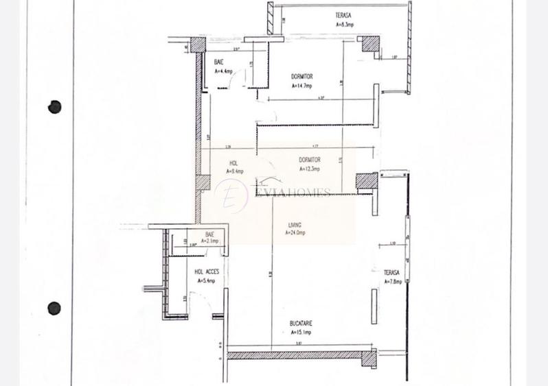
Apartament modern cu 3 camere, localizat in Cluj-Napoca, cartierul Marasti, zona Calea Dorobantilor. Apartamentul este amplasat intr-o zona centrala, bine conectata, aproape de scoli, gradinite, facultati, magazine si mijloace de transport in comun. Deține o suprafață utila de 86 mp utili + 16 mp balcoane. Dispune de orientare Estica, situat la etajul 1 din 8, intr-un bloc construit in 2016, iar compartimentarea este decomandat, fiind organizat astfel: - living open space impreuna cu bucataria; - 2 dormitoare; - 2 bai; - 1 hol de acces; - 2 balcoane; Dotari: - Incalzire prin centrala pe bloc cu reglarea temperaturii prin automatizare proprie - Racire prin 2 aparate de aer conditionat Daikin - Frigider, masina de spalat vase, masina de spalat rufe, cuptor, plita electrica - Interfon cu video Optional se pot cumpara si 2 parcari subterane, fiecare cu cate 20 000 euro. Se vinde complet mobilat si utilat. Contactează-ne pentru detalii!
Citește mai mult Citește mai puțin
Confort 1 Decomandat Mobilat 2 Balcoane / Terase / Logii Aer condiționat Calorifere Centrală proprie

Detalii apartament

ID anunț: XFU8100A7 Copiat! 275324481 Copiat!
Actualizat în: 20 Martie 2026
Suprafață construită: 105 mp
Nr. bucătării: 1
Nr. băi: 2
Structură rezistență: Cărămidă
Tip imobil: Bloc de apartamente
Regim înălțime: P+8E

Utilități

Destinație
Rezidențial
Pereți
Faianță Vopsea lavabilă
Podele
Gresie Parchet
Ușă intrare
Metal
Uși interior
Lemn
Izolații termice
Exterior
Ferestre cu geam termopan
PVC
Contorizare
Apometre Contor gaz
Bucătărie
Mobilată Utilată
Electrocasnice
Frigider Hotă Mașină de spălat Mașină spălat vase TV
Facilități imobil
Lift Videointerfon
Utilități
Curent Apă Canalizare CATV Gaze
Internet
Cablu Wireless
Amenajare străzi
Iluminat stradal Mijloace de transport în comun Asfaltate
Comision
standard

Disponibilitate proprietate:

Imediat

Puncte de interes

Mijloace transport
bus-station
Biblioteca Judeteana
Stații autobuz aprox. 127 m
bus-station
Statia Maresal Constantin Prezan, Liniile: 8,24,30,46B,47, 4,6,7,25,34, 48
Stații autobuz aprox. 309 m
tram-station
Libertatea Vest
Stații tramvai aprox. 1905 m
tram-station
Libertatea 2 TRV, Linia 100, 102, 26
Stații tramvai aprox. 1918 m
Școală
school
Colegiul Tehnic de Transporturi Transilvania
Școli aprox. 274 m
school
Grupul Scolar de Transporturi / Colegiul Tehnic Raluca Ripan
Școli aprox. 325 m
kindergarten
Grăd.Degețicastr.1
Gradinițe aprox. 354 m
university
Facultatea de Psihologie si Stiinte ale Educatiei
Universități aprox. 446 m
Recreere
park
Parc
Parcuri aprox. 113 m
sports-ground
Teren sportiv
Terenuri sport aprox. 132 m
supermarket
Carrefour
Supermarket aprox. 210 m
public-square
Piata 1848
Piețe publice aprox. 1349 m

Detalii despre preț și costuri

Prețul pe piață

Preț cerut: 339.000 €

Preț min. zonă 180.000 €
Preț max. zonă 400.000 €

71% dintre proprietățile similare ca zonă și nr. camere au prețul cerut mai mic. mai multe...

Bine de știut: prețul unei proprietăți este influențat și de alte caracteristici, cum ar fi: vechime, localizare, vecinătăți, suprafață, compartimentare, amenajări, dotări, etc. mai puțin...

Costuri cu achiziția

Fără credit
14.538 RON
Credit ipotecar
17.089 RON
Noua casă
1.867 RON+ taxe notariale

i

Costuri adiționale mai puțin știute la achiziție: taxe notariale, comisioane etc.

Proprietăți similare

Apartament cu 3 camere semidecomandat, mobilat în Central
329.000 €
Cluj-Napoca, Central
3 camere
118 mp
Parter
Apartament cu 2 camere decomandat, mobilat în Central
320.000 €
Cluj-Napoca, Central
2 camere
43 mp
Parter / 3
Apartament cu 3 camere decomandat, mobilat în Central
310.000 €
Cluj-Napoca, Central
3 camere
74,47 mp
Etaj 1 / 3

Detalii de contact

EviaHomes

Office EviaHomes Manager

EviaHomes
PRO

Abonează-te la newsletter să fii primul care primește cele mai noi recomandări de proprietăți și sfaturi de la experți.

CONTACT

Creează alertă

Salvează căutarea ca să primești pe email ultimele anunțuri publicate

Apartamente cu 3 camere de vânzare în zona Central, Cluj-Napoca