27

0% Comision, Apartament 3 camere, 83mp, Republicii, monument istoric

380.000 €

Central, Cluj-Napoca

Nr. cam.:
3
Sup. utilă:
83 mp
Etaj:
1 / 1
An constr.:
1935 (Finalizată)
  • • Comision 0%
  • • Locație aproximativă

Descriere apartament

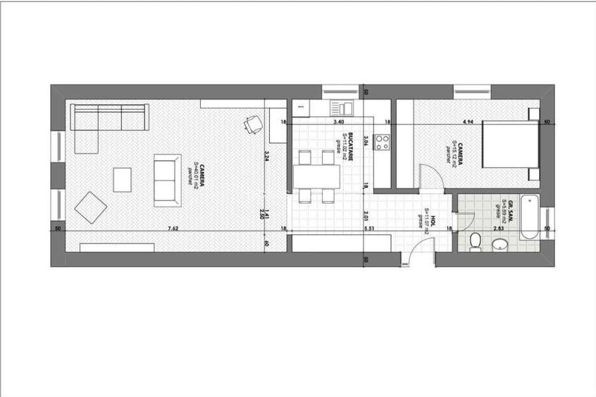
0% Comision de la Cumparator! Va propun spre vanzare un apartament cu 3 camere, 83 mp utili, aproape de mijloacele de transport public, intr-un imobil monument istoric, inceput de strada Republicii, zona Casa de Cultura a Studentilor. Apartamentul este compartimentat astfel: 1 living cu bucatarie, 2 dormitoare, 1 baie cu geam. Este finisat cu: parchet stratificat in dormitoare, living, bucatarie, gresie si faianta in baie, geamuri termopan la baie, geamuri duble din lemn in partea de living, centrala termica, calorifere, usa din lemn la intrare. Imobilul este pozitionat in proximitatea bulevardului Eroilor, P-ta Unirii, Gradina Botanica, Casa de Cultura a Studentilor dar aproape si de parcul central, P-ta Muzeului. Apartamentul este ideal pentru o familie dormica sa locuiasca in centrul orasului dar ideal si pentru o investitie fiind pretabil pentru cabinet de avocatura, birou notarial etc. Se vinde mobilat si utilat cu tot ce se vede in poze. *Se achizitioneze apartamentul impreuna cu o boxa de la subsolul cladirii de 20mp, la un pretul suplimentar de 30.000 EURO.* Se accepta si credite imobiliare.
Citește mai mult Citește mai puțin
Confort 1 Semidecomandat Mobilat Mobilat Lux Curte comună Calorifere Centrală proprie

Detalii apartament

ID anunț: X4I710374 Copiat! 47108141 Copiat!
Actualizat în: 04 Martie 2026
Suprafață construită: 93 mp
Nr. bucătării: 1
Nr. băi: 1
Structură rezistență: Cărămidă
Tip imobil: Bloc de apartamente
Regim înălțime: P+1E

Utilități

Destinație
Rezidențial
Pereți
Vopsea lavabilă
Podele
Parchet
Ușă intrare
Lemn
Uși interior
Lemn
Ferestre cu geam termopan
Lemn
Contorizare
Apometre Contor gaz
Bucătărie
Mobilată
Electrocasnice
Aragaz Frigider Mașină de spălat Mașină spălat vase TV
Diverse
Șemineu Senzor de fum Telecomandă poartă acces auto
Facilități imobil
Interfon
Utilități
Curent Apă Canalizare CATV Gaze Telefon
Internet
Cablu
Servicii imobil
Supraveghere video
Amenajare străzi
Iluminat stradal Mijloace de transport în comun Asfaltate
Comision
0%

Disponibilitate proprietate:

Imediat

Puncte de interes

Mijloace transport
bus-station
Opera
Stații autobuz aprox. 158 m
bus-station
Statia Opera, Liniile: 21,32,32B,33,35,46,46B,50, 3, 40
Stații autobuz aprox. 163 m
tram-station
Statia G. Baritiu 1, Linia 102
Stații tramvai aprox. 711 m
train-station
Gara Noua / "Gara de scurt parcurs"
Stații tren aprox. 1768 m
Școală
school
Liceul Teoretic Apaczai Csere Janos
Școli aprox. 84 m
school
Liceul Teoretic Apaczai Csere Janos
Școli aprox. 85 m
kindergarten
Grăd.Albă ca Zăpada str.1 corp C
Gradinițe aprox. 149 m
university
Academia de Muzică "Gheorghe Dima"
Universități aprox. 170 m
Recreere
sports-ground
Teren sportiv
Terenuri sport aprox. 80 m
park
Parc
Parcuri aprox. 182 m
supermarket
Minimarket
Supermarket aprox. 255 m
public-square
Piata Mihai Viteazul
Piețe publice aprox. 708 m

Detalii despre preț și costuri

Prețul pe piață

Preț cerut: 380.000 €

Preț min. zonă 180.000 €
Preț max. zonă 400.000 €

94% dintre proprietățile similare ca zonă și nr. camere au prețul cerut mai mic. mai multe...

Bine de știut: prețul unei proprietăți este influențat și de alte caracteristici, cum ar fi: vechime, localizare, vecinătăți, suprafață, compartimentare, amenajări, dotări, etc. mai puțin...

Costuri cu achiziția

Fără credit
15.943 RON
Credit ipotecar
18.668 RON
Noua casă
2.076 RON+ taxe notariale

i

Costuri adiționale mai puțin știute la achiziție: taxe notariale, comisioane etc.

Proprietăți recomandate

Detalii de contact

Abonează-te la newsletter să fii primul care primește cele mai noi recomandări de proprietăți și sfaturi de la experți.

CONTACT

Creează alertă

Salvează căutarea ca să primești pe email ultimele anunțuri publicate

Apartamente cu 3 camere de vânzare în zona Central, Cluj-Napoca