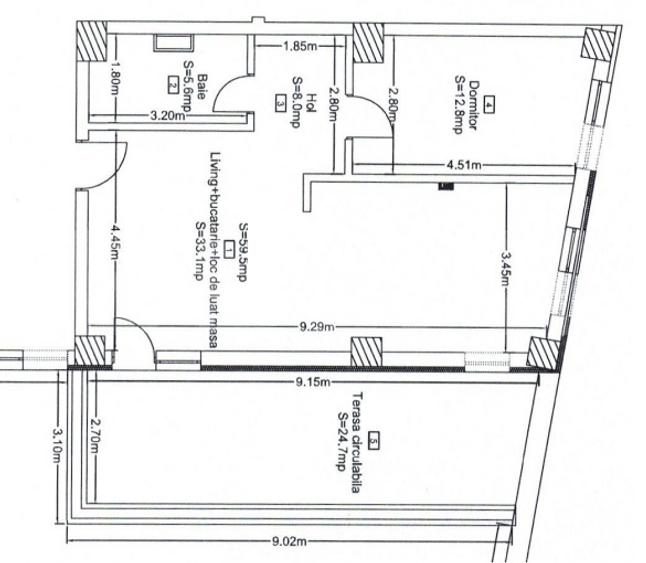
Apartament 2 camere, 59.5mp, bloc nou, zona Corneliu Coposu

121.975 € + TVA

Dâmbul Rotund, Cluj-Napoca

Nr. cam.:
2
Sup. utilă:
59,5 mp
Etaj:
3 / 6
An constr.:
2023 (Finalizată)
  • • Locație aproximativă

Descriere apartament

Blitz ofera spre vanzare un apartament de 2 camere in cartierul Dambu Rotund. In imediata apropiere aveti acces la multiple facilitati precum supermarket, statie de autobuz, sala de sport. Apartamentul are o compartimentare moderna, fiind compus din living cu bucatarie open space, dormitor, baie si o terasa generoasa de aprox. 25mp. Acesta se afla la etajul 3 unui bloc nou, finalizat in 2023, retras de la strada principala. Apartamentul se preda mobilat si utilat. Optional, se poate achizitiona si un loc de parcare subterna (15000 euro TVA inclus). La pretul afisat al apartamentului se adauga TVA. Apartamentul este ideal atat pentru investitie, cat si pentru locuinta proprie. Va asteptam la vizionare! Cod oferta / ID BLITZ: P165643
Citește mai mult Citește mai puțin
Semidecomandat Nemobilat Calorifere Centrală proprie

Detalii apartament

ID anunț: XFTI10D62 Copiat! 275158710 Copiat!
Actualizat în: 02 Martie 2026
Nr. bucătării: 1
Nr. băi: 1
Structură rezistență: Beton
Tip imobil: Bloc de apartamente
Regim înălțime: D+P+6E

Utilități

Destinație
Rezidențial
Pereți
Vopsea lavabilă Faianță
Podele
Parchet Gresie
Ușă intrare
Metal
Izolații termice
Bloc izolat termic
Ferestre cu geam termopan
PVC
Utilități
Curent Apă Canalizare Gaze
Comision
%

Disponibilitate proprietate:

imediat

Puncte de interes

Mijloace transport
bus-station
Statia TETAROM , Linia 37
Stații autobuz aprox. 369 m
bus-station
Bariera CFR Nord
Stații autobuz aprox. 624 m
tram-station
Statia Sala Sporturilor 2TRV, Linia 102
Stații tramvai aprox. 1620 m
tram-station
Statia Sala Sporturilor 1TRV, 102
Stații tramvai aprox. 1671 m
Școală
kindergarten
Grăd.Mica Sirenă2
Gradinițe aprox. 727 m
kindergarten
Gradinita Neghinita
Gradinițe aprox. 831 m
school
Scoala Generala nr.15
Școli aprox. 945 m
university
Institutul de cercetari in chimie Raluca Ripan
Universități aprox. 1163 m
Recreere
park
Muzeul Etnografic Cluj (en)
Parcuri aprox. 155 m
supermarket
Lidl
Supermarket aprox. 676 m
restaurant
Ilinca
Restaurant aprox. 724 m
sports-ground
Fabrica de Sport
Terenuri sport aprox. 737 m

Detalii despre preț și costuri

Prețul pe piață

Preț cerut: 121.975 €

Preț min. zonă 100.000 €
Preț max. zonă 183.000 €

93% dintre proprietățile similare ca zonă și nr. camere au prețul cerut mai mare. mai multe...

Bine de știut: prețul unei proprietăți este influențat și de alte caracteristici, cum ar fi: vechime, localizare, vecinătăți, suprafață, compartimentare, amenajări, dotări, etc. mai puțin...

Costuri cu achiziția

Fără credit
7.969 RON
Credit ipotecar
9.708 RON
Noua casă
892 RON+ taxe notariale

i

Costuri adiționale mai puțin știute la achiziție: taxe notariale, comisioane etc.

Proprietăți similare

Apartament cu 2 camere în Dâmbul Rotund
130.900 € + TVA
Cluj-Napoca, Dâmbul Rotund
2 camere
59,5 mp
Etaj 4
Apartament cu 2 camere semidecomandat în Dâmbul Rotund
125.000 €
Cluj-Napoca, Dâmbul Rotund
2 camere
44,2 mp
Etaj 4 / 6
Apartament cu 2 camere decomandat, mobilat în Dâmbul Rotund
130.000 €
Cluj-Napoca, Dâmbul Rotund
2 camere
45 mp
Parter

Detalii de contact

BLITZ

BLITZ ROMANIA

4.69(103 review-uri)

BLITZ
PRO

Abonează-te la newsletter să fii primul care primește cele mai noi recomandări de proprietăți și sfaturi de la experți.

CONTACT

Creează alertă

Salvează căutarea ca să primești pe email ultimele anunțuri publicate

Apartamente noi cu 2 camere de vânzare în zona Dâmbul Rotund, Cluj-Napoca