Blitz ofera spre vanzare un apartament de 2 camere in cartierul Dambu Rotund. In imediata apropiere aveti acces la multiple facilitati precum supermarket, statie de autobuz, sala de sport.
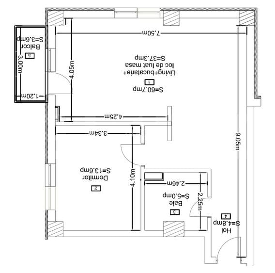
Apartamentul are o compartimentare moderna, fiind compus din living cu bucatarie open space, dormitor, baie plus un balcon. Blocul a fost finalizat in 2023, retras de la strada principala. Apartamentul se preda la stadiul de finisat. Dispune de centrala termica proprie, incalzire prin calorifere, geamuri termopan triple.
Optional, se poate achizitiona si un loc de parcare subteran (15000 euro TVA inclus). La pretul afisat al apartamentului se adauga TVA.
Apartamentul este ideal atat pentru investitie, cat si pentru locuinta proprie. Va asteptam la vizionare!
Cod ofertă / ID BLITZ: P168658
64%dintre proprietățile similare ca zonă și nr. camere au prețul cerutmai mare.
mai multe...
Bine de știut: prețul unei proprietăți este influențat și de alte caracteristici, cum ar fi: vechime, localizare, vecinătăți, suprafață, compartimentare, amenajări, dotări, etc.
mai puțin...
Sediul central - Timișoara
Bulevardul Victor Babeș nr. 2, 300230, Timișoara, România
Tel: +40.374.40.44.98 / Fax: +40.256.401.179
Email: suport@imobiliare.ro
Luni - Vineri 08:00 - 20:00
Punct de lucru - București: Iride Business Park, Bld. Dimitrie
Pompeiu 9-9A, Clădirea B2B,
020335, Sector 2, București, România
CONTACT
Sediul central - Timișoara
Bulevardul Victor Babeș nr. 2, 300230, Timișoara, România
Tel: +40.374.40.44.98 / Fax: +40.256.401.179
Email: suport@imobiliare.ro
Luni - Vineri 08:00 - 20:00
Punct de lucru - București: Iride Business Park, Bld. Dimitrie
Pompeiu 9-9A, Clădirea B2B,
020335, Sector 2, București, România
Sună acum și cere detalii sau programează o vizionare.
Cere detalii prin email
*
*
*
*
Stații autobuz
Stații tramvai
Gradinițe
Școli
Universități
Supermarket
Parcări
Terenuri sport
Parcuri
Farmacie
Spital
Restaurant
Bar
Cafenea
Pub
Bancă
Statia T.Vladimirescu 2, Linia 31
aprox.
261 m
Bariera CFR Nord
aprox.
308 m
Bariera CFR
aprox.
321 m
Bariera CFR Sud
aprox.
321 m
Tudor Vladimirescu Sud
aprox.
323 m
Statia Bariera CFR, Linia 37
aprox.
325 m
Statia T.Vladimirescu, Linia 31
aprox.
333 m
Statia Bariera CFR 2, Linia 37
aprox.
357 m
Tudor Vladimirescu Nord
aprox.
384 m
Statia TETAROM , Linia 37
aprox.
412 m
Livezeni
aprox.
480 m
Statia FIMARO, Linia 31
aprox.
487 m
Soarelui
aprox.
489 m
Tiberiu Brediceanu
aprox.
568 m
Statia Brediceanu, Linia 37
aprox.
580 m
Splaiul Independentei
aprox.
1838 m
Cluj Arena
aprox.
1841 m
Statia Sala Sporturilor 2TRV, Linia 102
aprox.
1846 m
Statia Sala Sporturilor 1TRV, 102
aprox.
1866 m
Sala Sporturilor
aprox.
1874 m
Uzinei Electrice
aprox.
1876 m
Gradinita Neghinita
aprox.
601 m
Grăd.Neghinițăstr. 2
aprox.
975 m
Grăd.Neghinițăstr. 1
aprox.
1183 m
Grăd.Mica Sirenă2
aprox.
1213 m
Grăd.Bambi str.5
aprox.
1335 m
Grăd.Neghiniță
aprox.
1338 m
Grăd.Mica Sirenă
aprox.
1531 m
Gradinita Mica Sirena
aprox.
1551 m
Gradinita Steluta Fermecata
aprox.
1606 m
Cresa si Gradinita Heidi
aprox.
1612 m
Gradinita Licuricistr. 2
aprox.
1632 m
Gradinita Daisy
aprox.
1686 m
FasTracKids Cluj-Napoca
aprox.
1707 m
Grăd.Mica Sirenă1
aprox.
1922 m
Școala de Agenți de Poliție "Septimiu Mureșan" Cluj Napoca
aprox.
954 m
Liceul Teoretic Onisifor Ghibu
aprox.
1381 m
Scoala Speciala pentru Deficienti de Auz Nr. 2
aprox.
1397 m
Liceul Teologic Baptist "Emanuel"
aprox.
1408 m
Liceul Teologic Emanuel
aprox.
1427 m
Scoala Generala nr.15
aprox.
1430 m
Liceul Teoretic Onisifor Ghibu
aprox.
1430 m
Colegiul Național George Barițiu
aprox.
1472 m
Scoala Generala si Liceul Waldorf
aprox.
1480 m
Scoala generala nr. 7 / Emil Isac
aprox.
1556 m
Institutul de cercetari in chimie Raluca Ripan
aprox.
1775 m
Facultatea de Farmacie
aprox.
1875 m
UBB Educatie Fizica si Sport
aprox.
1924 m
Facultatea de Educatie Fizica si Sport
aprox.
1937 m
Lidl
aprox.
531 m
OUTLET
aprox.
1664 m
La Doi Pasi
aprox.
1762 m
Parcare
aprox.
442 m
Parcare
aprox.
512 m
Parcare pentru clienti cu plata
aprox.
533 m
Parcare privata
aprox.
1125 m
Parcare
aprox.
1142 m
Parcare privata
aprox.
1158 m
Parcare privata
aprox.
1187 m
Parcare
aprox.
1210 m
Parcare privata
aprox.
1224 m
Parcare privata
aprox.
1277 m
Parcare privata
aprox.
1286 m
Parcare privata
aprox.
1291 m
Parcare pentru clienti cu plata
aprox.
1306 m
Parcare privata
aprox.
1316 m
Parcare
aprox.
1322 m
Fabrica de Sport
aprox.
173 m
Teren sportiv
aprox.
991 m
Teren sportiv
aprox.
1043 m
Teren sportiv
aprox.
1350 m
Teren sportiv
aprox.
1398 m
CFR 1907 Cluj
aprox.
1399 m
Teren sportiv
aprox.
1492 m
Teren sportiv
aprox.
1498 m
Teren sportiv
aprox.
1523 m
Teren sportiv
aprox.
1531 m
Teren sportiv
aprox.
1534 m
Teren sportiv
aprox.
1556 m
Teren sportiv
aprox.
1559 m
Teren sportiv
aprox.
1568 m
Teren sportiv
aprox.
1586 m
Parc
aprox.
592 m
Muzeul Etnografic Cluj (en)
aprox.
614 m
Parc
aprox.
1128 m
Parcul CFR
aprox.
1140 m
Parc
aprox.
1200 m
Parc
aprox.
1215 m
Parc
aprox.
1230 m
Parc
aprox.
1240 m
Parc
aprox.
1277 m
Parc
aprox.
1283 m
Parc
aprox.
1293 m
Parc
aprox.
1317 m
Parc
aprox.
1357 m
Parc
aprox.
1462 m
Parc :: Spatiu de joaca pentru copii
aprox.
1467 m
Farmacia Panaceea
aprox.
1194 m
Farmacia Grigorescu
aprox.
1460 m
Farmacia Herba
aprox.
1747 m
Viva
aprox.
1909 m
Ropharma
aprox.
1931 m
Viscum
aprox.
1979 m
Policlinica Grigorescu
aprox.
1500 m
Euro medical center
aprox.
1824 m
Ilinca
aprox.
642 m
Restaurant
aprox.
842 m
Terasa "Hoia"
aprox.
1099 m
Cantina Hoia
aprox.
1110 m
Vila Lupsa
aprox.
1236 m
Sunset Hill Rosetti
aprox.
1243 m
Hotel Panorama (en)
aprox.
1259 m
La Casa
aprox.
1295 m
Restaurant Lugano
aprox.
1311 m
Pralina
aprox.
1392 m
Pizzeria Mamma Mia (en)
aprox.
1420 m
Fair - Play
aprox.
1431 m
Fair Play
aprox.
1440 m
Casa Vikingilor
aprox.
1474 m
suson farm (en)
aprox.
1508 m
Las Vegas Caffe
aprox.
1212 m
Geo & Andi
aprox.
1324 m
Admiral
aprox.
1450 m
Infinity Games
aprox.
1473 m
Cotton Club
aprox.
1736 m
La Gazette
aprox.
1962 m
Bar
aprox.
1992 m
Bookla
aprox.
1283 m
Royal cafe
aprox.
1459 m
PLAN Cafe
aprox.
1770 m
Samsara Chill-Out & Tea House
aprox.
1984 m
bike44
aprox.
1998 m
Infinity Games
aprox.
1414 m
Infinity Games
aprox.
1889 m
Uni Sports Bar
aprox.
1923 m
Seven
aprox.
1971 m
Banca Transilvania
aprox.
1195 m
Banca Transilvania
aprox.
1648 m
BRD
aprox.
1658 m
BRD
aprox.
1658 m
Banca Transilvania
aprox.
1663 m
Banca Transilvania
aprox.
1725 m
BT
aprox.
1878 m
BCR
aprox.
1928 m
Millenium Bank
aprox.
1933 m
Banca Transilvania
aprox.
1947 m
ING
aprox.
1947 m
BRS, Banca Transilvania, BCR, UPC
aprox.
1964 m
BRD
aprox.
1978 m
CEC Bank
aprox.
1985 m
Printre principalele artere care străbat această zonă a Clujului se numără, în partea de sud, strada Septimiu Mureșan (aceasta merge, pe bună parte din lungimea sa, paralel cu râul Nadăș); în centrul cartierului se află Strada Dâmbul Rotund "“ de unde îi vine, de fapt, și numele; în nord, Strada Gheorghe Sion și Strada Viile Dâmbul Rotund marchează, practic, limita nordică a cartierului. Comparativ cu alte zone ale Clujului, Dâmbul Rotund este, pe alocuri, destul de deficitar în ceea ce privește infrastructura rutieră. Deși este deservit, ca și alte zone clujene, de o serie de mijloace de transport în comun, zona de nord a cartierului ar necesita extinderea liniilor parcurse de acestea. Dacă vrei să cumperi o proprietate aici, interesează-te, așadar, ce distanță ai de parcurs până la cele mai apropiate stații.
Dacă ești părinte "“ sau deocamdată doar îți dorești să devii "“, cu siguranță că, atunci când vine vorba de alegerea unei locuințe, un aspect important la care te gândești este reprezentat de oportunitățile de educație disponibile într-o zonă sau alta. În această privință, poți să stai liniștit: în Dâmbul Rotund se găsesc, ca și în celelalte subdiviziuni ale orașului de pe Someș, mai multe unități de învățământ. O școală cu tradiție din cartier este Școala Gimnazială "Emil Isac", situată chiar în apropiere de Strada Dâmbul Rotund, din zona centrală. În ceea ce privește oportunitățile de continuare a studiilor după liceu, de menționat este Școala de Agenți de Poliție "Septimiu Mureșan" "“ localizată în zona de sud a cartierului, dar dincolo de cursul râului Nadăș.
Ca și în Gruia, în Dâmbul Rotund nu există, momentan, un mall și nici un hipermarket (lucru cât se poate de firesc, de altfel, ținând cont de faptul că este vorba de un cartier mărginaș și cu o densitate a populației relativ redusă). Locuitorii acestei zone nu sunt, însă, lipsiți de alternative când vine vorba de cumpărături "“ astfel, pentru nevoile de zi cu zi există o serie de magazine de dimensiuni mai reduse, dintre care unele afiliate unor rețele internaționale. Chiar dacă nu strict între granițele cartierului, opțiuni există și pentru aceia care sunt pasionați de shopping. Fără prea mare efort, aceștia pot ajunge rapid în zona Centrală a orașului, unde pot vizita numeroasele magazine existente în materie de fashion (și nu numai).
Dacă ai "“ sau intenționezi să-ți achiziționezi "“ o mașină, parcarea nu ar trebui să reprezinte, în mod normal, o problemă, dată fiind densitatea redusă a populației din acest cartier. Dacă dorești, totuși, să închiriezi un spațiu al tău de la autoritățile locale, te poți interesa la sediul central al Primăriei Clujului (amplasat pe Strada Moților, nr. 3).
Spre deosebire de locuitorii altor zone ale Clujului, cei din Dâmbul Rotund nu au la dispoziție un parc în toată puterea cuvântului, cartierul fiind, în general, deficitar și la capitolul locuri de joacă pentru copii. Totuși, având în vedere multitudinea zonelor verzi, poți spera să găsești câteva trasee bune de plimbare. Dacă ești pasionat de sport, iar mersul pe jos și joggingul nu sunt suficiente pentru tine, în Dâmbul Rotund găsești o oportunitate importantă, cunoscută localnicilor sub numele "Fabrica de Sport". Amplasat în sudul cartierului, în fosta zonă industrială, acesta este considerat a fi unul dintre cele mai moderne complexuri sportive din oraș, fiind deschis atât amatorilor de fotbal, cât și celor de fitness, aerobic, kickboxing etc.
Dacă te gândești să te muți în Dâmbul Rotund, poate că vei fi dezamăgit să afli că aici nu există niciun spital de stat. Nu e cazul, însă, să te descurajezi: având în vedere proximitatea față de Centru, pentru serviciile medicale de urgență poți ajunge rapid la multitudinea de spitale care se găsesc în "inima" orașului: Spitalul Clinic Județean de Urgență Cluj-Napoca, Spitalul Clinic Municipal Cluj-Napoca, Spitalul Universitar C.F. Cluj-Napoca etc. Nu sunt de neglijat, desigur, nici cele câteva cabinete medicale particulare ce pot fi găsite în cartier "“ pe acest segment vei găsi atât câteva opțiuni în materie de medicină de familie, cât și în ceea ce privește anumite servicii medicale de specialitate (stomatologie, spre exemplu).
În afară de câteva fast food-uri de cartier, locuitorii cartierului Dâmbul Rotund beneficiază, în apropierea casei, și de câteva oportunități demne de luat în seamă la capitolul restaurante. De menționat este restaurantul "Stejarul", amplasat pe Strada Corneliu Coposu, nr. 95, ce dispune de terasă și oferă și servicii de livrare la domiciliu, dar și restaurantul "Fabrica", de pe Strada Tudor Vladimirescu, nr. 22, unde pot fi organizate și evenimente. Pentru a beneficia de o gamă mai largă de opțiuni pentru ieșirile în oraș cu prietenii, locuitorii acestui cartier au la dispoziție, desigur, și zona Centrală.
Dacă ai nevoie să efectuezi o operațiune bancară, trebuie să știi că strict între granițele acestui cartier nu prea ai opțiuni la acest capitol. Cu toate acestea, imediat sub limita sudică a cartierului, la granița dintre Gruia și zona Centrală (reprezentată de Strada Horea), se găsesc trei sucursale bancare: una din rețeaua BCR, o Banca Transilvania, alături de un sediu Raiffeisen Bank. Consultă harta și află unde sunt localizate și alte bănci sau ATM-uri în cartierul Dâmbul Rotund:
Înainte să pleci...
Ești sigur că ai văzut și aceste proprietăți?
129.200 €
Cluj-Napoca, Dâmbul Rotund
2 camere
49,5 mp
Etaj 6
139.000 €
Cluj-Napoca, Dâmbul Rotund
2 camere
69 mp
Etaj 1 / 7
117.000 €
Cluj-Napoca, Dâmbul Rotund
2 camere
43,4 mp
Etaj 4 / 4
Creează alertă
Salvează căutarea ca să primești pe email ultimele anunțuri publicate
Apartamente noi cu 2 camere de vânzare în zona Dâmbul Rotund, Cluj-Napoca
Cere detalii prin email
*
*
*
*
Detaliile tale de contact vor fi partajate cu Blitz