1

Penthouse cu terasă și rooftop panoramic 360° | Eugen Ionesco | View Cluj | PF

240.000 €

Europa, Cluj-Napoca

Nr. cam.:
3
Sup. utilă:
61 mp
Etaj:
3 / 3
An constr.:
2024
  • • Comision 0%
  • • Locație exactă

Descriere apartament

Penthouse de vânzare – strada Luminii, Cluj. Proprietar persoană fizică. Semifinisat. Acest penthouse situat pe strada Luminii oferă un echilibru greu de găsit în Cluj: o zonă liniștită și aerisită, cu acces rapid către centru, aflat la aproximativ 10 minute. Poziționarea ridicată oferă o priveliște deschisă peste oraș, iar terasa rooftop panoramică — de dimensiunea apartamentului — transformă locuința într-un spațiu aparte. Terasa de 65 mp, aflată în continuarea directă a zonei de locuit, funcționează ca o extensie naturală a apartamentului. Este pregătită cu racord de apă pentru instalarea unui jacuzzi, iar dimensiunea ei permite amenajarea unei pergole din sticlă în viitor, transformând zona într-un spațiu de relaxare utilizabil pe tot parcursul anului. 
 La nivelul superior se află terasa rooftop, cu o suprafață comparabilă cu cea a apartamentului. Priveliștea deschisă peste Cluj oferă un cadru potrivit pentru o zonă de lounge, dining exterior sau pur și simplu pentru timp petrecut în aer liber. 
 Caracteristici tehnice:
 Apartamentul este echipat cu soluții moderne pentru confort și eficiență: -încălzire în pardoseală -centrală proprie -tâmplărie Rehau cu geam termopan Suprafață & compartimentare:
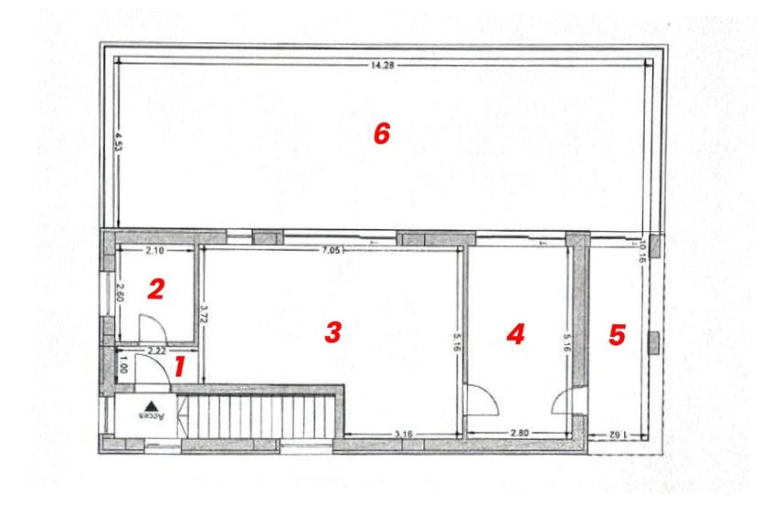
 -Hol (1) – 2.2 mp -Baie (2) – 5.5 mp -Living + Bucătărie open space (3) – 30.9 mp -Dormitor (4) – 14.5 mp -Dressing (5) – 8.36 mp Suprafață utilă apartament: 61.46 mp

 Spații exterioare: -Terasă (6) – 65.44 mp -Terasă rooftop panoramică (7) – 145.09 mp

 Parcare: proprietatea include un loc de parcare acoperit. Este un apartament potrivit pentru cine caută un spațiu luminos, bine poziționat, cu terase generoase și vedere deschisă asupra orașului.
Citește mai mult Citește mai puțin
Decomandat Nemobilat 2 Balcoane / Terase / Logii Centrală proprie 1 Parcare / Garaj / Parcare subterană

Detalii apartament

ID anunț: XV1000D9L Copiat! 275327646 Copiat!
Actualizat în: 21 Martie 2026
Tip imobil: Bloc de apartamente
Regim înălțime: P+3E

Utilități

Utilități
Apă Gaze Canalizare
Sistem încălzire
Centrală proprie pe Gaz cu Încălzire prin pardoseală
Comision
0%

Puncte de interes

Mijloace transport
bus-station
Luminii
Stații autobuz aprox. 160 m
bus-station
E. Ionesco
Stații autobuz aprox. 191 m
bus-station
L.Matis
Stații autobuz aprox. 430 m
bus-station
N. Steinhardt
Stații autobuz aprox. 446 m
Școală
kindergarten
Gradinita Liceului Waldorf
Gradinițe aprox. 1241 m
school
Liceul Waldorf
Școli aprox. 1262 m
kindergarten
Helen
Gradinițe aprox. 1444 m
university
UT Facultatea de Constructii si Facultatea de Arhitectura si Urbanism
Universități aprox. 1762 m
Recreere
sports-ground
Teren sportiv
Terenuri sport aprox. 558 m
supermarket
Baumax
Supermarket aprox. 900 m
cafe
Apartament 1
Cafenea aprox. 1265 m
park
Parc
Parcuri aprox. 1363 m

Detalii despre preț și costuri

Prețul pe piață

Preț cerut: 240.000 €

Preț min. zonă 140.000 €
Preț max. zonă 360.000 €

85% dintre proprietățile similare ca zonă și nr. camere au prețul cerut mai mic. mai multe...

Bine de știut: prețul unei proprietăți este influențat și de alte caracteristici, cum ar fi: vechime, localizare, vecinătăți, suprafață, compartimentare, amenajări, dotări, etc. mai puțin...

Costuri cu achiziția

Fără credit
11.140 RON
Credit ipotecar
13.271 RON
Noua casă
1.363 RON+ taxe notariale

i

Costuri adiționale mai puțin știute la achiziție: taxe notariale, comisioane etc.

Proprietăți similare

Apartament cu 3 camere semidecomandat, mobilat în Europa
258.000 €
Cluj-Napoca, Europa
3 camere
77 mp
Etaj 2 / 3
Apartament cu 3 camere semidecomandat, mobilat în Europa
255.000 €
Cluj-Napoca, Europa
3 camere
77 mp
Etaj 2 / 3
Apartament cu 3 camere semidecomandat, mobilat în Europa
258.000 €
Cluj-Napoca, Europa
3 camere
77 mp
Etaj 2 / 3

Detalii de contact

Sebastian Comsa

Sebastian

Proprietar

Abonează-te la newsletter să fii primul care primește cele mai noi recomandări de proprietăți și sfaturi de la experți.

CONTACT

Creează alertă

Salvează căutarea ca să primești pe email ultimele anunțuri publicate

Apartamente noi cu 3 camere de vânzare în zona Europa, Cluj-Napoca