1

Apartament cu 3 camere, 75 mp utili,terasa 39 mp situat in cartierul Gheorgheni!

373.000 €

Gheorgheni, Cluj-Napoca

Nr. cam.:
3
Sup. utilă:
75 mp
Etaj:
2 / 2
An constr.:
2026 (Finalizată)
  • • Locație aproximativă
  • • Vizionare prin apel video

Descriere apartament

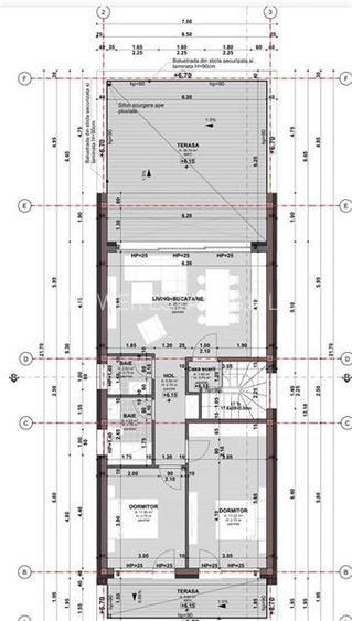
Rower Estate vă propune spre vânzare un apartament deosebit, situat în cartierul Gheorgheni, într-o zonă exclusivistă de case. Proprietatea dispune de o suprafață utilă generoasă de 75 mp plus terasa cu suprafata utila de 39 mp și beneficiază de teren în proprietate de aproximativ 100 mp, care include un loc de parcare suprateran și spațiu verde. Compartimentarea este eficientă și modernă: - living open space cu bucătărie - 2 dormitoare spațioase - dressing - 2 băi - casa scării - terasă Apartamentul se oferă spre vânzare la stadiul de semifinisat, permițând personalizarea finisajelor după preferințele viitorului proprietar. Imobilul este dotat cu instalații termice, electrice și sanitare trase la poziție, precum și cu sistem de încălzire în pardoseală profesional. Unul dintre principalele avantaje ale acestei proprietăți este intimitatea sporită, imobilul fiind compus din doar două apartamente. Totodată, amplasarea într-o zonă liniștită oferă o priveliște deosebită și un confort ridicat. O alegere ideală pentru cei care își doresc un spațiu generos, într-un cadru privat și exclusivist. ID intern: ROW4426
Citește mai mult Citește mai puțin
Confort 1 Semidecomandat 1 Balcon / Terasă / Logie Centrală proprie Încălzire prin pardoseală 1 Parcare

Detalii apartament

ID anunț: XBUG102P8 Copiat! 275487781 Copiat!
Actualizat în: 28 Aprilie 2026
Suprafață utilă totală: 75 mp
Suprafață construită: 75 mp
Nr. bucătării: 1
Nr. băi: 2
Structură rezistență: Cărămidă
Tip imobil: Casă/Vilă
Regim înălțime: P+2E

Utilități

Destinație
Rezidențial
Ușă intrare
Metal
Izolații termice
Exterior
Ferestre cu geam termopan
PVC
Alte spații utile
Terasă
Utilități
Apă Curent Gaze Canalizare CATV
Internet
Cablu Fibră optică Wireless
Servicii imobil
Administrare
Amenajare străzi
Asfaltate
Comision
2%

Puncte de interes

Mijloace transport
bus-station
Statia P-ta Agarbiceanu, Linia 21
Stații autobuz aprox. 122 m
bus-station
Constantin Brancoveanu Vest
Stații autobuz aprox. 168 m
tram-station
Statia G. Baritiu 1, Linia 102
Stații tramvai aprox. 1893 m
tram-station
Gheorghe Baritiu
Stații tramvai aprox. 1899 m
Școală
kindergarten
Kinderland
Gradinițe aprox. 232 m
kindergarten
Paradisul Prichindeilor
Gradinițe aprox. 315 m
school
European College Foundation (en)
Școli aprox. 515 m
university
Sapientia
Universități aprox. 854 m
Recreere
park
Parc
Parcuri aprox. 53 m
sports-ground
Teren sportiv
Terenuri sport aprox. 487 m
supermarket
Complex Comercial Hermes
Supermarket aprox. 555 m
public-square
Piața "Lucian Blaga" (fosta Păcii)
Piețe publice aprox. 1666 m

Detalii despre preț și costuri

Prețul pe piață

Preț cerut: 373.000 €

Preț min. zonă
Preț max. zonă

i

Proprietate cu prețul cerut în afara intervalului mai multe...

Posibile explicații pentru faptul că prețul proprietății este peste cel maxim: imobil nou cu suprafață mare, are dotări și finisaje de lux.
Bine de știut: prețul unei proprietăți este influențat și de alte caracteristici, cum ar fi: vechime, localizare, vecinătăți, suprafață, compartimentare, amenajări, dotări, etc.
Insight premium disponibil după login

Costuri cu achiziția

Fără credit
Credit ipotecar
Noua casă

i

Costuri adiționale mai puțin știute la achiziție: taxe notariale, comisioane etc.

Insight premium disponibil după login

Proprietăți similare

Apartament cu 3 camere semidecomandat în Gheorgheni
360.000 €
Cluj-Napoca, Gheorgheni
3 camere
86 mp
Etaj 2
Apartament cu 3 camere semidecomandat, mobilat în Gheorgheni
339.999 €
Cluj-Napoca, Gheorgheni
3 camere
90 mp
Etaj 1
Apartament cu 3 camere decomandat, mobilat în Gheorgheni
355.000 €
Cluj-Napoca, Gheorgheni
3 camere
73,91 mp
Etaj 1 / 7

Detalii de contact

ROWER ESTATE S.R.L.

Razvan Suciu Broker Imobiliar

4.33(3 review-uri)

ROWER ESTATE S.R.L.
PRO

Abonează-te la newsletter să fii primul care primește cele mai noi recomandări de proprietăți și sfaturi de la experți.

CONTACT

Creează alertă

Salvează căutarea ca să primești pe email ultimele anunțuri publicate

Apartamente noi cu 3 camere de vânzare în zona Gheorgheni, Cluj-Napoca