1

Apartament lux 2 camere decomandate de vanzare cartierul Gheorgheni

199.499 €

Gheorgheni, Cluj-Napoca

Nr. cam.:
2
Sup. utilă:
46 mp
Etaj:
10 / 10
An constr.:
1987 (Finalizată)
  • • Locație aproximativă

Descriere apartament

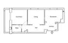
Apartament 2 camere de vanzare, decomandat, 46 mp, zona Gheorgheni, Cluj-Napoca.     Avantaje majore ale acestui apartament:          - instalatii sanitare si electrice noi; - totul in apartament este nou si calitativ; - izolat cu vata minerala; - casa scarii renovata. TABOO Imobiliare propune un apartament de vanzare cu 2 camere, decomandat, situat in localitatea Cluj-Napoca, zona Gheorgheni, aflat la etajul 10 intr -un imobil tip bloc cu regim de inaltime pe Parter + 10 Etaje; anul constructiei 1987, structura caramida. Suprafata utila de 46 mp + balcon de 6 mp. Apartamentul este structurat astfel: • Hol; • Bucatarie; • Baie; • Living; • Dormitor cu balcon; Finisajele interioare sunt moderne. • Usa intrare: metal; • Usi interioare: lemn;                             • Tamplarie ferestre: pvc, termopan;          • Pereti: vopsea lavabila, faianta; • Podele: parchet, gresie. Utilitati si dotari: • Bucatarie: mobilata, utilata;                  • Mobilat: complet;                                • Utilitati: curent electric, apa, canalizare, gaz, catv, telefon, acces internet, fibra optica; • Izolatii: exterior, bloc izolat termic; • Contorizare: apometre, contor gaz, contor curent electric; • Caracteristici bloc: interfon, lift. Apartamentul se vinde mobilat si utilat cu: plita electrica, cuptor, hota, masina de spalat rufe, masina de spalat vase, frigider cu congelator. Incalzirea se realizeaza prin centrala proprie, calorifere.       Se accepta ca si modalitate de plata surse proprii sau credit bancar. Pret: 199.499€ Cod ofertă / ID: P26414 Sună-ne acum la numarul din anunt și află detalii despre această proprietate de vanzare din Cluj-Napoca, dar și despre alte proprietăți potrivite pentru tine.
Citește mai mult Citește mai puțin
Confort 1 Decomandat Mobilat 1 Balcon / Terasă / Logie Aer condiționat Calorifere Centrală proprie Bine întreținut (Bună)

Detalii apartament

ID anunț: X5EK109HL Copiat! 275364492 Copiat!
Actualizat în: 19 Mai 2026
Suprafață construită: 61 mp
Nr. bucătării: 1
Nr. băi: 1
Structură rezistență: Cărămidă
Tip imobil: Bloc de apartamente
Tip tranzacție: De vânzare prin agent
Regim înălțime: P+10E
Modalitate de plată: Cash sau Credit

Utilități

Pereți
Vopsea lavabilă Faianță
Podele
Parchet Gresie
Ușă intrare
Metal
Uși interior
Lemn
Izolații termice
Exterior
Ferestre cu geam termopan
PVC PVC
Contorizare
Apometre Contor gaz
Bucătărie
Mobilată Utilată
Electrocasnice
Mașină de spălat Frigider Mașină spălat vase Hotă
Facilități imobil
Interfon Lift
Utilități
Curent Apă Canalizare Gaze CATV Telefon
Internet
Fibră optică
Amenajare străzi
Asfaltate Iluminat stradal Mijloace de transport în comun
Comision
2%

Puncte de interes

Mijloace transport
bus-station
Baisoara
Stații autobuz aprox. 121 m
bus-station
Statia Baisoara, liniile 33, 34, 48
Stații autobuz aprox. 133 m
bus-station
Albac
Stații autobuz aprox. 217 m
bus-station
Baita
Stații autobuz aprox. 259 m
Școală
school
Happy Kids Internaional school
Școli aprox. 125 m
school
Scoala Internationala Cluj - Transilvania College
Școli aprox. 133 m
kindergarten
Grăd.Dumbrăvioara
Gradinițe aprox. 388 m
university
Casa Agronomului (en)
Universități aprox. 1011 m
Recreere
park
Parc
Parcuri aprox. 66 m
sports-ground
Teren sportiv
Terenuri sport aprox. 94 m
bar
Blue Galaxy
Bar aprox. 322 m
supermarket
Profi
Supermarket aprox. 390 m

Istoricul prețurilor

Acces la informații premium după autentificare
Login Gratuit

Detalii despre preț și costuri

Prețul pe piață

Preț cerut: 199.499 €

Preț min. zonă
Preț max. zonă

95% dintre proprietățile similare ca zonă și nr. camere au prețul cerut mai mic. mai multe...

Bine de știut: prețul unei proprietăți este influențat și de alte caracteristici, cum ar fi: vechime, localizare, vecinătăți, suprafață, compartimentare, amenajări, dotări, etc. mai puțin...

Acces la informații premium după autentificare
Login Gratuit

Costuri cu achiziția

Fără credit
Credit ipotecar
Noua casă

i

Costuri adiționale mai puțin știute la achiziție: taxe notariale, comisioane etc.

Acces la informații premium după autentificare
Login Gratuit

Proprietăți similare

Apartament cu 3 camere semidecomandat, mobilat în Gheorgheni
215.000 €
Cluj-Napoca, Gheorgheni
3 camere
59 mp
Etaj 2 / 10
Apartament cu 2 camere semidecomandat în Gheorgheni
187.500 €
Cluj-Napoca, Gheorgheni
2 camere
53,8 mp
Etaj 4
Apartament cu 3 camere semidecomandat, mobilat în Gheorgheni
184.900 €
Cluj-Napoca, Gheorgheni
3 camere
74 mp
Etaj 1 / 2

Detalii de contact

TABOO Imobiliare

TABOOro

4.68(21 review-uri)

TABOO Imobiliare
PRO

Abonează-te la newsletter să fii primul care primește cele mai noi recomandări de proprietăți și sfaturi de la experți.

CONTACT

Creează alertă

Salvează căutarea ca să primești pe email ultimele anunțuri publicate

Apartamente cu 2 camere de vânzare în zona Gheorgheni, Cluj-Napoca