Apartament modern cu 2 camere decomandate | La cheie | Gheorgheni

215.000 €

Gheorgheni, Cluj-Napoca

Nr. cam.:
2
Sup. utilă:
46,3 mp
Etaj:
10 / 10
An constr.:
1970 (Finalizată)
  • • Locație aproximativă

Descriere apartament

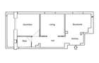
Avem plăcerea de a vă oferi spre vânzare un apartament superb, cu finisaje moderne și de calitate înaltă, situat în cartierul Gheorgheni, în apropierea Parcului Detunata și la câteva minute de Iulius Mall. Locuința beneficiază de o suprafață utilă de 46,3 mp, și se află la etajul 10 al unui imobil dispus pe 10 etaje. Acesta este compartimentat decomandat, în felul următor: o bucătărie complet mobilată și utilată cu loc de luat masa, un living generos și luminos cu vedere panoramică asupra orașului, un dormitor cu pat matrimonial, un hol cu dressing, o baie cu geam, un balcon deschis, de 6,1 mp, cu o priveliște superbă. Imobilul este situat într-o zonă extrem apreciată și foarte bine cotată, într-o zonă verde și în vecinătatea Iulius Mall. Se află în apropierea stațiilor de transport în comun, magazine, farmacii, scoli precum Liceul „Lucian Blaga” și Transylvania College, spații verzi, precum Parcul Detunata sau Baza Sportivă din Gheorgheni. Deși apartamentul nu beneficiază de loc de parcare separat, însă în imediata vecinătate a blocului de află Parking-ul. mobilul în care se află locuința este dotat cu lift recent schimbat, iar casa scării a fost recondiționată. Apartamentul se predă la cheie, cu finisaje armonioase și de înaltă calitate, realizate la comandă. Acesta a fost supus unui proces complet de renovare, fiind schimbate inclusiv instalațiile electrice și sanitare. Beneficiază de centrală proprie în condensare, de geamuri tripan, cuptor și hotă, mașină de spălat rufe și mașină de spălat vase, și electrocasnice. Pentru mai multe informații și vizionări, contactați-ne cu încredere! Informațiile din anunț au fost furnizate în prealabil de către proprietar. Agenția nu își asumă responsabilitatea pentru eventuale modificări în ceea ce privește prețul sau informațiile prezentate.
Citește mai mult Citește mai puțin
Confort 1 Decomandat Lux 1 Balcon / Terasă / Logie Calorifere Centrală proprie

Detalii apartament

ID anunț: XBA0106SR Copiat! 275380303 Copiat!
Actualizat în: 31 Martie 2026
Suprafață construită: 55.56 mp
Nr. bucătării: 1
Nr. băi: 1
Structură rezistență: Cărămidă
Tip imobil: Bloc de apartamente
Regim înălțime: P+10E

Utilități

Destinație
Rezidențial
Pereți
Faianță Vopsea lavabilă
Podele
Gresie Parchet
Ușă intrare
Metal
Izolații termice
Interior
Contorizare
Apometre Contor căldură Contor gaz
Bucătărie
Mobilată Utilată
Electrocasnice
Aragaz Frigider Hotă Mașină de spălat Mașină spălat vase TV
Facilități imobil
Interfon Lift Spații agrement
Utilități
Curent Apă Canalizare CATV Gaze
Amenajare străzi
Iluminat stradal Mijloace de transport în comun Asfaltate
Comision
standard

Disponibilitate proprietate:

Imediat

Puncte de interes

Mijloace transport
bus-station
Borsec Sud
Stații autobuz aprox. 213 m
bus-station
Statia Borsec, Liniile: 34,48, 3
Stații autobuz aprox. 218 m
bus-station
Snagov Sud
Stații autobuz aprox. 220 m
bus-station
Statia Snagov - capat linie; Liniile: 34,48, 3, 25
Stații autobuz aprox. 233 m
Școală
school
Liceul Teoretic "Lucian Blaga"
Școli aprox. 105 m
school
Scoala Lucian Blaga
Școli aprox. 115 m
kindergarten
Grăd.Dumbrăvioara
Gradinițe aprox. 122 m
university
UBB Stiinte Economice si Gestiunea Afacerilor
Universități aprox. 800 m
Recreere
supermarket
Profi
Supermarket aprox. 35 m
sports-ground
Teren sportiv
Terenuri sport aprox. 53 m
bar
Infinity Games
Bar aprox. 62 m
park
Parc
Parcuri aprox. 152 m

Detalii despre preț și costuri

Prețul pe piață

Preț cerut: 215.000 €

Preț min. zonă 100.000 €
Preț max. zonă 240.000 €

99% dintre proprietățile similare ca zonă și nr. camere au prețul cerut mai mic. mai multe...

Bine de știut: prețul unei proprietăți este influențat și de alte caracteristici, cum ar fi: vechime, localizare, vecinătăți, suprafață, compartimentare, amenajări, dotări, etc. mai puțin...

Costuri cu achiziția

Fără credit
10.286 RON
Credit ipotecar
12.312 RON
Noua casă
1.236 RON+ taxe notariale

i

Costuri adiționale mai puțin știute la achiziție: taxe notariale, comisioane etc.

Proprietăți similare

Apartament cu 3 camere semidecomandat în Gheorgheni
200.000 €
Cluj-Napoca, Gheorgheni
3 camere
76,72 mp
Etaj 6
Apartament cu 2 camere semidecomandat în Gheorgheni
205.000 €
Cluj-Napoca, Gheorgheni
2 camere
55 mp
Etaj 1
Apartament cu 2 camere decomandat, mobilat în Gheorgheni
230.000 €
Cluj-Napoca, Gheorgheni
2 camere
61,18 mp
Parter

Detalii de contact

Comitat Imobiliare

Lacrimioara Comitat Agent Junior

Comitat Imobiliare
PRO

Abonează-te la newsletter să fii primul care primește cele mai noi recomandări de proprietăți și sfaturi de la experți.

CONTACT

Creează alertă

Salvează căutarea ca să primești pe email ultimele anunțuri publicate

Apartamente cu 2 camere de vânzare în zona Gheorgheni, Cluj-Napoca