Apartament 2 camere, 46mp, finisat, zona Donath

101.500 € + TVA

Grigorescu, Cluj-Napoca

Nr. cam.:
2
Sup. utilă:
46 mp
Etaj:
1 / 4
An constr.:
2026 (Finalizată)
  • • Locație aproximativă

Descriere apartament

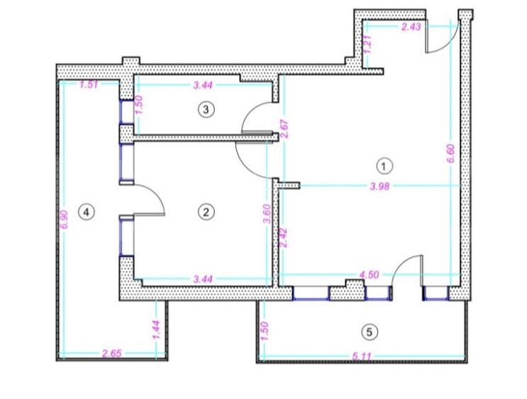
Blitz vă propune spre vânzare un apartament cu 2 camere, situat într-un imobil nou din zona Donath, la doar 10 minute de Cluj Arena – o alegere excelentă atât pentru locuit, cât și pentru investiție, cu termen de finalizare în iulie 2026. Apartamentul dispune de o suprafață utilă de 46 mp și este compartimentat eficient, semidecomandat: living cu bucătărie open-space, dormitor, baie cu geam și spații bine optimizate pentru confort zilnic. Un avantaj major îl reprezintă cele două balcoane, cu o suprafață totală de 19,8 mp – un spațiu exterior generos, rar întâlnit în această categorie, ideal pentru relaxare sau amenajare personalizată. Suprafețele vitrate mari asigură lumină naturală pe tot parcursul zilei, iar orientarea oferă un ambient plăcut și aerisit. Apartamentul se predă finisat, cu materiale premium, și beneficiază de: * centrală termică proprie * încălzire în pardoseală * tâmplărie Gealan * bloc modern, eficient energetic Este situat la etajul 1 din 4, într-un imobil nou, bine proiectat. Opțional, se poate achiziționa loc de parcare: * subteran: 11.000 € * suprateran: 7.000 € Un apartament eficient, ușor de închiriat sau revândut, într-o zonă cu dezvoltare accelerată – o alegere sigură pentru viitor. La toate prețurile se adaugă TVA 21%. Programează o vizionare și discutăm toate detaliile. Cod ofertă / ID BLITZ: P170101
Citește mai mult Citește mai puțin
Semidecomandat Nemobilat 2 Balcoane / Terase / Logii Centrală proprie Încălzire prin pardoseală Bine întreținut (Bună)

Detalii apartament

ID anunț: XFTI10DLJ Copiat! 275464842 Copiat!
Actualizat în: 22 Aprilie 2026
Nr. bucătării: 1
Nr. băi: 1
Structură rezistență: Cărămidă
Tip imobil: Bloc de apartamente
Regim înălțime: P+4E

Utilități

Pereți
Vopsea lavabilă Faianță
Podele
Parchet Gresie
Ușă intrare
Metal
Uși interior
Lemn
Izolații termice
Exterior
Ferestre cu geam termopan
PVC PVC
Contorizare
Apometre Contor gaz
Diverse
Sistem de alarmă Telecomandă poartă acces auto
Facilități imobil
Interfon
Utilități
Curent Apă Canalizare Gaze Telefon
Internet
Fibră optică
Amenajare străzi
Asfaltate Betonate Iluminat stradal
Comision
2.5%

Puncte de interes

Mijloace transport
bus-station
Cora
Stații autobuz aprox. 1184 m
bus-station
Statia Magazin CORA, Linia CORA
Stații autobuz aprox. 1186 m
tram-station
Clabucet
Stații tramvai aprox. 1858 m
tram-station
Clabucet
Stații tramvai aprox. 1931 m
Școală
kindergarten
Gradinita Licurici str. 1
Gradinițe aprox. 1373 m
kindergarten
Grăd.Mica Sirenă1
Gradinițe aprox. 1530 m
university
Institutul de cercetari in chimie Raluca Ripan
Universități aprox. 1777 m
school
Școala Iuliu Hațieganu
Școli aprox. 1932 m
Recreere
park
Pădurea Hoia Baciu
Parcuri aprox. 1025 m
supermarket
Cora
Supermarket aprox. 1073 m
sports-ground
Teren sportiv
Terenuri sport aprox. 1242 m
mall
Complex comercial Polus
Mall aprox. 1484 m

Detalii despre preț și costuri

Prețul pe piață

Preț cerut: 101.500 €

Preț min. zonă
Preț max. zonă

i

Proprietate cu prețul cerut în afara intervalului mai multe...

Posibile explicații pentru faptul că prețul proprietății este sub cel minim: imobil cu risc seismic, imobil cu probleme structurale, imobil demolabil, poziționare în altă zonă
Bine de știut: prețul unei proprietăți este influențat și de alte caracteristici, cum ar fi: vechime, localizare, vecinătăți, suprafață, compartimentare, amenajări, dotări, etc.
Insight premium disponibil după login

Costuri cu achiziția

Fără credit
Credit ipotecar
Noua casă

i

Costuri adiționale mai puțin știute la achiziție: taxe notariale, comisioane etc.

Insight premium disponibil după login

Proprietăți similare

Apartament cu 2 camere semidecomandat, mobilat în Grigorescu
99.990 €
Cluj-Napoca, Grigorescu
2 camere
42 mp
Etaj 2 / 3
Apartament cu 2 camere semidecomandat în Grigorescu
95.130 € + TVA
Cluj-Napoca, Grigorescu
2 camere
45,3 mp
Etaj 1
Apartament cu 2 camere decomandat în Grigorescu
110.000 €
Cluj-Napoca, Grigorescu
2 camere
49 mp
Parter / 11

Detalii de contact

BLITZ

BLITZ ROMANIA

4.70(108 review-uri)

BLITZ
PRO

Abonează-te la newsletter să fii primul care primește cele mai noi recomandări de proprietăți și sfaturi de la experți.

CONTACT

Creează alertă

Salvează căutarea ca să primești pe email ultimele anunțuri publicate

Apartamente noi cu 2 camere de vânzare în zona Grigorescu, Cluj-Napoca