10

Apartament in vila 180 mp + 350 mp gradina, panorama spectaculoasa, Grigorescu

600.000 €

Grigorescu, Cluj-Napoca

Nr. cam.:
4
Sup. utilă:
180 mp
Etaj:
Parter / 1
An constr.:
2023 (În construcție)
  • • Locație aproximativă

Descriere apartament

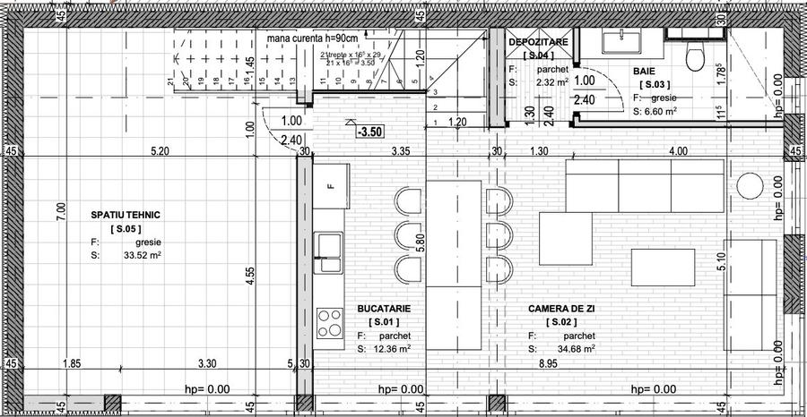
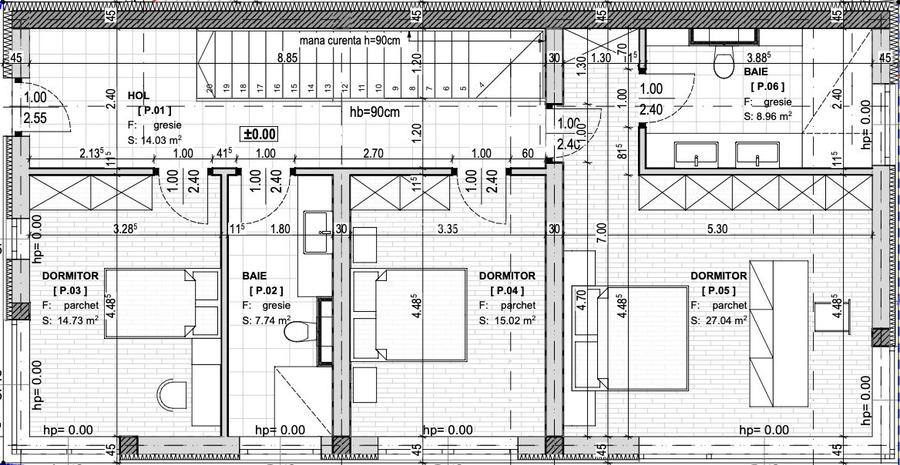
Va propunem spre vanzare o unitate locativa situata in cartierul Grigorescu. Suprafata utila este de 180 mp, impreuna cu o gradina generoasa de 350 mp, compartimentarea fiind urmatoarea: Parterul este format din camera de zi, bucatarie, baie, zona depozitare si spatiu tehnic. La etaj regasim 3 dormitoare, dintre care unul matrimonial cu baie proprie, hol si cea de-a doua baie. Suprafetele vitrate mari ofera o panorama impresionanta asupra orasului Cluj Napoca din aproape fiecare incapere a acestei proprietati. Predarea se face la stadiul semifinisat, imobilul fiind dotat cu geamuri termopan tripan, incalzire in pardoseala, centrala termica individuala, un strat de glet, sapa autonivelanta, instalatii electrice si sanitare pe pozitie. Proprietatea include 2 garaje. Proiectul va fi finalizat anul acesta. Pentru informatii suplimentare sau vizionare, va stam la dispozitie.
Citește mai mult Citește mai puțin
Confort 1 Semidecomandat Nemobilat Grădină Centrală proprie Încălzire prin pardoseală 2 Garaje

Detalii apartament

ID anunț: X4V31001C Copiat! 196241306 Copiat!
Actualizat în: 15 Aprilie 2026
Suprafață construită: 200 mp
Nr. bucătării: 1
Nr. băi: 3
Structură rezistență: Beton
Tip imobil: Casă/Vilă
Regim înălțime: S+P+1E

Utilități

Destinație
Rezidențial
Utilități
Curent Apă Canalizare Gaze
Izolații termice
Exterior
Ferestre cu geam termopan
PVC
Comision
2%+TVA

Disponibilitate proprietate:

imediat

Puncte de interes

Mijloace transport
bus-station
Cora
Stații autobuz aprox. 483 m
bus-station
Statia Magazin CORA, Linia CORA
Stații autobuz aprox. 491 m
tram-station
Clabucet
Stații tramvai aprox. 1119 m
tram-station
Clabucet
Stații tramvai aprox. 1180 m
Școală
kindergarten
Gradinita Licurici str. 1
Gradinițe aprox. 947 m
kindergarten
Gradinita Dumbrava Minunata
Gradinițe aprox. 953 m
school
Școala Iuliu Hațieganu
Școli aprox. 1212 m
university
Institutul de cercetari in chimie Raluca Ripan
Universități aprox. 1454 m
Recreere
supermarket
Cora
Supermarket aprox. 320 m
park
Patinoar Fiesta Sport
Parcuri aprox. 363 m
sports-ground
Playground Decathlon
Terenuri sport aprox. 755 m
mall
Complex comercial Polus
Mall aprox. 1017 m

Detalii despre preț și costuri

Prețul pe piață

Preț cerut: 600.000 €

Preț min. zonă
Preț max. zonă

i

Proprietate cu prețul cerut în afara intervalului mai multe...

Posibile explicații pentru faptul că prețul proprietății este peste cel maxim: imobil nou cu suprafață mare, are dotări și finisaje de lux.
Bine de știut: prețul unei proprietăți este influențat și de alte caracteristici, cum ar fi: vechime, localizare, vecinătăți, suprafață, compartimentare, amenajări, dotări, etc.
Insight premium disponibil după login

Costuri cu achiziția

Fără credit
Credit ipotecar
Noua casă

i

Costuri adiționale mai puțin știute la achiziție: taxe notariale, comisioane etc.

Insight premium disponibil după login

Proprietăți recomandate

Detalii de contact

REMS imobiliare

Andrei Negrila Broker imobiliar

REMS imobiliare
PRO

Abonează-te la newsletter să fii primul care primește cele mai noi recomandări de proprietăți și sfaturi de la experți.

CONTACT

Creează alertă

Salvează căutarea ca să primești pe email ultimele anunțuri publicate

Apartamente cu 4+ camere de vânzare în zona Grigorescu, Cluj-Napoca