4

Apartament 3 camere de vanzare in Intre Lacuri, Cluj Napoca

350.000 €

Între Lacuri, Cluj-Napoca

Nr. cam.:
3
Sup. utilă:
88,8 mp
Etaj:
1 / 2
An constr.:
2024
  • • Locație aproximativă

Descriere apartament

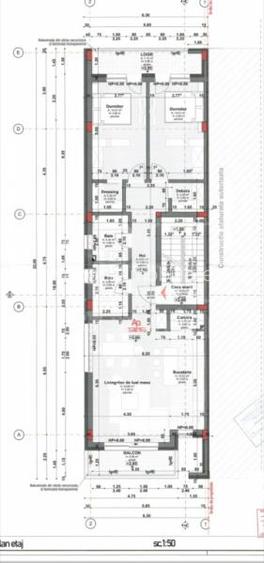
Apartament confort sporit Intre Lacuri! Va oferim spre vanzare un apartament de 3 camere intr-unul dintre cele mai noi blocuri contruite in cartierul Intre Lacuri! Situat la etajul intermediar al unui bloc cu doar 3 apartamente, la etajul I se afla locuinta. Pe langa cei 90 de mp utili, apartametul dispune de 1 loc in garajul subteran, loc de parcare exterior si boxa de depozitare de 14mp, incluse in pret. Lumina si caldura nu se platesc in scara de bloc, blocul fiind semi-pasiv din pdv energetic. Orientarea S-V-N permite ca lumina sarelui sa fie prezenta toata ziua in casa. Cele doua balcoane, unul orientat pe Sud, celalalt pe nord, intruchipeaza spatiul suficient pentru relaxare. In cei 90 de mp utili se afla: - 1 living open-space cu bucatarie orientat pe sud-vest. - 2 bai; - 2 dormitoare; - 1 dressing; + 2 balcoane. Apartamentul se preda semi-finisat si este imediat disponibil. In pretul de mai sus intra garajul subteran, cu loc de parcare in dreptul sau si boxa de depozitare. Vanzarea se face de pe PF, pretul afisat este cel real. Pentru mai multe detalii si cosnultanta imobiliara de calitate, contactati echipa Napoca Imobiliare! ID oferta: 149998
Citește mai mult Citește mai puțin
Confort 1 Decomandat 2 Balcoane / Terase / Logii 1 Parcare 1 Garaj

Detalii apartament

ID anunț: X57Q109EC Copiat! 251332461 Copiat!
Actualizat în: 12 Februarie 2026
Suprafață construită: 108 mp
Nr. bucătării: 1
Nr. băi: 2
Tip imobil: Bloc de apartamente
Regim înălțime: P+2E

Utilități

Comision
2% + TVA

Puncte de interes

Mijloace transport
bus-station
Statia Tulcea, Linia 47
Stații autobuz aprox. 63 m
bus-station
Tulcea
Stații autobuz aprox. 74 m
tram-station
Statia Bai Someseni, Linia 8
Stații tramvai aprox. 1223 m
tram-station
Statia Branului, Linia 8
Stații tramvai aprox. 1360 m
Școală
school
Scoala Alexandru Vaida-voevod
Școli aprox. 287 m
school
Școala Alexandru Vaida
Școli aprox. 293 m
kindergarten
Grădinita Așchiuță
Gradinițe aprox. 383 m
university
Universitatea Crestina Dimitrie Cantemir
Universități aprox. 821 m
Recreere
park
Parc de copii
Parcuri aprox. 183 m
supermarket
Profi
Supermarket aprox. 256 m
sports-ground
Teren sportiv
Terenuri sport aprox. 281 m
public-square
Piata Ira
Piețe publice aprox. 797 m

Detalii despre preț și costuri

Prețul pe piață

Preț cerut: 350.000 €

Preț min. zonă 164.000 €
Preț max. zonă 292.900 €

i

Proprietate cu prețul cerut în afara intervalului mai multe...

Posibile explicații pentru faptul că prețul proprietății este peste cel maxim: imobil nou cu suprafață mare, are dotări și finisaje de lux.
Bine de știut: prețul unei proprietăți este influențat și de alte caracteristici, cum ar fi: vechime, localizare, vecinătăți, suprafață, compartimentare, amenajări, dotări, etc.

Costuri cu achiziția

Fără credit
14.913 RON
Credit ipotecar
17.511 RON
Noua casă
1.923 RON+ taxe notariale

i

Costuri adiționale mai puțin știute la achiziție: taxe notariale, comisioane etc.

Proprietăți recomandate

Detalii de contact

Napoca Imobiliare

Admin

3.44(14 review-uri)

Napoca Imobiliare
PRO

Abonează-te la newsletter să fii primul care primește cele mai noi recomandări de proprietăți și sfaturi de la experți.

CONTACT

Creează alertă

Salvează căutarea ca să primești pe email ultimele anunțuri publicate

Apartamente noi cu 3 camere de vânzare în zona Între Lacuri, Cluj-Napoca