Apartament 2 camere, bloc nou in zona Iulius Mall

199.000 €

Între Lacuri, Cluj-Napoca

Nr. cam.:
2
Sup. utilă:
53 mp
Etaj:
4 / 4
An constr.:
2021 (Finalizată)
  • • Locație aproximativă

Descriere apartament

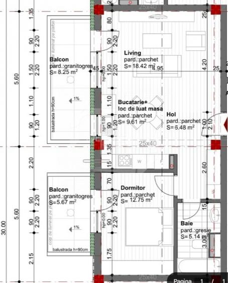
Suprafata utila: 52,4 mp Compartimentare: semidecomandat – living open-space cu bucatarie, dormitor, baie Etaj: 4/4 (deasupra exista partial spatiu tehnic) Balcoane: 2 balcoane mari, total 15 mp Apartamentul se vinde mobilat si utilat, totul in stare perfecta. Blocul este finisat si izolat termic, foarte calduros iarna si racoros vara, cu costuri reduse la intretinere. Constructie finalizata in 2021. Localizare excelenta in cartierul Intre Lacuri, la doar 10 minute de mers pe jos pana la Iulius Mall. In apropiere: sali de fitness, farmacii, scoli, parcuri, spatiu pentru plimbat cainele in spatele blocului, iar la parter exista un magazin. Statie de autobuz Aurel Vlaicu la 5 minute de mers pe jos. Parcare: posibilitate de abonament la Primarie sau inchiriere in demisolul blocului. Zona linistita, cu acces rapid la toate facilitatile si transportul public.
Citește mai mult Citește mai puțin
Confort 1 Semidecomandat Mobilat 2 Balcoane / Terase / Logii Aer condiționat Centrală proprie Încălzire prin pardoseală

Detalii apartament

ID anunț: XBNC10805 Copiat! 272376935 Copiat!
Actualizat în: 22 Aprilie 2026
Suprafață construită: 60 mp
Nr. bucătării: 1
Nr. băi: 1
Structură rezistență: Cărămidă
Tip imobil: Bloc de apartamente
Regim înălțime: P+4E

Utilități

Destinație
Rezidențial
Pereți
Vopsea lavabilă Faianță
Podele
Parchet Gresie
Ușă intrare
Metal
Uși interior
Lemn
Izolații termice
Bloc izolat termic
Ferestre cu geam termopan
PVC
Contorizare
Apometre Contor gaz
Bucătărie
Mobilată Utilată
Electrocasnice
Mașină de spălat Frigider Aragaz
Facilități imobil
Interfon Lift
Utilități
Curent Apă Canalizare Gaze
Comision
2%+TVA

Disponibilitate proprietate:

imediat

Puncte de interes

Mijloace transport
bus-station
Statia Iulius Mall Vest
Stații autobuz aprox. 103 m
bus-station
Statia Iulius Mall, Liniile 24,34,48, 25
Stații autobuz aprox. 110 m
bus-station
Iulius Mall Est
Stații autobuz aprox. 155 m
tram-station
Statia Bai Someseni, Linia 8
Stații tramvai aprox. 1884 m
Școală
kindergarten
Gradinita "Micul Print"
Gradinițe aprox. 213 m
kindergarten
Gradinita Micul Print
Gradinițe aprox. 213 m
school
Univers "T" - Cladirea 2
Școli aprox. 229 m
university
UBB Stiinte Economice si Gestiunea Afacerilor
Universități aprox. 366 m
Recreere
park
Iulius Park
Parcuri aprox. 103 m
supermarket
Iulius Mall
Supermarket aprox. 176 m
sports-ground
Teren sportiv
Terenuri sport aprox. 271 m
public-square
Piata Ira
Piețe publice aprox. 1475 m

Detalii despre preț și costuri

Prețul pe piață

Preț cerut: 199.000 €

Preț min. zonă
Preț max. zonă

81% dintre proprietățile similare ca zonă și nr. camere au prețul cerut mai mic. mai multe...

Bine de știut: prețul unei proprietăți este influențat și de alte caracteristici, cum ar fi: vechime, localizare, vecinătăți, suprafață, compartimentare, amenajări, dotări, etc. mai puțin...

Insight premium disponibil după login

Costuri cu achiziția

Fără credit
Credit ipotecar
Noua casă

i

Costuri adiționale mai puțin știute la achiziție: taxe notariale, comisioane etc.

Insight premium disponibil după login

Proprietăți similare

Apartament cu 2 camere semidecomandat, mobilat în Între Lacuri
189.000 €
Cluj-Napoca, Între Lacuri
2 camere
54 mp
Etaj 4 / 6
Apartament cu 2 camere decomandat, mobilat în Între Lacuri
193.500 € + TVA
Cluj-Napoca, Între Lacuri
2 camere
52 mp
Etaj 4
Apartament cu 3 camere semidecomandat, mobilat în Între Lacuri
199.500 € + TVA
Cluj-Napoca, Între Lacuri
3 camere
55 mp
Etaj 4

Detalii de contact

IDEAL HOME

Petru Broker Partener

IDEAL HOME
PRO

Abonează-te la newsletter să fii primul care primește cele mai noi recomandări de proprietăți și sfaturi de la experți.

CONTACT

Creează alertă

Salvează căutarea ca să primești pe email ultimele anunțuri publicate

Apartamente noi cu 2 camere de vânzare în zona Între Lacuri, Cluj-Napoca