2

Apartament 3 camere, 2 bai, 0 comision, TERRA Oasului

132.663 € + TVA

Iris, Cluj-Napoca

Nr. cam.:
3
Sup. utilă:
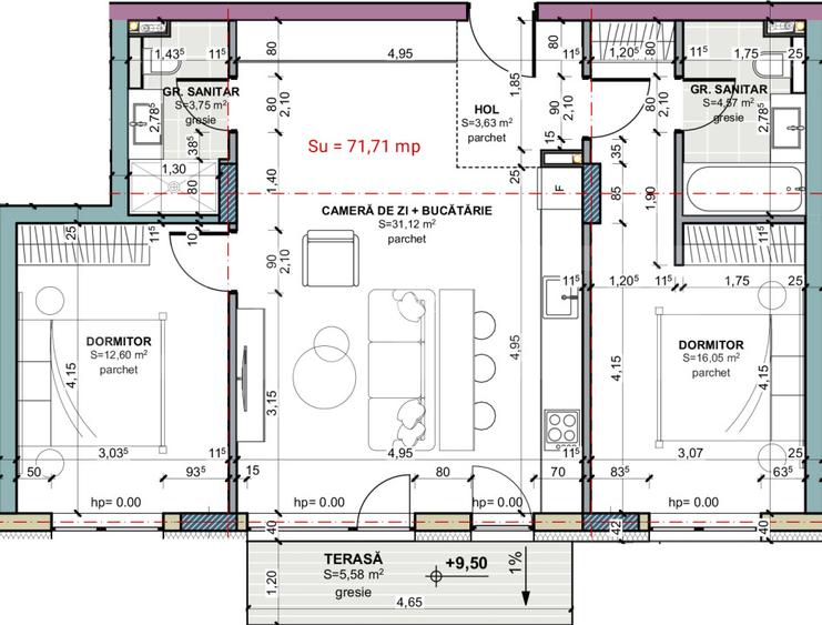
71,71 mp
Etaj:
3
An constr.:
2026
  • • Exclusivitate
  • • Locație exactă

Descriere apartament

Blitz va prezinta un apartament cu 3 camere in Terra Gardens, Cluj-Napoca Locuinte moderne intr-un ansamblu exclusivist cu acces privat, compus din case si blocuri cu regim redus de inaltime – o alegere ideala pentru familii sau investitie sigura. Parcari subterane disponibile (10.000 € TVA INCLUS) Plata se face conform LEGII NORDIS: - 5% la faza incipienta - 25% la finalizarea structurii - 20% la finalizarea instalatiilor - 50% la contractul final prin surse proprii sau credit ipotecar. Termen de finalizare: decembrie 2026 Exemplu disponibil – Etaj 3: • Suprafata utila 71,71 mp • 2 dormitoare, 2 bai • Living generos + bucatarie • Un balcon • Predare la stadiul de semifinisat – 2 maini de glet, sapa, instalatii trase pe pozitii • Incalzire in pardoseala • Centrala termica smart pe bloc Cod oferta / ID BLITZ: P156642
Citește mai mult Citește mai puțin
Semidecomandat Nemobilat 1 Balcon / Terasă / Logie Centrală imobil Încălzire prin pardoseală

Detalii apartament

ID anunț: XFTI10ALE Copiat! 271484240 Copiat!
Actualizat în: 19 Ianuarie 2026
Nr. bucătării: 1
Nr. băi: 2
Structură rezistență: Beton
Tip imobil: Bloc de apartamente
Regim înălțime: D+P+3E

Utilități

Destinație
Rezidențial
Utilități
Curent Apă Canalizare Gaze
Comision
%

Disponibilitate proprietate:

imediat

Puncte de interes

Mijloace transport
bus-station
Statia Valea Chintaului, Linia 39
Stații autobuz aprox. 812 m
bus-station
Cluj Due Vest
Stații autobuz aprox. 853 m
bus-station
Cluj Due Est
Stații autobuz aprox. 853 m
bus-station
Terra
Stații autobuz aprox. 876 m

Detalii despre preț și costuri

Prețul pe piață

Preț cerut: 132.663 €

Preț min. zonă 129.900 €
Preț max. zonă 295.000 €

97% dintre proprietățile similare ca zonă și nr. camere au prețul cerut mai mare. mai multe...

Bine de știut: prețul unei proprietăți este influențat și de alte caracteristici, cum ar fi: vechime, localizare, vecinătăți, suprafață, compartimentare, amenajări, dotări, etc. mai puțin...

Costuri cu achiziția

Fără credit
8.413 RON
Credit ipotecar
10.207 RON
Noua casă
958 RON+ taxe notariale

i

Costuri adiționale mai puțin știute la achiziție: taxe notariale, comisioane etc.

Proprietăți recomandate

Detalii de contact

BLITZ

BLITZ ROMANIA

4.70(107 review-uri)

BLITZ
PRO

Abonează-te la newsletter să fii primul care primește cele mai noi recomandări de proprietăți și sfaturi de la experți.

CONTACT

Creează alertă

Salvează căutarea ca să primești pe email ultimele anunțuri publicate

Apartamente cu 3 camere de vânzare în zona Iris, Cluj-Napoca