3 camere, etajul 2, 2 bai, comision 0, Terra Gardens

124.560 € + TVA

Iris, Cluj-Napoca

Nr. cam.:
3
Sup. utilă:
67,33 mp
Etaj:
2 / 3
An constr.:
2026 (În construcție)
  • • Exclusivitate
  • • Locație aproximativă

Descriere apartament

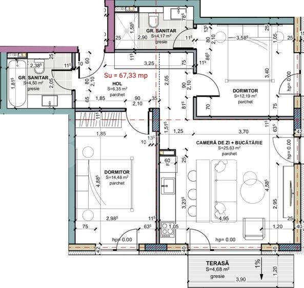
Propunem spre vanzare un apartament cu 3 camere in Terra Gardens, Cluj-Napoca Locuinte moderne intr-un ansamblu exclusivist cu acces privat, compus din case si blocuri cu regim redus de inaltime – o alegere ideala pentru familii sau investitie sigura. Parcari subterane disponibile (10.000 € TVA INCLUS) Plata se face conform LEGII NORDIS: - 5% la faza incipienta - 25% la finalizarea structurii - 20% la finalizarea instalatiilor - 50% la contractul final prin surse proprii sau credit ipotecar. Termen de finalizare: decembrie 2026 Exemplu disponibil – Etaj 2: • Suprafata utila: 67,33 mp • 2 dormitoare, 2 bai • Living generos + bucatarie • 1 balcon • Predare la stadiul de semifinisat – 2 maini de glet, sapa, instalatii trase pe pozitii • Incalzire in pardoseala • Centrala termica smart pe bloc Cod oferta / ID BLITZ: P158100
Citește mai mult Citește mai puțin
Semidecomandat Nemobilat 1 Balcon / Terasă / Logie Centrală imobil Încălzire prin pardoseală

Detalii apartament

ID anunț: XFTI10BAJ Copiat! 272138714 Copiat!
Actualizat în: 06 Martie 2026
Nr. bucătării: 1
Nr. băi: 2
Structură rezistență: Beton
Tip imobil: Bloc de apartamente
Regim înălțime: D+P+3E

Utilități

Destinație
Rezidențial
Utilități
Curent Apă Canalizare Gaze
Comision
%

Disponibilitate proprietate:

imediat

Puncte de interes

Mijloace transport
bus-station
Statia Valea Chintaului, Linia 39
Stații autobuz aprox. 812 m
bus-station
Cluj Due Vest
Stații autobuz aprox. 853 m
bus-station
Cluj Due Est
Stații autobuz aprox. 853 m
bus-station
Terra
Stații autobuz aprox. 876 m

Detalii despre preț și costuri

Prețul pe piață

Preț cerut: 124.560 €

Preț min. zonă 129.900 €
Preț max. zonă 295.000 €

i

Proprietate cu prețul cerut în afara intervalului mai multe...

Posibile explicații pentru faptul că prețul proprietății este sub cel minim: imobil cu risc seismic, imobil cu probleme structurale, imobil demolabil, poziționare în altă zonă
Bine de știut: prețul unei proprietăți este influențat și de alte caracteristici, cum ar fi: vechime, localizare, vecinătăți, suprafață, compartimentare, amenajări, dotări, etc.

Costuri cu achiziția

Fără credit
8.076 RON
Credit ipotecar
9.828 RON
Noua casă
908 RON+ taxe notariale

i

Costuri adiționale mai puțin știute la achiziție: taxe notariale, comisioane etc.

Proprietăți recomandate

Detalii de contact

BLITZ

BLITZ ROMANIA

4.70(107 review-uri)

BLITZ
PRO

Abonează-te la newsletter să fii primul care primește cele mai noi recomandări de proprietăți și sfaturi de la experți.

CONTACT

Creează alertă

Salvează căutarea ca să primești pe email ultimele anunțuri publicate

Apartamente cu 3 camere de vânzare în zona Iris, Cluj-Napoca